Найти в Дзене
INMYROOM

Как стильно и функционально обустроить малогабаритку: 8 классных идей

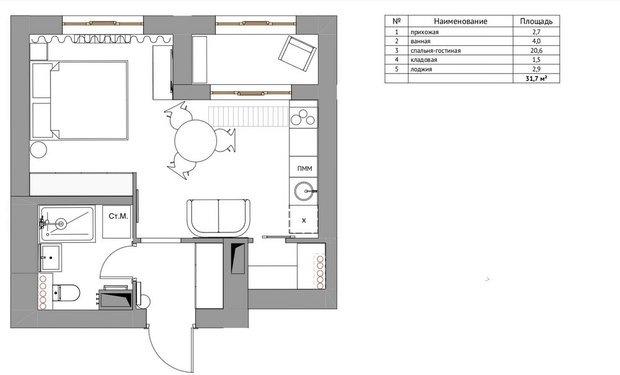
Ценные советы по обустройству маленькой квартиры — берите на заметку! Обустроить небольшую квартиру — задача не из легких. Однако, с правильным подходом и продуманными решениями, можно создать пространство, которое будет не только функциональным, но и уютным. Рассмотрим простые, но эффективные приемы, которые применила дизайнер Елена Сизова в студии площадью всего 32 кв. м. Все стены окрашены в светлый оттенок — он гармонично соединяет все зоны квартиры и визуально увеличивает ее размер. Балконную дверь оставили без текстиля, чтобы обеспечить максимальный приток естественного света. Это добавляет ощущение простора и легкости в помещении. Не менее важный элемент — напольное покрытие. В основном помещении уложен кварцвинил «елочкой». Диагональный рисунок расширяет пространство, придает интерьеру динамику и визуально увеличивает площадь. Кухня играет важную роль в каждой квартире, и в малогабаритной она должна быть максимально функциональной. В проекте кухня оформлена с плавным переход
Оглавление

Ценные советы по обустройству маленькой квартиры — берите на заметку!

Обустроить небольшую квартиру — задача не из легких. Однако, с правильным подходом и продуманными решениями, можно создать пространство, которое будет не только функциональным, но и уютным. Рассмотрим простые, но эффективные приемы, которые применила дизайнер Елена Сизова в студии площадью всего 32 кв. м.

 📷
📷

1. Светлые оттенки и натуральный свет

Все стены окрашены в светлый оттенок — он гармонично соединяет все зоны квартиры и визуально увеличивает ее размер. Балконную дверь оставили без текстиля, чтобы обеспечить максимальный приток естественного света. Это добавляет ощущение простора и легкости в помещении.

 📷
📷

2. Напольное покрытие

Не менее важный элемент — напольное покрытие. В основном помещении уложен кварцвинил «елочкой». Диагональный рисунок расширяет пространство, придает интерьеру динамику и визуально увеличивает площадь.

 📷
📷

3. Стильная кухня

Кухня играет важную роль в каждой квартире, и в малогабаритной она должна быть максимально функциональной. В проекте кухня оформлена с плавным переходом: нижние фасады темного цвета сменяются светлыми верхними. Фартук выполнен в среднем тоне, что визуально облегчает верхние шкафы и создает гармоничное сочетание.

 📷
📷

4. Удобное решение с кладовкой

Еще одним удачным решением стало наличие кладовки рядом с кухней. Ее вход закрыли амбарной дверью, что позволило уменьшить проем и увеличить стену для размещения двухместного дивана. Это создает больше места для отдыха и общения, что важно в компактной квартире.

 📷
📷

5. Уютная лаунж-зона

На лоджии была использована та же геометрическая плитка, что и в ванной, что обеспечивает визуальное единство и гармоничный переход. Кресло для отдыха и бра в графичном оттенке создают уютное место для отдыха — в целом пространство получилось непринужденным и комфортным.

 📷
📷

6. Акцент на стенах

Чтобы добавить текстуру и цвет в интерьер, в зоне спальни оформлена акцентная стена обоями с одуванчиками в рамке из молдингов. Боковые рамки также выделены цветом — они придают интерьеру изысканный вид и подчеркивают подвесные светильники в виде жемчужин. Такой акцент отлично привлекает внимание и добавляет уникальности.

 📷
📷

7. Встроенный шкаф в прихожей

Важный шаг к организации пространства — это создание удобного места для хранения. Встроенный шкаф в прихожей для верхней одежды и обуви выполнен в тон со стенами, что визуально уменьшает его объем и не создает ощущения загроможденности.

 📷
📷

8. Оригинальное зеркало в ванной

В ванной комнате главный акцент сделан на зеркало — всегда стоит выбирать что-то интересное и необычное. Здесь также использован винтажный светильник, который придает комнате характер. Предметы с историей способны стирать временные границы и создавать атмосферу вне времени.

 📷
📷

Применяя грамотные приемы зонирования, используя цвета и текстуры, можно достигнуть гармонии и уюта в любом пространстве. Студия в 32 квадратных метра ярко демонстрирует, как можно делать это эффективно и со вкусом.

Сейчас читают:

Спасибо, что читаете нас! ❤️

Если материал был полезен — поставьте лайк и отправьте другу.

А ещё больше интерьерных идей, советы экспертов и классные румтуры в нашем Telegram-канале. Подписывайтесь, вам точно понравится!