Найти в Дзене
INMYROOM

Лицо дома: как оформили мини-прихожую 2 м² с атмосферой Средиземноморья

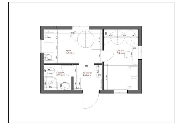
Здесь объединили практичность, отпускное настроение и атмосферу старинных отелей Этот каркасный дом площадью всего 24 квадратных метра построили специально для мамы хозяйки участка. Он расположен на том же дачном наделе, что и основной дом семьи, и предназначен для летнего проживания. Задача дизайнера Ирины Собыленской заключалась не только в том, чтобы разместить необходимое на скромном метраже, но и создать пространство, наполненное воспоминаниями, комфортом и эстетикой. Прихожая в проекте получилась максимально насыщенной по настроению — она сразу задает тон интерьеру. В оформлении использованы вертикальные полосы, отсылающие к интерьеру старинных средиземноморских гостиниц. Чтобы зона не выглядела плоской, добавили шкаф с жалюзийными фасадами в насыщенном синем цвете — он не только вмещает одежду и обувь, но и работает как главный цветовой акцент. Для хранения повседневных мелочей предусмотрена тумба под зеркало, которое оформлено фигурной рамкой. Рядом — удобный пуф и открытая веш
Оглавление

Здесь объединили практичность, отпускное настроение и атмосферу старинных отелей

Этот каркасный дом площадью всего 24 квадратных метра построили специально для мамы хозяйки участка. Он расположен на том же дачном наделе, что и основной дом семьи, и предназначен для летнего проживания.

Задача дизайнера Ирины Собыленской заключалась не только в том, чтобы разместить необходимое на скромном метраже, но и создать пространство, наполненное воспоминаниями, комфортом и эстетикой.

 📷
📷

Прихожая в проекте получилась максимально насыщенной по настроению — она сразу задает тон интерьеру. В оформлении использованы вертикальные полосы, отсылающие к интерьеру старинных средиземноморских гостиниц.

 📷Дизайн: Ирина Собыленская
📷Дизайн: Ирина Собыленская

Чтобы зона не выглядела плоской, добавили шкаф с жалюзийными фасадами в насыщенном синем цвете — он не только вмещает одежду и обувь, но и работает как главный цветовой акцент.

 📷Дизайн: Ирина Собыленская
📷Дизайн: Ирина Собыленская

Для хранения повседневных мелочей предусмотрена тумба под зеркало, которое оформлено фигурной рамкой. Рядом — удобный пуф и открытая вешалка с декором в виде экзотических птиц. Все элементы подобраны так, чтобы в небольшом пространстве было удобно переобуться, оставить сумку и при этом насладиться атмосферой.

 📷Дизайн: Ирина Собыленская
📷Дизайн: Ирина Собыленская

Обратите внимание на видео:

Над входной зоной расположили открытую полку с плетеными корзинами, где можно хранить сезонные вещи или садовые принадлежности. Потолок выкрашен в светло-голубой оттенок, поддерживающий тему неба и воздуха.

Монохромное напольное покрытие из плитки с классическим узором завершает образ и придает прихожей индивидуальность.

Сейчас читают:

Спасибо, что читаете нас! ❤️

Если материал был полезен — поставьте лайк и отправьте другу.

А ещё больше интерьерных идей, советы экспертов и классные румтуры в нашем Telegram-канале. Подписывайтесь, вам точно понравится!