Найти в Дзене
INMYROOM

Как за 2,5 недели бюджетно преобразили однушку 37 м² в панельке

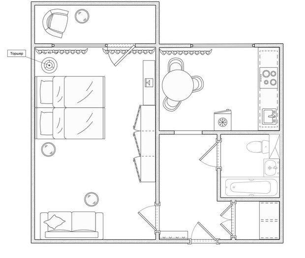
На ремонт потратили 300 тыс. рублей! Это инвестиционный проект — в будущем квартира будет сдаваться в посуточную аренду. Хоумстейджер Ольга Базарова с помощью бюджетных решений и приемов хоумстейджинга превратила безликое пространство в уютное и функциональное жилье. Главной задачей было создать интерьер, который выделялся бы в ленте объявлений об аренде, и обеспечить максимальное количество спальных мест без потери комфорта. Место: г. Великий Новгород
Метраж: 37 м²
Высота потолков: 2,7 м
Количество комнат: 1
Санузел: 1
Дизайн: Ольга Базарова
Бюджет: 300 тыс. рублей До ремонта квартира имела типовой дизайн, который позволял в ней жить, но не удовлетворял требованиям для сдачи в аренду. Интерьер был достаточно скучным и невыразительным, что затрудняло привлечение клиентов. Чтобы сделать жилье более привлекательным, возникла необходимость создать яркий и функциональный интерьер. Важным аспектом стало обновление мебели и декора, добавление элементов, подчеркивающих индивидуальность кварти
Оглавление

На ремонт потратили 300 тыс. рублей!

Это инвестиционный проект — в будущем квартира будет сдаваться в посуточную аренду. Хоумстейджер Ольга Базарова с помощью бюджетных решений и приемов хоумстейджинга превратила безликое пространство в уютное и функциональное жилье. Главной задачей было создать интерьер, который выделялся бы в ленте объявлений об аренде, и обеспечить максимальное количество спальных мест без потери комфорта.

Место: г. Великий Новгород
Метраж: 37 м²
Высота потолков: 2,7 м
Количество комнат: 1
Санузел: 1
Дизайн: Ольга Базарова
Бюджет: 300 тыс. рублей
 📷
📷

Квартира до ремонта

До ремонта квартира имела типовой дизайн, который позволял в ней жить, но не удовлетворял требованиям для сдачи в аренду. Интерьер был достаточно скучным и невыразительным, что затрудняло привлечение клиентов. Чтобы сделать жилье более привлекательным, возникла необходимость создать яркий и функциональный интерьер. Важным аспектом стало обновление мебели и декора, добавление элементов, подчеркивающих индивидуальность квартиры и создающих уютную атмосферу для арендаторов.

-3
-4
-5
-6
-7
-8
-9
-10

О кухне

Кухонный гарнитур оставили без изменений. В интерьер добавили компактный холодильник в ретро стиле, что придало кухне особый шарм и ностальгическую атмосферу. Главным акцентом в этом пространстве стала столовая зона. Круглый стол Тюлип отсылает к популярному в Америке стилю середины 20 века.

Стулья в мягком природном оттенке прекрасно гармонируют с общей концепцией, а прозрачный стул добавляет нотку современности и легкости. Над столом размещены постеры, которые «собирают» все оттенки кухни и придают интерьеру выразительность.

 📷
📷
 📷
📷
 📷
📷

О спальне-гостиной

Чтобы сэкономить на демонтаже отделки, обои покрасили моющейся краской. Место для сна выделили цветной аркой, повторив арочный проем между кухней и прихожей. Вместо кровати поставили два кроватных бокса (по аналогии с гостиничным приемом), что позволит двум людям спать абсолютно раздельно.

 📷
📷
 📷
📷
 📷
📷

Также в комнате был предусмотрен раскладной яркий диван, который добавляет дополнительное место для отдыха. Система хранения для гостей состоит из длинного комода и напольной вешалки, что вполне достаточно для временного размещения вещей. Уюта добавили с помощью тщательно подобранного текстиля, декоративных подушек, цветных журнальных столиков и ярких постеров, которые украшают пространство над диваном.

 📷
📷
 📷
📷
 📷
📷

Стены на балконе обновили с помощью краски. Уютный уголок релакса обустроили с помощью кресла, торшера и столика.

 📷
📷

О прихожей

Одну из стен в прихожей сделали акцентной, окрасив ее в насыщенный красный цвет. Этот смелый выбор создает выразительный фокус, который привлекает внимание и задает настроение всему пространству. Для удобства и комфорта жильцов предусмотрели настенную вешалку для одежды, мягкий пуф и зеркало.

 📷
📷
 📷
📷

В кладовке ничего не трогали от прошлого собственника — там остались удобные полки. Двери покрасили в один цвет со стенами, что сделало их менее заметными, и установили замок для обеспечения безопасности. Кладовка будет использоваться собственницей для хранения предметов, необходимых при работе с гостями, таких как расходные материалы и постельное белье.

 📷
📷

О санузле

В санузле ничего не меняли, лишь добавили необходимые функциональные элементы: крючки и держатель для бумаги. Акцентный декор завершает интерьер, придавая помещению индивидуальность и разбавляя стерильность белого.

 📷
📷

Хотите, чтобы ваш проект был опубликован на INMYROOM? Присылайте фотографии интерьера на wow@inmyroom.ru.

Сейчас читают:

Спасибо, что читаете нас! ❤️

Если материал был полезен — поставьте лайк и отправьте другу.

А ещё больше интерьерных идей, советы экспертов и классные румтуры в нашем Telegram-канале. Подписывайтесь, вам точно понравится!