Найти в Дзене
INMYROOM

Остров и акцентная витрина: как оформили уютную кухню для мамы

Порция вдохновения уже ждет вас Эта квартира в Москве площадью 63,2 м² проектировалась специально для родителей: они переезжали из частного дома в городскую среду, и важно было сохранить ощущение уюта, свободы и связи с природой. Над проектом работали дизайнеры Надежда Шишкова и Лидия Судиловская: они стремились сделать интерьер современным и практичным, но при этом теплым, комфортным и близким по духу. Одной из ключевых зон в квартире стала кухня-гостиная — мама заказчика обожает готовить, поэтому все решения здесь продумывались особенно тщательно. Планировку не меняли: кухня заняла место вдоль одной стены и частично перешла в остров, за которым удобно заниматься приготовлением. Гарнитур выполнен в светлой гамме с теплой фактурой дерева на открытых полках — именно они делают кухню более «домашней» и визуально легкой. Техника встроена: посудомоечная машина, варочная панель, духовка, микроволновка. Холодильник — отдельностоящий, его разместили в глубине композиции. Система хранения прод

Порция вдохновения уже ждет вас

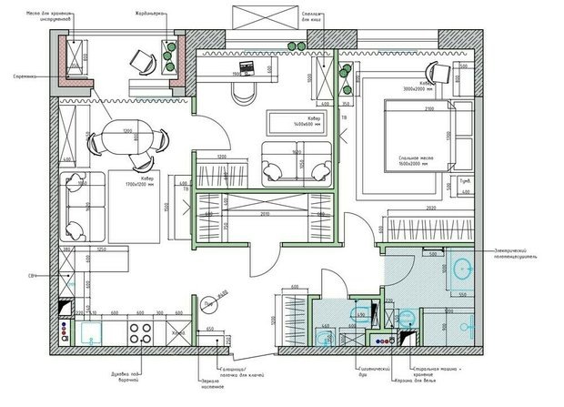
Эта квартира в Москве площадью 63,2 м² проектировалась специально для родителей: они переезжали из частного дома в городскую среду, и важно было сохранить ощущение уюта, свободы и связи с природой.

Над проектом работали дизайнеры Надежда Шишкова и Лидия Судиловская: они стремились сделать интерьер современным и практичным, но при этом теплым, комфортным и близким по духу.

 📷
📷

Одной из ключевых зон в квартире стала кухня-гостиная — мама заказчика обожает готовить, поэтому все решения здесь продумывались особенно тщательно. Планировку не меняли: кухня заняла место вдоль одной стены и частично перешла в остров, за которым удобно заниматься приготовлением.

 📷Дизайн: Надежда Шишкова и Лидия Судиловская
📷Дизайн: Надежда Шишкова и Лидия Судиловская

Гарнитур выполнен в светлой гамме с теплой фактурой дерева на открытых полках — именно они делают кухню более «домашней» и визуально легкой. Техника встроена: посудомоечная машина, варочная панель, духовка, микроволновка. Холодильник — отдельностоящий, его разместили в глубине композиции.

 📷Дизайн: Надежда Шишкова и Лидия Судиловская
📷Дизайн: Надежда Шишкова и Лидия Судиловская

Система хранения продумана до мелочей. Верхние шкафы без ручек — фасады опущены на 2 см, их легко открывать, просто потянув. Нижние модули — с выдвижными ящиками, что удобно в повседневной жизни. Отдельного внимания заслуживает остров: он используется как рабочая поверхность и зона для сервировки.

 📷Дизайн: Надежда Шишкова и Лидия Судиловская
📷Дизайн: Надежда Шишкова и Лидия Судиловская

На стене за обеденной группой поставили белую витрину — она добавляет кухне уюта и позволяет хранить красивую посуду. Все оттенки интерьера мягкие, светлые, с вкраплениями натурального дерева — именно это создает ощущение покоя и уюта, которого хотели достичь дизайнеры.

 📷Дизайн: Надежда Шишкова и Лидия Судиловская
📷Дизайн: Надежда Шишкова и Лидия Судиловская

Кухня получилась не только функциональной, но и очень душевной — здесь хочется проводить время, готовить, устраивать семейные обеды и просто наслаждаться тишиной. Благодаря гармоничному сочетанию материалов, света и деталей, пространство стало настоящим продолжением той природной среды, к которой привыкли хозяева, — только теперь с городским комфортом и современным удобством.

Сейчас читают:

Спасибо, что читаете нас! ❤️

Если материал был полезен — поставьте лайк и отправьте другу.

А ещё больше интерьерных идей, советы экспертов и классные румтуры в нашем Telegram-канале. Подписывайтесь, вам точно понравится!