Добавить в корзинуПозвонить
Найти в Дзене

Полукозловой кран 5 тонн

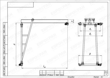
Когда стандартное мостовые или козловые краны не подходят по условиям площадки, но требуется работать с грузами до 5 тонн — оптимальным выбором становится полукозловой кран. На нашем заводе мы проектируем и производим полукозловые краны 5 т с учетом особенностей каждого объекта. Это оборудование успешно применяется как внутри производственных помещений, так и на открытых складах, особенно там, где важно сэкономить пространство, но не жертвовать функциональностью. Мы производим однобалочные и двухбалочные конструкции, адаптированные под заданные параметры пролета и высоты подъема: Полукозловой кран представляет собой гибрид между мостовым и козловым: с одной стороны он опирается на рельсы, закрепленные на конструкциях здания, а с другой — на собственную опору. Такая схема дает максимальную гибкость при размещении крана в условиях стесненной застройки или частичной реконструкции цехов. Конструктивно мы предлагаем несколько типов балок — двутавровые, трубчатые, либо коробчатого сечения, в

Когда стандартное мостовые или козловые краны не подходят по условиям площадки, но требуется работать с грузами до 5 тонн — оптимальным выбором становится полукозловой кран. На нашем заводе мы проектируем и производим полукозловые краны 5 т с учетом особенностей каждого объекта. Это оборудование успешно применяется как внутри производственных помещений, так и на открытых складах, особенно там, где важно сэкономить пространство, но не жертвовать функциональностью.

Мы производим однобалочные и двухбалочные конструкции, адаптированные под заданные параметры пролета и высоты подъема:

  • однобалочные — пролет до 28,5 м, подъем до 36 м;
  • двухбалочные — пролет до 40 м и более, подъем до 36 м.

Полукозловой кран представляет собой гибрид между мостовым и козловым: с одной стороны он опирается на рельсы, закрепленные на конструкциях здания, а с другой — на собственную опору. Такая схема дает максимальную гибкость при размещении крана в условиях стесненной застройки или частичной реконструкции цехов.

Конструктивно мы предлагаем несколько типов балок — двутавровые, трубчатые, либо коробчатого сечения, в зависимости от предполагаемой нагрузки и режима эксплуатации. Все краны оснащаются электрическими мотор-редукторами для перемещения, а в качестве подъемного оборудования устанавливаются канатные тельферы от российских, болгарских или китайских производителей — по выбору заказчика.

Дополнительно, для повышения безопасности и удобства эксплуатации, кран может быть укомплектован:

  • частотными преобразователями — для плавного хода;
  • системой радиоуправления — для дистанционного контроля;
  • ограничителями грузоподъемности, концевыми выключателями;
  • кабиной управления — стационарной или подвижной, по запросу.

Наши краны работают в климатических условиях от -20°С до +60°С, что делает их универсальными для большинства регионов России. Мы адаптируем оборудование под конкретные условия: будь то агрессивная производственная среда, повышенная влажность или необходимость уличной установки.

-2

Почему выбирают нас

Мы не просто поставляем кран — мы разрабатываем инженерное решение под Ваши задачи. Каждый полукозловой кран 5 т создается индивидуально, на основе опросного листа и анализа объекта. Мы учитываем все: от геометрии помещения до интенсивности работы, от требований безопасности до пожеланий по автоматизации процессов.

Если Вам нужно надежное и компактное грузоподъемное оборудование, адаптированное под реальные условия, — обратитесь к нам. Мы поможем Вам внедрить эффективное крановое решение, которое повысит производительность и упростит рабочие процессы с первых дней эксплуатации.