Добавить в корзинуПозвонить
Найти в Дзене

Проект индивидуального СПА-комплекса

Мы завершили проект небольшого СПА комплекса. Интересным и необычным решением является пруд на участке и небольшой консольный мостик для ныряния. Сочетание монолитного каркаса и деревянной террасы позволило реализовать максимальное остекление.
Оглавление

Мы завершили проект небольшого СПА комплекса. Интересным и необычным решением является пруд на участке и небольшой консольный мостик для ныряния. Сочетание монолитного каркаса и деревянной террасы позволило реализовать максимальное остекление.

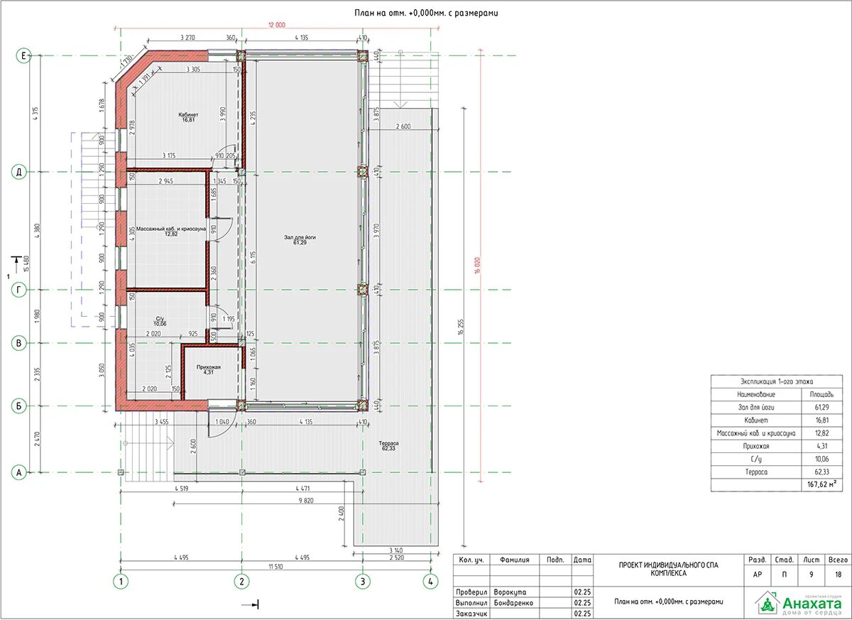
Архитектурный план

Архитектурный план
Архитектурный план

Здание в разрезах

Разрез 1-1
Разрез 1-1
Разрез 2-2
Разрез 2-2

Фасады дома

Фасад в осях 1-4
Фасад в осях 1-4
Фасад в осях 4-1
Фасад в осях 4-1
Фасад в осях Е-А
Фасад в осях Е-А
Фасад в осях А-Е
Фасад в осях А-Е

Визуализация комплекса

-9
-10
-11
-12