Найти в Дзене
Мастерская дизайнера

Разработка планировки квартиры в Планоплане

Эта заметка текстом и иллюстративно дополняет ролик с показом записи демонстрации планировки квартиры с экрана. Смысл показа объемно-планировочного решения - рассмотреть вариант планировки с учетом объема, но концептуально и без учета цвета, стиля, с условной схематичной подачей мебели и наполнения. В дополнение можно посмотреть начальный план: И новый эскиз перепланировки в Планоплан: Далее можно посмотреть эскизные виды сверху созданного объемно-планировочного решения: Если хотите познакомиться самостоятельно с возможностями Планоплан, приглашаю заглянуть на страничку моего онлайн-курса.

Эта заметка текстом и иллюстративно дополняет ролик с показом записи демонстрации планировки квартиры с экрана.

Смысл показа объемно-планировочного решения - рассмотреть вариант планировки с учетом объема, но концептуально и без учета цвета, стиля, с условной схематичной подачей мебели и наполнения.

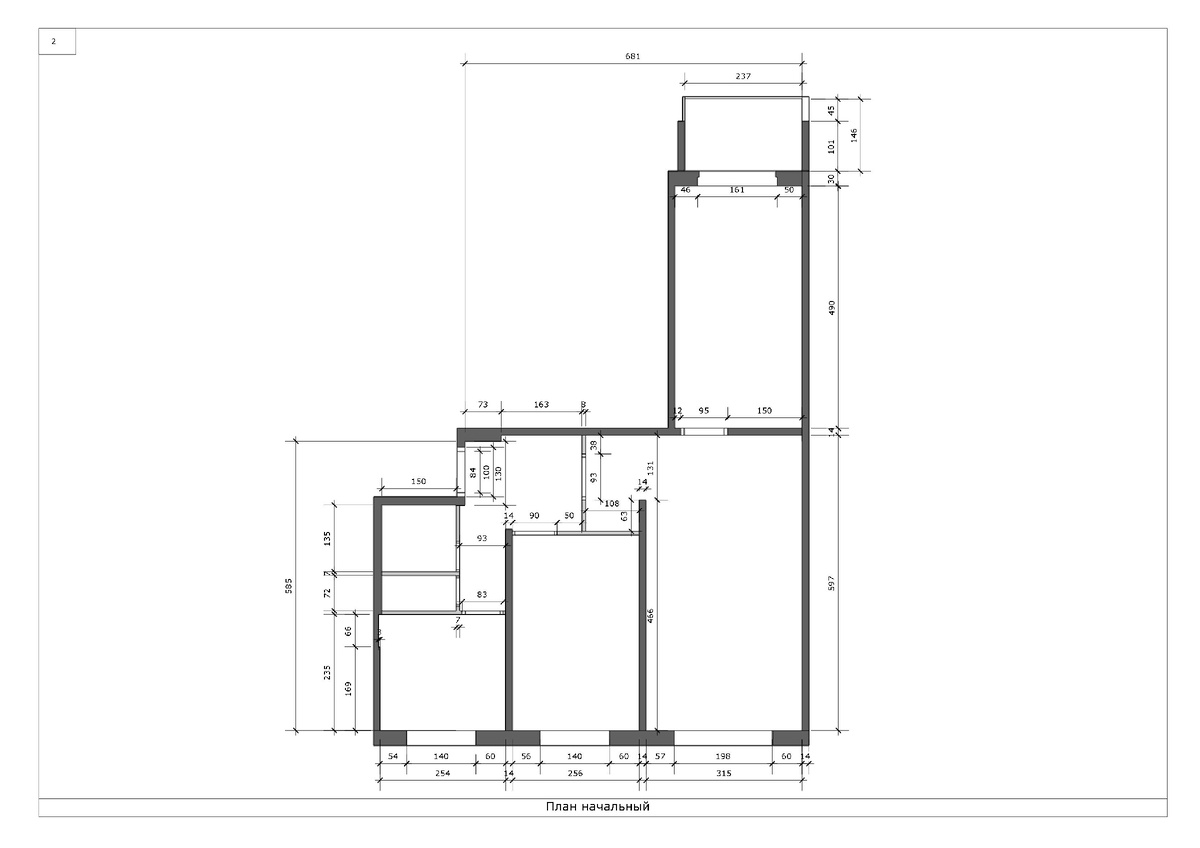
В дополнение можно посмотреть начальный план:

План квартиры до перепланировки
План квартиры до перепланировки

И новый эскиз перепланировки в Планоплан:

Эскиз перепланировки в Планоплан
Эскиз перепланировки в Планоплан
План расстановки мебели в Планоплан
План расстановки мебели в Планоплан
План монтажа перегородок в Планоплан
План монтажа перегородок в Планоплан

Далее можно посмотреть эскизные виды сверху созданного объемно-планировочного решения:

Общий вид квартиры
Общий вид квартиры
Детская
Детская

Если хотите познакомиться самостоятельно с возможностями Планоплан, приглашаю заглянуть на страничку моего онлайн-курса.