Добавить в корзинуПозвонить
Найти в Дзене
INMYROOM

Хрущевка 2.0: как «уставшая» трешка на 57 квадратах обрела новую жизнь (фото до и после)

Смотрите, как преобразилась квартира после ремонта В Санкт-Петербурге, как и во многих городах России, немало районов застроено хрущевками — типовыми пятиэтажками, возведенными в 1960-х годах. Одна из таких квартир, трехкомнатная хрущевка серии 1-507, расположенная в доме 1964 года постройки, стала героиней нашей истории. Эти дома, известные своими маленькими кухнями и совмещенными санузлами, строились по всему СССР как временное жилье на 25 лет. Однако прошло уже более полувека, а многие семьи до сих пор называют их своим домом. Анна, хозяйка квартиры, получила ее в наследство. Типичная трешка площадью 57 квадратных метров казалась безнадежно устаревшей. Но что, если сказать, что даже такое пространство можно превратить в уютное и функциональное жилье? Мы расскажем историю преображения этой обычной хрущевки, которая доказывает: чудеса случаются, даже если вам досталась квартира из прошлого века. Тип дома: Хрущевка Метраж: 57 кв.м Год постройки: 1964 Этажи: 5 Комнаты: 3 Cанузлы: 1 Диза
Оглавление

Смотрите, как преобразилась квартира после ремонта

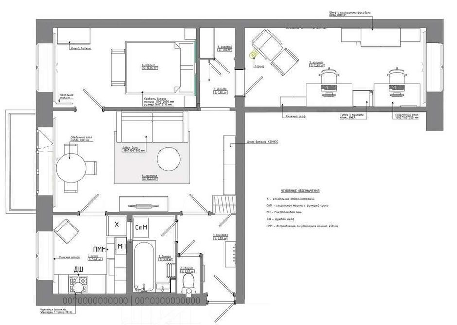
В Санкт-Петербурге, как и во многих городах России, немало районов застроено хрущевками — типовыми пятиэтажками, возведенными в 1960-х годах. Одна из таких квартир, трехкомнатная хрущевка серии 1-507, расположенная в доме 1964 года постройки, стала героиней нашей истории. Эти дома, известные своими маленькими кухнями и совмещенными санузлами, строились по всему СССР как временное жилье на 25 лет. Однако прошло уже более полувека, а многие семьи до сих пор называют их своим домом.

Анна, хозяйка квартиры, получила ее в наследство. Типичная трешка площадью 57 квадратных метров казалась безнадежно устаревшей. Но что, если сказать, что даже такое пространство можно превратить в уютное и функциональное жилье? Мы расскажем историю преображения этой обычной хрущевки, которая доказывает: чудеса случаются, даже если вам досталась квартира из прошлого века.

Тип дома: Хрущевка
Метраж: 57 кв.м
Год постройки: 1964
Этажи: 5
Комнаты: 3
Cанузлы: 1
Дизайн: Полина Андреева

Главное из статьи:

  • Перепланировка позволила создать анфиладу и увеличить пространство кухни;
  • Сохранение оригинальных элементов (двери, паркет) сэкономило бюджет;
  • Темные цвета в маленьких помещениях могут работать на расширение пространства;
  • Нестандартные решения (покраска плитки, использование компакт-плит) помогли сократить расходы;
  • Правильное освещение и декор способны кардинально изменить атмосферу квартиры.

Как сделать из хрущевки конфетку и не разориться?

«Квартира 57 квадратных метров, которая досталась мне по наследству,» — рассказывает хозяйка Анна. Казалось бы, что можно сделать с типовой планировкой? Но дизайнер Полина Андреева доказала обратное. «Главной задачей было сохранить изначально некоторые детали интерьера и вписаться в достаточно ограниченный бюджет,» — поясняет она.

Первым делом была проведена перепланировка. Благодаря ней в квартире появилась анфилада — прием, который обычно ассоциируется с роскошными дворцами, а не с хрущевками. Это позволило визуально расширить пространство и улучшить циркуляцию света.

 📷
📷

Кухня: от тесной коробки к просторному хабу

Кухня в хрущевке — вечная головная боль. Но здесь она превратилась в настоящее сердце дома. «Поскольку здесь была сделана перепланировка, раньше вход на кухню располагался со стороны коридора, сейчас он здесь,» — объясняет Полина. Это позволило увеличить рабочее пространство и даже установить полноценный обеденный стол.

Интересное решение — отказ от навесных шкафов на одной из стен. Вместо этого до потолка выложили глянцевую плитку мятного цвета, что визуально расширило пространство. А вытяжка черного цвета добавила современный акцент.

 📷
📷
 📷
📷

Гостиная и спальня: игра с цветом и пространством

Кто сказал, что в маленькой квартире нельзя экспериментировать с цветом? В спальне дизайнер рискнула и покрасила потолок в зеленый цвет. «Полина уговорила меня попробовать рискнуть сделать зеленый потолок. Я согласилась, мне обещали медаль за храбрость,» — смеется Анна.

Этот ход оказался выигрышным. Темный цвет не «съел» пространство, а наоборот, придал комнате глубину и уют. В сочетании со светлыми стенами и обоями, комната выглядит гармонично и просторно.

 📷
📷
 📷
📷
 📷
📷

Ванная и туалет: максимум функциональности на минимуме площади

Ванная комната в хрущевке обычно вызывает лишь желание побыстрее оттуда выбраться. Но здесь она превратилась в настоящий спа-уголок. «Благодаря этой перепланировке мы смогли поставить сюда полноценную ванную на 160 см, и Анна может спокойно лежать, чего она очень хотела,» — рассказывает дизайнер.

Интересное решение — покраска старой напольной плитки. «Когда мы выложили плитку по стенам, мы поняли, что плитка, которая здесь была, она никак не сочетается с нашей светлой красивой глянцевой плиткой. Поэтому было принято решение... мы ее покрасили,» — делится опытом Анна. Этот бюджетный ход позволил обновить пространство без дорогостоящей замены напольного покрытия.

 📷
📷
 📷
📷

Детали, которые меняют все

В процессе ремонта было сохранено многое из «родного» интерьера: двери, паркет, даже некоторые элементы декора. Это не только сэкономило бюджет, но и добавило квартире шарма и индивидуальности.

Особое внимание уделили освещению. В квартире практически нет потолочных светильников, вместо этого использовались бра и напольные лампы. Это создало уютную атмосферу и позволило избежать сложных работ с потолком.

«У нас здесь очень много памятных деталей, которые достались от отца, от мамы, от родителей, бабушек, дедушек, и мы все это старались вписать в ее интерьер. Чтобы в нем была жизнь, и этот интерьер отражал именно ее,» — рассказывает Полина.

 📷
📷
 📷Спальня после ремонта
📷Спальня после ремонта

Обратите внимание на видео:

Итог: мечты сбываются

История этой квартиры доказывает, что даже типовая хрущевка может стать уникальным и комфортным пространством. Главное — подойти к ремонту с умом, не бояться экспериментировать и помнить, что даже маленькое пространство может быть функциональным и стильным.

Как говорит Анна: «Изначально у меня была задача сохранить некоторые детали интерьера и вписаться в достаточно ограниченный бюджет». И, судя по результату, эта задача была выполнена на отлично. Теперь эта квартира — не просто жилплощадь, а настоящий дом, наполненный историей, уютом и индивидуальностью.

 📷Кабинет до ремонта
📷Кабинет до ремонта
 📷
📷
 📷Кабинет после ремонта
📷Кабинет после ремонта

Сейчас читают: