Найти в Дзене
Мастерская дизайнера

Вариации планировки трехкомнатной квартиры в панельном доме

Продолжаю работу над эскизами перепланировки квартиры в панельном доме, и в этой статье я показываю несколько новых вариаций, основанных на новых пожеланиях заказчика и моих вопросах, решение которых я здесь предлагаю. В прошлой заметке я показывал процесс разработки эскизной планировки квартиры, ее можно посмотреть здесь: Пожелания касались зонирования спальни, кабинета, санузла, и здесь я реализовал их все, во всех новых вариантах. В спальне вместо кровати поставил диван-кровать, добавил туалетный столик. В кабинете убрал столешницу вдоль окна и стеллаж, добавил кресло и полки над столом. С санузле между душевой и входной зоной ванной поставил строительную перегородку. Не советую делать встроенные шкафы, увеличивая толщину перегородки, на которой висит зеркальный шкаф ванной. Такой шкаф все равно получится не глубоким и не функциональным, и забирает много места как в ванной, так и на кухне - что может не позволить установить кухонную технику в нише кухни, и заузит проход между тумб

Продолжаю работу над эскизами перепланировки квартиры в панельном доме, и в этой статье я показываю несколько новых вариаций, основанных на новых пожеланиях заказчика и моих вопросах, решение которых я здесь предлагаю.

В прошлой заметке я показывал процесс разработки эскизной планировки квартиры, ее можно посмотреть здесь:

Пожелания касались зонирования спальни, кабинета, санузла, и здесь я реализовал их все, во всех новых вариантах.

В спальне вместо кровати поставил диван-кровать, добавил туалетный столик.

В кабинете убрал столешницу вдоль окна и стеллаж, добавил кресло и полки над столом.

С санузле между душевой и входной зоной ванной поставил строительную перегородку.

Не советую делать встроенные шкафы, увеличивая толщину перегородки, на которой висит зеркальный шкаф ванной. Такой шкаф все равно получится не глубоким и не функциональным, и забирает много места как в ванной, так и на кухне - что может не позволить установить кухонную технику в нише кухни, и заузит проход между тумбой и душем в ванной.

Лучше просто повесить корпусной зеркальный шкаф.

Что же касается моего вопроса, то я обнаружил или вспомнил, что при перепланировке, если в квартире с комнатами более двух до перепланировки была комната площадью более 16 кв м, после перепланировки тоже должна оставаться жилая комната не менее такой площади.

Эти вопросы нужно, конечно, уточнять и решать вместе со специалистами по согласованию перепланировок, я же, как дизайнер, со своей стороны могу предложить эскизные варианты.

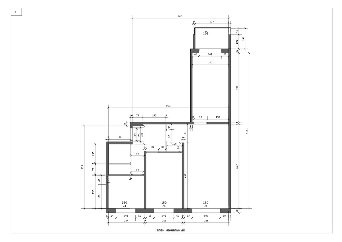
Итак, вот первоначальная планировка:

Начальный вариант планировки
Начальный вариант планировки

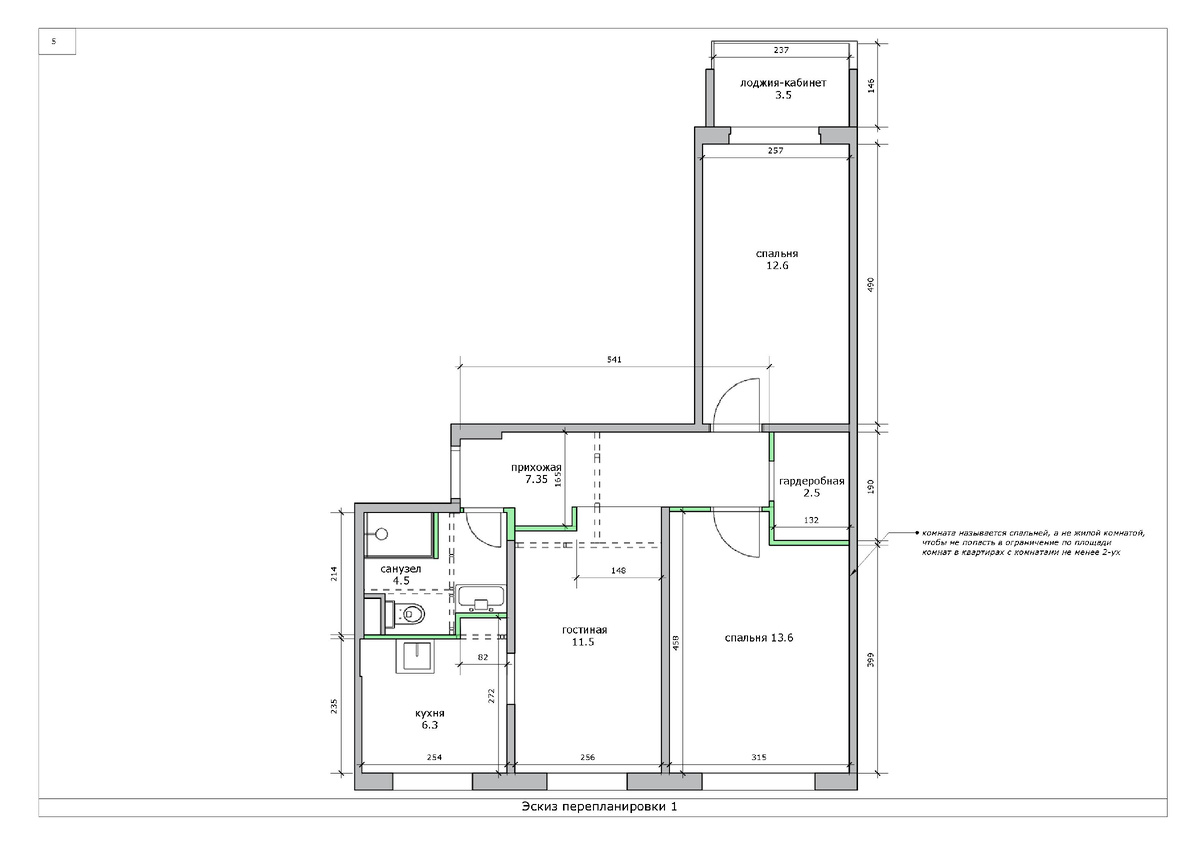
Основной вариант планировки, который мы рассматриваем, был такой:

Вариант перепланировки 1
Вариант перепланировки 1
Вариант перепланировки 1 с мебелью
Вариант перепланировки 1 с мебелью

В этом варианте отчетливо видно, что в нем не остается ни одной комнаты площадью более 16-ти кв м. Чтобы обойти это ограничение, я назвал все комнаты спальнями или гостиной. Но не уверен, что это сработает.

Базовый вариант перепланировки, который я считаю основным:

Базовый вариант перепланировки
Базовый вариант перепланировки
Базовый вариант перепланировки с мебелью
Базовый вариант перепланировки с мебелью

В этом решении мой вопрос решается тем, что общая жилая комната увеличивается за счет присоединения части коридора, становится проходной.

Для комнаты, несущей функции гостиной, это нормально.

Вариант перепланировки 2:

Вариант перепланировки 2.
Вариант перепланировки 2.
Вариант перепланировки 2 с мебелью
Вариант перепланировки 2 с мебелью

В этом решении комната, которая будет детской, называется жилой комнатой, и включает площадь гардеробной зоны. Для ее отделения после согласования перепланировки нужно использовать реечную или металлопластиковую перегородку в не строительном исполнении.

Вариант перепланировки 3:

Вариант перепланировки 3
Вариант перепланировки 3
Вариант перепланировки 3 с мебелью
Вариант перепланировки 3 с мебелью

В этом варианте будущая детская/жилая комната проходная, но после согласования перепланировки отделяется от входной зоны не строительной перегородкой.

Нужно рассмотреть все варианты, обсудить их со специалистом по согласованию перепланировок, и принять окончательное решение.

Работа над проектом продолжается.