Найти в Дзене

Свайно-винтовой фундамент для каркасного дома площадью 12 на 12 метров

Сегодня рассказываем про реализованный недавно проект — фундамент из винтовых свай в Московской области. Фундамент предназначен для строительства одноэтажного деревянного каркасного дома. В статье раскроем технические детали фундамента и расскажем, как сложный грунт повлиял на сроки и процесс работ. Строение, для которого предназначен этот свайно-винтовой фундамент — одноэтажный каркасный деревянный дом. В доме просторная гостиная, одна комната со своим санузлом и дополнительный санузел при входе. Кухня не совмещена с гостиной, а выделена в отдельное помещение. К дому примыкает терраса, выйти на которую можно как из кухни, так и из гостиной. Размеры дома вместе с террасой — около 12 × 12 м. Всего для такого дома потребовалось 50 винтовых свай диаметром 108 мм. Толщина стенки — 4 мм. После монтажа сваи будут связаны между собой деревянной обвязкой. Что касается длины свай, она зависит от параметров грунта в пятне застройки, то есть от глубины залегания плотных слоев. Согласно предварите
Оглавление

Сегодня рассказываем про реализованный недавно проект — фундамент из винтовых свай в Московской области. Фундамент предназначен для строительства одноэтажного деревянного каркасного дома. В статье раскроем технические детали фундамента и расскажем, как сложный грунт повлиял на сроки и процесс работ.

Здание

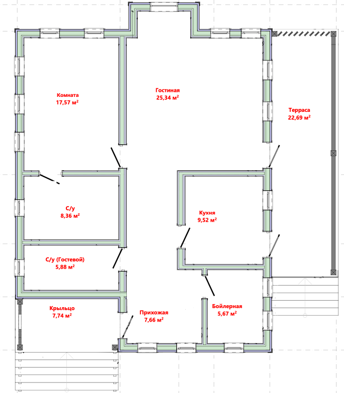
Строение, для которого предназначен этот свайно-винтовой фундамент — одноэтажный каркасный деревянный дом. В доме просторная гостиная, одна комната со своим санузлом и дополнительный санузел при входе. Кухня не совмещена с гостиной, а выделена в отдельное помещение. К дому примыкает терраса, выйти на которую можно как из кухни, так и из гостиной.

Размеры дома вместе с террасой — около 12 × 12 м.

План фундамента

Всего для такого дома потребовалось 50 винтовых свай диаметром 108 мм. Толщина стенки — 4 мм.

-2

После монтажа сваи будут связаны между собой деревянной обвязкой.

-3

Параметры грунта

Что касается длины свай, она зависит от параметров грунта в пятне застройки, то есть от глубины залегания плотных слоев. Согласно предварительно выполненным геологическим изысканиям, грунт на участке — насыпной. Чтобы возвести на таком надежный фундамент, нужно чтобы сваи прошли всю толщину насыпного грунта до плотного слоя. В данном случае геология показала — заглубить сваи надо на 4,5 м. С учетом высоты цоколя на этом объекте мы использовали сваи длиной 5 м.

У насыпного грунта есть и другая неприятная сторона: часто он содержит много строительного мусора, камней, кусков бетона. Чтобы закрутить сваю в таких условиях, может потребоваться тяжелая техника. Именно так было на данном объекте.

Техника

Чтобы закрутить здесь сваи, нужно было сначала выполнить подготовительную работу — лидерное бурение, а затем закрутить сваи. Поэтому на данном объекте для монтажа нужно было использовать ямобур. Он и выполняет лидерное бурение, и, благодаря вылету, стрелы способен закручивать цельные сваи большой длины.

-4

Сложности

Выполнить работы на этом объекте нужно было срочно, но наш ямобур мог приехать на объект только через несколько дней. Чтобы сэкономить время, заказчик сам нашел и пригласил на участок ямобур. Этот ямобур не подошел для нашей задачи: шли дожди, он буксовал во время монтажа. За день ему удалось смонтировать всего 10 свай. Через день на объект прибыл наш ямобур, он закрутил первые 10 свай уже за полчаса работы.

Когда мы спросили своих специалистов, почему второй ямобур справился лучше, они объяснили, что первый был неверно подобран по параметрам. А кроме этого, бригаде удобнее и проще работать с операторами ямобуров, у которых уже есть опыт участия в монтаже свай.

Результат

Несмотря на сложный грунт, дожди и заминку с техникой, работы на объекте мы выполнили за три дня.

-5

Если для вас актуален вопрос возведения свайного фундамента, обращайтесь в «Королёвский завод свай». Действующие акции и скидки — на сайте завода.