Добавить в корзинуПозвонить
Найти в Дзене
Мастерская дизайнера

Перепланировка трехкомнатной квартиры в панельном доме: вариант с отдельной гардеробной, рабочим местом у окна в детской, и другими идеями.

Эта квартира находится на этапе начальной проработки и поиска планировочных решений. Предыдущие варианты планировки выкладывал здесь: И здесь: Теперь же показываю новый вариант, с учетом новой информации от своих заказчиков, молодой семейной пары с ребенком. По пунктам. Предусмотрел у окна столешницу, которую можно использовать и как дополнительное место для приготовления пищи или размещения техники, так и как место для завтрака, ужина, быстрого перекуса единолично, не переходя в столовую зону гостиной. Холодильник размещается отдельно, справа от прохода в гостиную. Здесь нужно будет учесть расстояние от стены ввиду расположения труб отопления, но это дело более детального расчета, пока же в качестве идеи может быть. Напротив холодильника в нише колонна со встроенными духовым шкафом и микроволновой печью. Это позволит освободить нижний шкаф под варочной панелью для размещения выдвижных ящиков. За счет уменьшения глубины шкафа со стороны прихожей можно поставить более длинный диван. Т
Оглавление
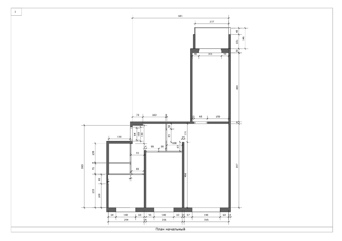
Начальный план трехкомнатной квартиры до перепланировки
Начальный план трехкомнатной квартиры до перепланировки

Эта квартира находится на этапе начальной проработки и поиска планировочных решений.

Предыдущие варианты планировки выкладывал здесь:

И здесь:

Теперь же показываю новый вариант, с учетом новой информации от своих заказчиков, молодой семейной пары с ребенком.

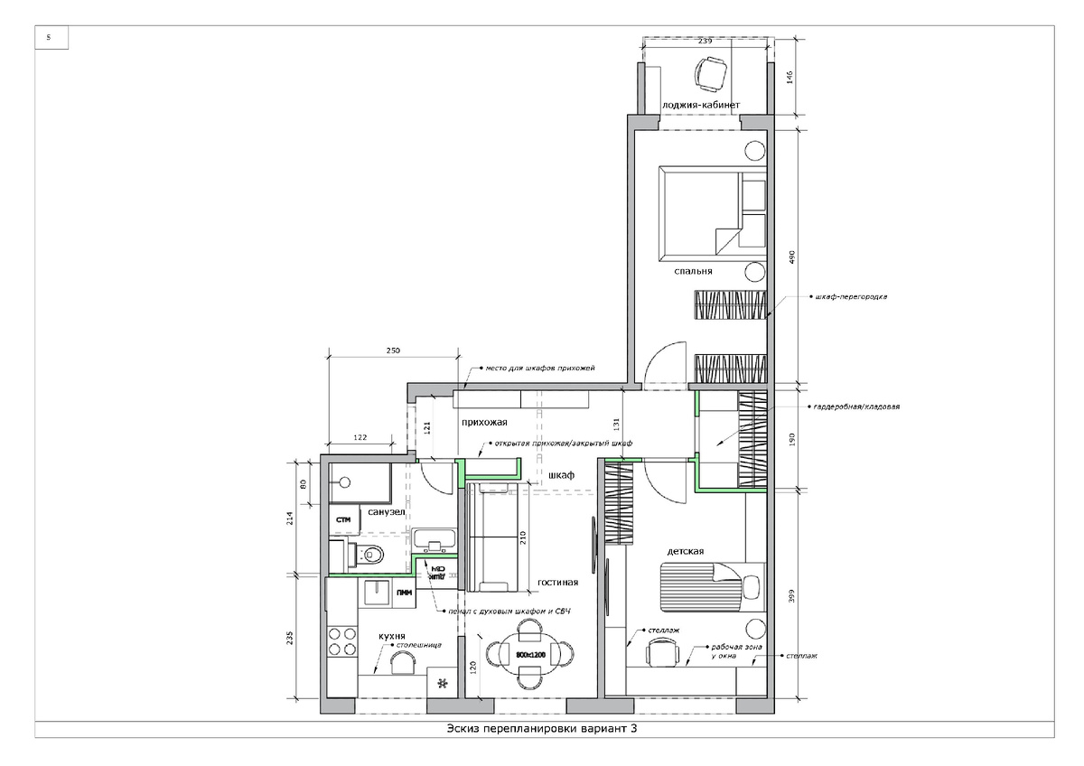
Третий вариант планировки в квартире в панельном доме
Третий вариант планировки в квартире в панельном доме

По пунктам.

Кухня.

Предусмотрел у окна столешницу, которую можно использовать и как дополнительное место для приготовления пищи или размещения техники, так и как место для завтрака, ужина, быстрого перекуса единолично, не переходя в столовую зону гостиной.

Холодильник размещается отдельно, справа от прохода в гостиную.

Здесь нужно будет учесть расстояние от стены ввиду расположения труб отопления, но это дело более детального расчета, пока же в качестве идеи может быть.

Напротив холодильника в нише колонна со встроенными духовым шкафом и микроволновой печью. Это позволит освободить нижний шкаф под варочной панелью для размещения выдвижных ящиков.

Гостиная.

За счет уменьшения глубины шкафа со стороны прихожей можно поставить более длинный диван.

Также нужно обратить внимание, что проем между кухней и гостиной находится на расстоянии 120 см от внешней стены дома, при ширине проема 90 см. Эти параметры единственно возможные на втором этаже панельного дома - и то, пока ждем мнения инженеров о принципиальной возможности сделать этот проем конкретно в этой ситуации.

Прихожая.

Небольшой шкаф в нише перед гостиной позволит организовать или открытую прихожую зону с вешалкой и полками, или закрытый шкафчик.

Дополнительную мебель можно разместить вдоль противоположной стены, и этот момент уточниться при дальнейшей проработке.

Санузел.

По сравнению с прошлым вариантом развернул тумбу под раковину, поставив ее фасадом ко входу в ванную.

Немного сократил длину душевой - чтобы сохранить ширину прохода между тумбой и душевой.

Детская.

Рабочую зону в детской расположил вдоль окна.

Кровать развернул, это позволило добавить дополнительные шкафы и стеллажи вдоль стены с изголовьем.

Хороший гардероб по прежнему расположен ближе ко входу на противоположной кровати стене.

Спальня.

Предложена выделенная шкафом-перегородкой гардеробная зона во входной зоне спальни.

Это сужает визуальный объем комнаты, зато задействует с пользой ее площадь.

Кладовая/гардеробная.

Это также освобождает место в кладовой для хранения более габаритных вещей, или же расширяет место для дополнительного хранения одежды.

Балкон/кабинет.

Будет утепляться с организацией рабочего места для хозяина квартиры.

Пока план не изменился.

Работа над планировкой квартиры будет продолжена.