Добавить в корзинуПозвонить
Найти в Дзене

Как позаботиться об арендателе в 2025? Часть 1

Создание красивого, практичного, надежного интерьера в квартире, сдаваемой в аренду, имеет важное значение! Говорила, говорю и буду об этом говорить))) Сегодня познакомлю вас со свежим, горячим, как пирожки)) моим проектом в ЖК HIDE И тут я опять затрагиваю актуальную тему, наглядно объясняя ключевые причины, зачем же нужно "заморачиваться" над интерьером, в котором жить не вам. Можете закатывать глаза сколько угодно, но умоляю дочитайте до конца.. Слева вы видите изначальный план квартиры. Справа утвержденная перепланировка с расположением мебели. Ах да, площадь квартиры 55 кв.м., но выглядит она гораздо просторнее своего метража! Можете убедиться сами, взглянув на визуальную часть проекта. Итак, переходим к причине №1 привлечение арендаторов Продуманная, но при этом достаточно компактная кухня, в нейтральных тонах и с множеством мест для хранения. Уютный, большой, не загромождающий пространство обеденный стол, с акцентным освещением над ним. Зеркала и потолок с эффектом парения до

Создание красивого, практичного, надежного интерьера в квартире, сдаваемой в аренду, имеет важное значение! Говорила, говорю и буду об этом говорить)))

Сегодня познакомлю вас со свежим, горячим, как пирожки)) моим проектом в ЖК HIDE

И тут я опять затрагиваю актуальную тему, наглядно объясняя ключевые причины, зачем же нужно "заморачиваться" над интерьером, в котором жить не вам.

Можете закатывать глаза сколько угодно, но умоляю дочитайте до конца..

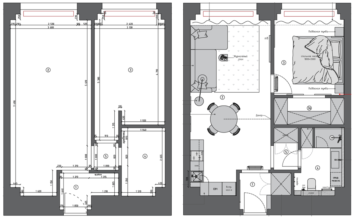
Слева вы видите изначальный план квартиры. Справа утвержденная перепланировка с расположением мебели. Ах да, площадь квартиры 55 кв.м., но выглядит она гораздо просторнее своего метража! Можете убедиться сами, взглянув на визуальную часть проекта.

ЖК HIDE, планировка
ЖК HIDE, планировка

Итак, переходим к причине №1 привлечение арендаторов

Продуманная, но при этом достаточно компактная кухня, в нейтральных тонах и с множеством мест для хранения. Уютный, большой, не загромождающий пространство обеденный стол, с акцентным освещением над ним. Зеркала и потолок с эффектом парения добавляют объема и визуально увеличивают пространство.

Современный и стильный ремонт значительно увеличивает интерес со стороны потенциальных арендаторов, что позволяет сдать квартиру быстрее и по более выгодной цене.

Долгосрочная аренда

Высокое зеркало с подсветкой подчеркивают и визуально увеличивают высоту потолка. Множество скрытых мест для хранения вещей безусловно будет большим бонусом в глазах арендаторов!

Нейтральный и привлекательный интерьер способствует долгосрочной аренде, так как жильцы сами наполняют его своими акцентами и личными вещами.

Удобство и функциональность

Супер комфортный трехметровый диван с оттоманкой сразу становиться главным местом в этой части квартиры. И гостей соберет, и позволит расслабиться за просмотром любимого сериальчика)) а подушки наведут уют!

Правильное зонирование и расстановка мебели, включая раскладные диваны и кровати, обеспечивают комфорт и функциональность для арендаторов.

Особое внимание заслуживает вид из окна!

Вид на МГУ
Вид на МГУ

Продолжение следует...

___________________________________________________________________________

Меня зовут Евгения Акимова. Я - дизайнер интерьеров в Москве. Помогаю своим клиентам обустроить их жилье функционально и эстетично, работаю с новостройками для себя, под продажу и под сдачу.

За 10 лет работы я сделала более 100 крутых перепланировок, где смогла предусмотреть много мест для хранения, мастер-спальни со своим санузлом и гардеробными, кухни-ниши, хоз.шкафы и многое другое.

Мои проекты публикуют в Elle Decoration и других СМИ. В них очень комфортно жить своей самой лучшей жизнью или получать инвестиции, сдавая в аренду.

Если Вам нравятся мои работы, если Вы хотите видеть не только результат, но и процесс проектирования и ремонта, то прямо сейчас подписывайтесь на мой телеграмм

___________________________________________________________________________

Поделитесь своими мыслями в комментариях! Мне очень интересно услышать именно ваше мнение на этот счет)))