Добавить в корзинуПозвонить
Найти в Дзене
INMYROOM

Актуальная и продуманная трешка 71 м² в стиле современная классика

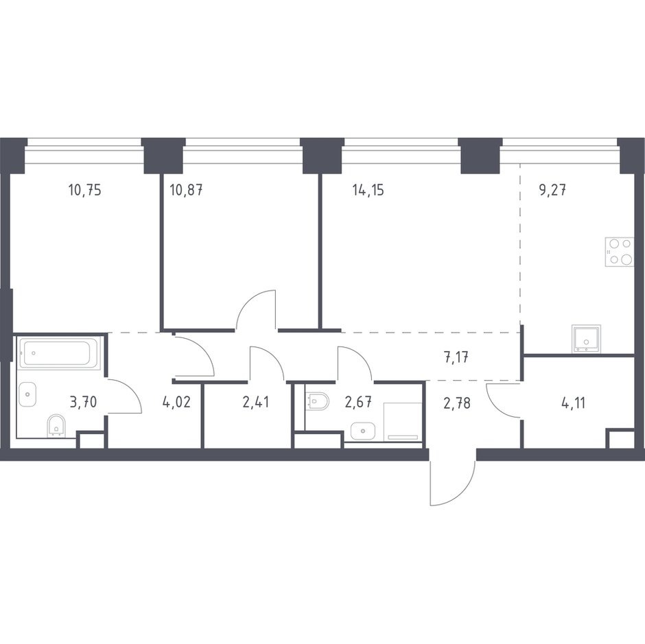
Уютный интерьер в теплой палитре и с выразительными фактурами Место: Москва Тип дома: Новостройка Метраж: 71,1 кв. м Застройщик: Группа «САМОЛЕТ» Жк NOVA Комнаты: 3 Cанузлы: 2 В основе этого проекта ЖК NOVA от застройщика «Самолет» — благородные светлые оттенки и игра фактур. В трехкомнатной квартире с большими окнами и высокими потолками есть просторная кухня-гостиная, мастер-спальня со своим санузлом и гардеробной, детская, прихожая и санузел. Главное преимущество планировки — возможность трансформировать пространство под нужды жильцов и под различные цели. В ней сохранена удобная геометрия комнат, предусмотрены ниши, продумана расстановка мебели и техники, учтены естественное освещение и все тонкости инженерных коммуникаций. В просторной кухне-гостиной есть ниша для угловой кухни и много свободного пространства для того, чтобы удобно распланировать функциональные зоны и поставить всю необходимую мебель. Стены окрашены стойкой акриловой краской в базовом светлом оттенке. На его фоне
Оглавление

Уютный интерьер в теплой палитре и с выразительными фактурами

Место: Москва
Тип дома: Новостройка
Метраж: 71,1 кв. м
Застройщик: Группа «САМОЛЕТ» Жк NOVA
Комнаты: 3
Cанузлы: 2

Вкратце

В основе этого проекта ЖК NOVA от застройщика «Самолет» — благородные светлые оттенки и игра фактур. В трехкомнатной квартире с большими окнами и высокими потолками есть просторная кухня-гостиная, мастер-спальня со своим санузлом и гардеробной, детская, прихожая и санузел. Главное преимущество планировки — возможность трансформировать пространство под нужды жильцов и под различные цели. В ней сохранена удобная геометрия комнат, предусмотрены ниши, продумана расстановка мебели и техники, учтены естественное освещение и все тонкости инженерных коммуникаций.

 📷
📷

Подробности

В просторной кухне-гостиной есть ниша для угловой кухни и много свободного пространства для того, чтобы удобно распланировать функциональные зоны и поставить всю необходимую мебель. Стены окрашены стойкой акриловой краской в базовом светлом оттенке. На его фоне очень стильно смотрятся яркие и фактурные арт-объекты, которыми украсили стены прихожей. Они делают атмосферу уникальной, а пространство — визуально приятным. На полу в кухне, санузлах и входной зоне — керамогранит крупного формата, в остальных пространствах — инженерная доска из натурального дуба. Потолки из гипсокартона повторяют цвет стен.

 📷
📷
 📷
📷

На кухне — угловой вместительный гарнитур с элегантным сочетанием глянцевых бежевых и светлых матовых фасадов. Техника размещена в высоких пеналах, которые встроили в нишу. Фартук выполнен из стеновой панели с имитацией фактуры камня. Кухня оснащена всей необходимой современной техникой, фильтром для воды и измельчителем для бытовых отходов.

 📷Обеденный стол на границе между кухней и гостиной зрительно связывает зоны «по смыслу».
📷Обеденный стол на границе между кухней и гостиной зрительно связывает зоны «по смыслу».

Оконные проемы расположены невысоко от уровня пола, поэтому пространство около них оставили свободным — эта интересная интерьерная находка делает комнату более легкой, просторной и наполненной воздухом. В центре гостиной — ультрамодный модульный диван округлой формы. Оригинальный столик с фактурой камня привлекает внимание и эффектно дополняет интерьер. ТВ-зона оформлена зеркалом и декорирована молдингами в контрастном бордовом оттенке. Классической симметрии добились с помощью двух открытых стеллажей по бокам телевизора.

 📷
📷
 📷
📷

Детская комната оформлена в светлых оттенках с яркими акцентами в текстиле и декоре. В качестве спального места поставили кровать с вместительным коробом для хранения. Рабочую зону обустроили около окна, а основное хранение организовали в большом двустворчатом шкафу.

 📷
📷
 📷
📷
 📷
📷

Современный тренд обустройства спальной зоны — мастер-спальня со своей ванной комнатой и личным гардеробом. Конфигурация помещения предполагает, что выступы и ниши можно использовать по своему усмотрению. А расположение комнат позволяет родителям создать приватную зону для отдыха и уединения, оставаясь поблизости от детской.

 📷
📷
 📷
📷

Для этой спальни выбрали приглушенный пыльно-розовый оттенок. Стену в изголовье кровати оформили декоративными рифлеными панелями. Они перекликаются с фасадами гардеробной, добавляя динамики и делая выразительный акцент. Продуманное наполнение гардеробной позволяет организовать самое разное хранение.

 📷
📷
 📷
📷
 📷
📷

Для отделки санузлов использовали крупноформатный керамогранит. В мастер-санузле предусмотрели полноценную ванну, во втором санузле — душ. В прихожей есть отдельное помещение, в котором обустроили постирочную и организовали дополнительное хранение бытовых принадлежностей.

 📷
📷
 📷
📷
 📷
📷
 📷
📷
 📷
📷

Сейчас читают: