Добавить в корзинуПозвонить
Найти в Дзене
INMYROOM

6 стоящих идей для хранения, которые мы подсмотрели в проекте профи

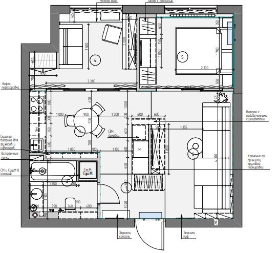
Оригинальное и функциональное пространство с интересными решениями Дизайнер Марина Сутырина создала красивый и очень уютный интерьер в трешке 51 кв. м. Давайте посмотрим, как решили вопрос с хранением. Мы собрали 6 классных и неочевидных идей из проекта, которые точно не оставят вас равнодушными. Читайте и вдохновляйтесь на переделки! Главной фишкой проекта стал мебельный остров — оригинальная конструкция, которую выстроили для создания круговой планировки. Со стороны кухни в остров встроили технику, со стороны прихожей сделали шкаф с зеркальными фасадами, со стороны гостиной оформили зону ТВ и предусмотрели закрытые и открытые секции для хранения. Чтобы разгрузить рабочую поверхность гарнитура, на смежной с ним стене сделали узкую нишу. В нее интегрировали полки и закрытые секции со столешницей, предусмотрев розетки. На столешнице достаточно места, чтобы поставить мелкую бытовую технику и разместить предметы первой необходимости. При первом осмотре комнаты сложно догадаться, где здесь
Оглавление

Оригинальное и функциональное пространство с интересными решениями

Дизайнер Марина Сутырина создала красивый и очень уютный интерьер в трешке 51 кв. м. Давайте посмотрим, как решили вопрос с хранением. Мы собрали 6 классных и неочевидных идей из проекта, которые точно не оставят вас равнодушными. Читайте и вдохновляйтесь на переделки!

Румтур этой квартиры (26 минут)

 📷
📷

1. Мебельный остров

Главной фишкой проекта стал мебельный остров — оригинальная конструкция, которую выстроили для создания круговой планировки. Со стороны кухни в остров встроили технику, со стороны прихожей сделали шкаф с зеркальными фасадами, со стороны гостиной оформили зону ТВ и предусмотрели закрытые и открытые секции для хранения.

 📷
📷

2. Функциональная ниша

Чтобы разгрузить рабочую поверхность гарнитура, на смежной с ним стене сделали узкую нишу. В нее интегрировали полки и закрытые секции со столешницей, предусмотрев розетки. На столешнице достаточно места, чтобы поставить мелкую бытовую технику и разместить предметы первой необходимости.

 📷
📷

3. Скрытый шкаф

При первом осмотре комнаты сложно догадаться, где здесь находится шкаф. А он располагается прямо за диваном, в нише. Шкаф сделали с белыми фасадами и оборудовали внутренней подсветкой, которая включается при открывании дверей. Под шкафом намеренно оставили открытую секцию, чтобы хранить в ней то, что должно быть в легком доступе.

 📷
📷

4. Хранение с секретом

Площадь спальни не позволяла разместить полноценную зону ТВ. Поэтому ее скрыли в... шкафу-купе напротив кровати. За центральной раздвижной дверью предусмотрели розетки и полки — при желании на нее можно поставить небольшой телевизор. Под полкой разместили комод с выдвижными ящиками, а сверху есть полки для хранения подушек или одеял.

 📷
📷

5. Шкаф с зеркальными фасадами

Шкаф в прихожей располагается прямо напротив входа. Чтобы взгляд не упирался в темную стену, фасады шкафа сделали полностью зеркальными. Они расширяют пространство, добавляют глубины и позволяют оценить свой образ при входе/выходе.

 📷
📷

6. Яркие полки

Вся конструкция зоны ТВ оснащена дополнительным хранением. Это выдвижные ящики и открытые полки, которые намеренно выделили красным цветом и оборудовали подсветкой. Таким образом поддержали японские мотивы в интерьере и сделали красивый акцент.

 📷
📷

Сейчас читают: