Добавить в корзинуПозвонить
Найти в Дзене

Проект одноэтажного дома №164

Ростов-на-Дону — это крупный и шумный город, и для некоторых его динамика может быть отвратительна, а для других, наоборот, притягательна. Есть люди, которые не представляют свою жизнь без ритма, скорости и напора городской жизни. Часто ошибочно полагают, что комфорт жизни в собственном доме возможен лишь за городом. Однако в самом центре мегаполиса можно найти участок для постройки своего собственного жилья.
Ваш дом может стать настоящим оазисом среди городского муравейника. Представьте проект №164:
на вашем участке зелёные клумбы, вымощенные камнем дорожки и уютный дом с большими окнами и нежной фисташковой штукатуркой.
За пределами двора уже шумит и бурлит любимый город.
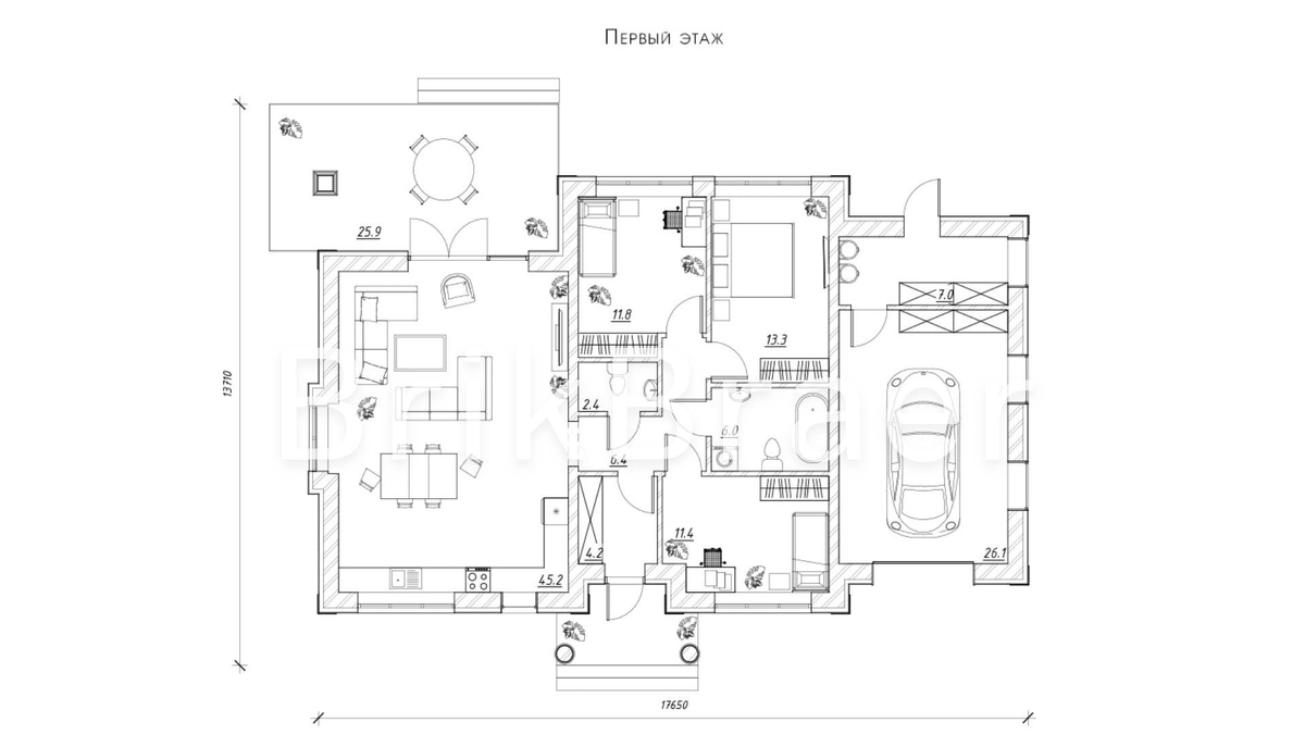
Ни одна квартира не сравнится с 200 кв.м. вашего собственного дома, где есть летняя терраса, просторная кухня-гостиная, три спальни и два санузла, и в котором вы будете чувствовать себя по-настоящему комфортно.
✅ Общая площадь 201 м2 ✅ Размеры 17,7 х 13,8 M ✅ 4 комнат | 3 спальни Получить консультацию или З

Ростов-на-Дону — это крупный и шумный город, и для некоторых его динамика может быть отвратительна, а для других, наоборот, притягательна. Есть люди, которые не представляют свою жизнь без ритма, скорости и напора городской жизни. Часто ошибочно полагают, что комфорт жизни в собственном доме возможен лишь за городом. Однако в самом центре мегаполиса можно найти участок для постройки своего собственного жилья.


Ваш дом может стать настоящим оазисом среди городского муравейника. Представьте проект №164:
на вашем участке зелёные клумбы, вымощенные камнем дорожки и уютный дом с большими окнами и нежной фисташковой штукатуркой.
За пределами двора уже шумит и бурлит любимый город.

-2


Ни одна квартира не сравнится с 200 кв.м. вашего собственного дома, где есть летняя терраса, просторная кухня-гостиная, три спальни и два санузла, и в котором вы будете чувствовать себя по-настоящему комфортно.

-3
-4

✅ Общая площадь 201 м2

✅ Размеры 17,7 х 13,8 M

✅ 4 комнат | 3 спальни

Получить консультацию или ЗАКАЗАТЬ ПРОЕКТ будущего дома можно, оставив заявку на сайте. Наш специалист сам свяжется с Вами и бесплатно проконсультирует по всем интересующим вопросам.

КОНТАКТЫ КОМПАНИИ:

г.Ростов-на-Дону,ул.Филимоновская,92,1 этаж

+7 (863) 309-07-21 | http://brikbraer.ru #строительстводомовростов #строительстводомовмосква #строительстводомовкраснодар