Найти в Дзене
ЭТО ВАШ ИНТЕРЬЕР

Целый час смотрю на эту квартиру и не могу налюбоваться — супруги показали, как здесь живут

В сегодняшней статье мы поговорим о молодой супружеской паре, которая купила свою первую квартиру. Подходящий вариант подвернулся в новом доме, правда без какой-либо отделки (просто "бетонная коробка"). Поэтому им срочно нужно было начинать делать ремонт, чтобы въехать в своё новое жилище. Для этой цели они обратились в архитектурную студию, где им создали стильный и функциональный интерьер, который сразу же пришелся по вкусу заказчикам. На полу в прихожей уложили плитку с геометрическим узором. Стены покрасили в два цвета: основной цвет — серый, а в качестве яркого акцентного выбрали насыщенный терракотовый оттенок (входную дверь тоже покрасили в этот цвет). Справа от входной двери находится большой гардероб для верхней одежды, а напротив него есть дверь, которая ведет в полноценную гардеробную. Что касается отделки, то для стен здесь тоже использовали светлую краску, а на полу уложен ламинат. Справа от входа располагается небольшая зона кухни с угловым гарнитуром. Нижние фасады и
Оглавление

В сегодняшней статье мы поговорим о молодой супружеской паре, которая купила свою первую квартиру. Подходящий вариант подвернулся в новом доме, правда без какой-либо отделки (просто "бетонная коробка"). Поэтому им срочно нужно было начинать делать ремонт, чтобы въехать в своё новое жилище.

Для этой цели они обратились в архитектурную студию, где им создали стильный и функциональный интерьер, который сразу же пришелся по вкусу заказчикам.

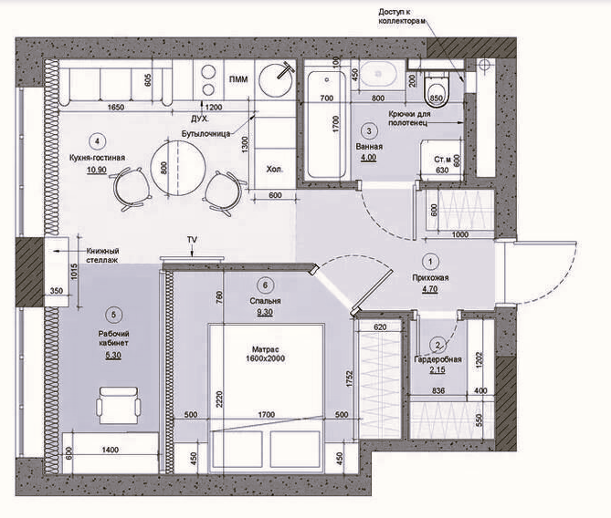
Проект

  • Местоположение: г. Москва
  • Площадь квартиры: 38 квадратных метров
  • Владельцы: молодая семейная пара
  • Срок ремонта: 2 месяца и неделя

Прихожая

На полу в прихожей уложили плитку с геометрическим узором. Стены покрасили в два цвета: основной цвет — серый, а в качестве яркого акцентного выбрали насыщенный терракотовый оттенок (входную дверь тоже покрасили в этот цвет).

-2

Справа от входной двери находится большой гардероб для верхней одежды, а напротив него есть дверь, которая ведет в полноценную гардеробную.

-3

Кухня-гостиная

Что касается отделки, то для стен здесь тоже использовали светлую краску, а на полу уложен ламинат. Справа от входа располагается небольшая зона кухни с угловым гарнитуром. Нижние фасады и фасады встроенного холодильника выполнены в сложном зеленом оттенке, а для верхних шкафов выбрали фасады "под дерево". Фартук облицован белой фактурной плиткой.

-4

Слева от гарнитура поставили компактный диванчик в терракотовым цвете. Это диван так же можно использовать, как дополнительное спальное место, если вдруг гости захотят остаться на ночь.

В центре пространства организовали столовую группу со стильной мебелью. Одним из пожеланий заказчиков была установка узкого пианино, вместо ТВ-группы, так как супруги вообще не смотрят телевизор и он им здесь ни к чему.

Из кухни гостиной мы попадаем в небольшое творческое пространство, где хозяйка квартиры работает и занимается творчеством. Эту зону решили выделить цветом и покрасили стены в приглушенный зеленый оттенок.

Спальня

Стены в спальне оклеили испанскими обоями. Одну стену сделали стеклянной, чтобы в комнату попадал естественный свет (плюс эти окошки можно открыть для проветривания). В центре располагается двуспальная кровать с мягким изголовьем горчичного оттенка.

-8

Слева от неё установлен встроенный шкаф для одежды. Вход в спальню сделали под углом, чтобы зрительно смягчить восприятие интерьера и для того чтобы в прихожую попадало больше естественного света.

Ванная комната

Благодаря грамотной работе архитектора, здесь удалось расположить всё необходимое: полноценную ванну, раковину с тумбой, зеркало, инсталляцию, места для хранения и постирочную зону со стиральной и сушильной машинками.

Что касается отделки, то здесь использовали три вида плитки и водостойкую краску.

Хочу порекомендовать вот эти мои статьи про ремонт, который точно вам понравятся:

Если вам понравилась статья, то не забудьте поставить лайк и подписаться, чтобы не пропустить новый материал!

Так же пишите в комментариях, что вам понравилось в этом проекте, а что вызывает сомнения.