Найти в Дзене
ЭТО ВАШ ИНТЕРЬЕР

Квартира мечты! — супруги показали, как своими силами преобразили «убитую» коммуналку в старом фонде (Сравните до и после)

Наши сегодняшние герои очень активная семейная пара. Дмитрий работает разработчиком компьютерных игр, а его жена Анна является профессиональным архитектором и дизайнером. Их квартира находится в доме, который был построен еще в 1917 году. Раньше это была типичная "коммуналка", которая со временем меняла свой облик в соответствии с нуждами каждого нового хозяина. В ней сносили и возводили стены, объединяли комнаты, делали дверные проёмы в стенах и всё в таком духе. Из-за плохого состояния квартиры потребовались капитальные ремонтные работы: необходимо было заменить все стены, полы и потолки, а также обеспечить шумоизоляцию и теплоизоляцию. Так как прихожая является "грязной" зоной, пол здесь оформили белой плиткой с геометрическим узором. Стены решили оставить в кирпиче и покрасили их в белый цвет, чтобы пространство стало визуально больше и светлее. Напротив входа располагается открытая система хранения. Так же здесь есть комод, зеркало и стульчик, чтобы удобней было обуваться. В кор
Оглавление

Наши сегодняшние герои очень активная семейная пара. Дмитрий работает разработчиком компьютерных игр, а его жена Анна является профессиональным архитектором и дизайнером. Их квартира находится в доме, который был построен еще в 1917 году.

Раньше это была типичная "коммуналка", которая со временем меняла свой облик в соответствии с нуждами каждого нового хозяина. В ней сносили и возводили стены, объединяли комнаты, делали дверные проёмы в стенах и всё в таком духе.

Из-за плохого состояния квартиры потребовались капитальные ремонтные работы: необходимо было заменить все стены, полы и потолки, а также обеспечить шумоизоляцию и теплоизоляцию.

Проект

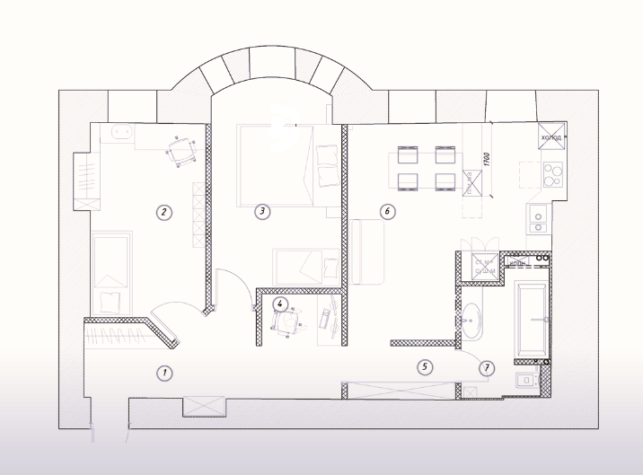
  • Местоположение: г. Санкт-Петербург
  • Площадь квартиры: 68 квадратных метров
  • Владельцы: супруги с ребенком
  • Бюджет: 2 000 000 рублей
-2

Прихожая и коридор

Так как прихожая является "грязной" зоной, пол здесь оформили белой плиткой с геометрическим узором. Стены решили оставить в кирпиче и покрасили их в белый цвет, чтобы пространство стало визуально больше и светлее. Напротив входа располагается открытая система хранения. Так же здесь есть комод, зеркало и стульчик, чтобы удобней было обуваться.

В коридоре отделка полностью другая: здесь для пола выбрали ламинат, а стены решили оклеить акцентными обоями с изображением различных животных.

-4

Так как муж героини частенько работает на дому, здесь было решено организовать компактный кабинет (здесь даже предусмотрена принудительная вентиляция). Место над кабинетом тоже несет свой функционал: там организовали места для хранения сезонного инвентаря (лыжи, велосипеды и тд).

Кухня-столовая

Кухню и комнату было решено объединить в одно просторное помещение. В качестве акцента здесь выступают кирпичные стены, которые решили оставить в первозданном виде (их почистили и покрыли лаком). В кухонной зоне установили линейный гарнитур нестандартной формы. Так же решили соорудить антресольные секции, чтобы увеличить места для хранения.

Что касается цвета, то верхние шкафы выполнены в приятном молочном оттенке, а нижние выполнены в зеленом цвете. Возле рабочей зоны пол оформлен серой плиткой. Напротив гарнитура установили большой кухонный "остров", в торце которого даже есть посудомоечная машинка.

К этому "острову" примыкает обеденный стол. Так же в кухне есть хозяйственный шкаф, где находятся сушильная и стиральная машинки.

Благодаря большой площади пространства, здесь удалось разместить небольшую зону гостиной с диваном и телевизором.

Спальня

Стены в хозяйской спальне оклеили обоями под покраску и покрасили в светлый оттенок. В центре комнаты разместили двуспальную кровать, а рядом временно находится детская кровать, пока сын еще маленький.

Детская

В этой комнате будет полноценная детская, но пока что эту комнату оборудовали и используют как игровую.

Ванная комната

Санузел и ванную объединили в одно помещение. На полу использовали узорчатую плитку, а стены оформили крупноформатным керамогранитом. Жалюзийные двери скрывают за собой газовую колонку, коммуникации и счетчики.

Если вам понравилась статья, то не забудьте поставить лайк и подписаться, чтобы не пропустить новый материал!

Так же пишите в комментариях, что вам понравилось в этом проекте, а что вызывает сомнения.