Добавить в корзинуПозвонить
Найти в Дзене
Строим с ЭДом

ПРОЕКТ FH-150 SIMETRICA (150М²)

Как показывает практика, одноэтажные дома площадью до 150 м2 на рынке недвижимости обладают наибольшей ликвидностью, поэтому и проекты таких домов только набирают популярность. Связано это не только с эксплуатационным удобством одноуровневого жилья, когда не надо много раз в день бегать по лестницам, но и с финансовой обстановкой в стране - с практически неконтролируемым ростом цен на строительные и отделочные материалы на фоне снижающихся доходов. К тому же строительство и эксплуатация дома с одним этажом более безопасно, а обслуживание намного проще и дешевле. Для вполне удобного проживания 4-5 человек можно распланировать и площадь 115 м2, но на 150 м2, как в проекте SIMETRICA, комфорта больше. Спальни здесь имеют размеры не по 11-12, а по 13-15 м2, предусмотрено больше санузлов, имеется встроенная терраса под общей с домом крышей, на которую можно выйти как из гостиной, так и из двух спален. Особенностью плана дома является строгая симметрия, при которой входная дверь, холл и гости

Как показывает практика, одноэтажные дома площадью до 150 м2 на рынке недвижимости обладают наибольшей ликвидностью, поэтому и проекты таких домов только набирают популярность. Связано это не только с эксплуатационным удобством одноуровневого жилья, когда не надо много раз в день бегать по лестницам, но и с финансовой обстановкой в стране - с практически неконтролируемым ростом цен на строительные и отделочные материалы на фоне снижающихся доходов. К тому же строительство и эксплуатация дома с одним этажом более безопасно, а обслуживание намного проще и дешевле.

Для вполне удобного проживания 4-5 человек можно распланировать и площадь 115 м2, но на 150 м2, как в проекте SIMETRICA, комфорта больше. Спальни здесь имеют размеры не по 11-12, а по 13-15 м2, предусмотрено больше санузлов, имеется встроенная терраса под общей с домом крышей, на которую можно выйти как из гостиной, так и из двух спален. Особенностью плана дома является строгая симметрия, при которой входная дверь, холл и гостиная с террасой находятся посередине, а помещения входной группы и два жилых блока, состоящих из двух спален, общего для них санузла и кридорчика, по бокам.

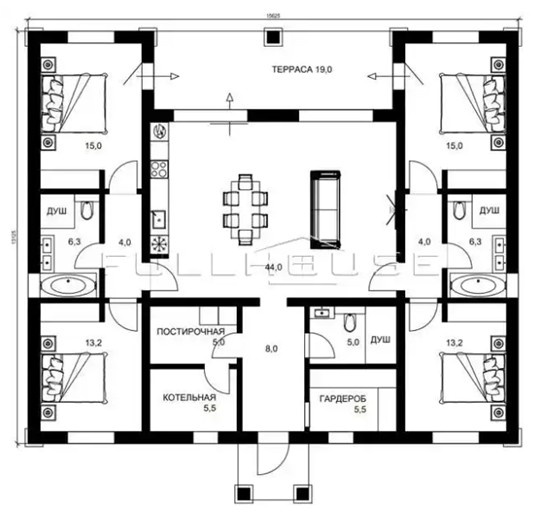
Вот как выглядит экспликация помещений этого дома (терраса 19,0 м2 в общую площадь не входит):

  1. холл 8,0 м2;
  2. гардеробная 5,5 м2;
  3. гостевой санузел 5,0 м2;
  4. котельная/постирочная 5,05/5,5 м2;
  5. гостиная-столовая-кухня – 44,0 м2;
  6. 2 спальни по 15,0 м2;
  7. 2 санузла по 6,3 м2;
  8. 2 коридора по 4,0 м2.
План дома SIMETRICA
План дома SIMETRICA

Внешне дом спроектирован в стиле альпийского шале, что подчёркивается характерными для него архитектурными элементами и приёмами отделки:

  • пологая двухскатная крыша с выносными балками и метровыми свесами;
  • комбинированная отделка из белой штукатурки с имитирующими дерево панелями;
  • облицовка из камня, с помощью которой делаются акценты на цоколе, контрфорсах и поддерживающих крыльцо колоннах.

Простую прямоугольную форму дома можно разнообразить с помощью модульных пристроек, разработанных в рамках отдельного проекта Unit. В нём на выбор предлагается два типоразмера хозблоков, автонавес на две машины, крыльцо с плоской крышей, которое можно остеклить, и терраса.

Фасад одноэтажного шале с пристройками и без
Фасад одноэтажного шале с пристройками и без
Так как крыльцо и терраса для дома SIMETRICA предусмотрены основным проектом и являются его неотъемлемой частью, присоединить в качестве модуля можно только хозблок и автомобильный навес. Выполняются пристройки в едином стиле с домом, они повышают функциональность жилья, увеличивают масштаб экстерьера и улучшают его внешний вид.

Для рационального расходования строительных материалов, длина стен и ширина проёмов дома определены с учётом кратности их размерам (растра). В наибольшем объёме используется стеновой материал – в данном случае, газоблок длиной 625 или 600 мм. Так, в кладочный ряд длиной 15625 мм помещается 25 или 26 блоков, а в пролёте 13125 мм можно уложить 21 или 22 штуки соответственно.

Лишнего раскроя не требуется – только нарезаются половинки, необходимые для перевязки вертикальных швов. Арматура для сборки каркаса плитного фундамента режется лишь на три или четыре части, с помощью которых 11,7-метровые стержни наращиваются до нужной длины. Так что и здесь никакого металлического неликвида не образуется.

Экономить бюджет помогают и некоторые другие решения проекта. Таковым является расположение котельной близко к входной двери, но без отдельного входа, для которого нужно было бы расширять крыльцо и устанавливать дополнительную утеплённую дверь. Очень выгодно и объединение гостиной со столовой и кухней в единое пространство, так как отсутствие лишних перегородок, порталов или дверей и визуально, и фактически увеличивает полезную площадь.

Варианты современного дизайна для интерьеров дома
Варианты современного дизайна для интерьеров дома

Гостевая зона примыкает только к одной наружной стене, в которой предусмотрено два панорамных световых проёма: один заполняется фасадным остеклением наглухо, а во второй устанавливается раздвижная система Patio для выхода на террасу. Чтобы иметь в гостевой зоне дополнительный источник дневного света со стороны холла, входную дверь можно установить если не стеклянную полностью, то со светопрозрачными элементами сверху и по бокам.

Между холлом и гостиной дверь не предусмотрена, но возможность для её установки, если того пожелает заказчик, существует. Холл имеет комфортную ширину 2,0 м, что позволяет одновременно находиться в нём нескольким человекам. К переднему помещению примыкает довольно просторная гардеробная комната с окном, в которой можно держать не только верхнюю одежду, но и обустроить полноценную систему хранения для самых разных вещей.

Кроме того, в каждой комнате предусмотрены ниши глубиной 70 см, в которые очень удобно встраивать шкафы. Системы хранения можно также обустроить в котельной или постирочной – а если есть необходимость, то и в обоих помещениях. Если стиральную и сушильную машину расположить через специальный переходник в колонне друг над другом, останется немало места не только для бельевых корзин, но и для обычной сушилки, гладильной доски с утюгом.

Организация постирочной
Организация постирочной
В котельной обычно остаётся свободное место, в котором можно не только установить стеллаж под хозяйственный инвентарь и предметы сезонного пользования (санки, велосипеды, чемоданы), но и техническую раковину, где можно помыть тряпки, вёдра или любимого питомца. Возможность установки такой раковины есть и в постирочной - застройщик сам решает, что ему удобнее.

Самым эффектным помещением в доме является гостиная-столовая. В данном случае над ней в перекрытии сделана выемка, дающая доступ дневному свету, льющемуся из остеклённого фронтона. Оформить общее пространство желательно в том же стиле, что и фасад (шале), что только подчеркнёт общую гармонию жилища.

Терраса в стиле шале
Терраса в стиле шале

Изюминкой данной стилистики является то, что в интерьере задействуются элементы конструкционной части крыши. Стропила и балки, хоть нарочито состаренные, хоть отшлифованные до гладкости, на фоне красивой отделки под дикий или благородный камень, создадут нужное настроение. Интерьер можно также отделать в стиле лофт, кантри, современный модерн.

Кухня в проекте является частью большого общесемейного помещения, и структурирована по однолинейной схеме (иного не позволяет конфигурация зала). Она представляет собой линию длиной 4,2 м, по краям ограниченную высокими пеналами шириной 60 см, между которыми располагаются 5 отделений разного назначения и такой же ширины, объединённых общей столешницей.

Вариант устройства однолинейной кухни
Вариант устройства однолинейной кухни

Какая бы схема организации кухонного оборудования не использовалась, в ней, в соответствии с логикой перемещения, последовательно выделяют функциональные зоны:

  • хранение продуктов и посуды (холодильная техника, шкаф-пенал);
  • мойка с раковиной и ёмкостью для мусора;
  • подготовка продуктов (свободная часть столешницы);
  • приготовление пищи (варочная панель, духовка, микроволновка);
  • место хранения мелкой бытовой техники (электрочайник, тостер, кофеварка).

В спальнях, в отличие от гостиной, большие пространства не нужны. Эти комнаты предназначены для сна и должны обеспечивать физический и психологический отдых - а для него человек подсознательно ищет небольшое уютное местечко. В комнатах с площадью 13-15 м размещается всё, что нужно: кровати любого (стандартного) размера с прикроватными тумбами или комодом, гардероб, кресло, макияжный или письменный стол.

Стеновым материалом является теплоэффективный автоклавный газобетон плотностью 500 кг/м3, но в качестве альтернативы заказчик может выбрать и тёплую керамику. При плотности 580-730 кг/м3 керамоблок имеет такой же коэффициент теплопроводности (0,12 Вт/м*С), что в условиях климата Московской области позволяет возводить стены толщиной 380 мм (1,5 кирпича) без наружного утепления.

Использовать обычный кирпич тоже можно, но тогда или стены надо делать толще, или фасад же придётся утеплять. И то, и другое потребует больших затрат

Тепловая эффективность облегчённых каменных материалов заключается в высоком проценте воздухонаполнения, ведь воздух является эталонным утеплителем. Чтобы этого достичь, у газобетона плотность снижается поризацией, а у тёплой керамики ещё и предусмотрены пустоты в теле блока. По сравнению с полнотелым плотным цементным, известковым или глиняным камнем, у газо- и керамоблоков более низкая прочность.

Возведение газоблочных стен на плитном фундаменте
Возведение газоблочных стен на плитном фундаменте

Прочность на смятие (сжатие) суперлёгких блоков регулируется нормами, а изгибающих нагрузок, возникающих в процессе усадки дома или сезонных подвижек грунта, такая кладка не любит. Компенсировать этот недостаток можно только с помощью правильно устроенного жёсткого фундамента, и лучшим вариантом для наших широт и большинства участков, является оснащённая ростверком поверхностная монолитная плита.

Ростверк выполняет функции цоколя, а сама плита является черновым полом - так что в масштабах всей сметы такой фундамент наиболее выгоден, несмотря на высокую материалоёмкость. По окончании строительства поверх плиты устраивается пирог водяного тёплого пола, который, благодаря экономичности и отменной эффективности, отлично заменяет портящее интерьеры радиаторное отопление.