Добавить в корзинуПозвонить
Найти в Дзене

Терраса на сваях с настилом из ДПК

Смонтировали сваи, собрали металлический каркас и сделали настил из древесно-полимерного композита для заказчика в Красногорске. Показываем фото процесса и результат. Фундамент для террасы — 14 винтовых свай диаметром 76 мм и длиной 2 м. Работу начали с разметки поля и монтажа свай с использованием переносной машинки. Затем сваи подрезали в уровень, заполнили стволы цементно-песчаной смесью, приварили оголовки. Затем приступили к работе над каркасом. К цоколю дома закрепили уголок сечением 50 × 50 мм, на сваи уложили профильную трубу сечением 80 × 80 мм в качестве обвязки. Затем на обвязку и уголок — профильную трубу сечением 60 × 30 мм в качестве лаг. В конце зачистили и покрасили все сварные соединения. Схемы монтажа обвязки и лаг мы приводили в первой статье про этот объект. На этом объекте мы выполняли работу совместно с нашими партнерами по «КЗС Групп» — компанией «Комплексное загородное строительство». Они взяли на себя укладку древесно-полимерного композита. Ниже представлена сх

Смонтировали сваи, собрали металлический каркас и сделали настил из древесно-полимерного композита для заказчика в Красногорске. Показываем фото процесса и результат.

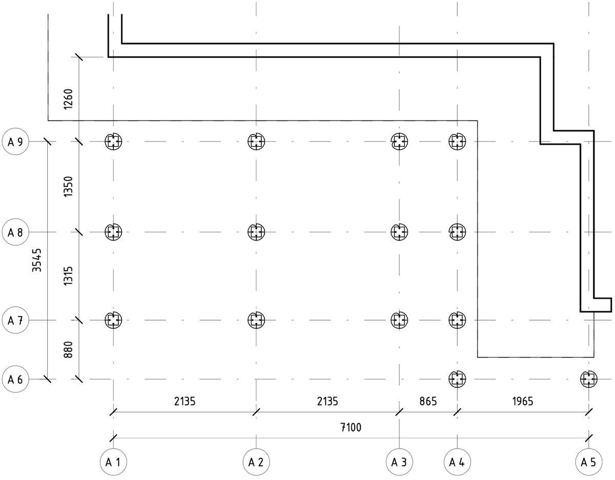
Фундамент для террасы — 14 винтовых свай диаметром 76 мм и длиной 2 м. Работу начали с разметки поля и монтажа свай с использованием переносной машинки. Затем сваи подрезали в уровень, заполнили стволы цементно-песчаной смесью, приварили оголовки.

Схема расположения свай
Схема расположения свай

Затем приступили к работе над каркасом. К цоколю дома закрепили уголок сечением 50 × 50 мм, на сваи уложили профильную трубу сечением 80 × 80 мм в качестве обвязки. Затем на обвязку и уголок — профильную трубу сечением 60 × 30 мм в качестве лаг. В конце зачистили и покрасили все сварные соединения. Схемы монтажа обвязки и лаг мы приводили в первой статье про этот объект.

Готовое основание под настил
Готовое основание под настил

На этом объекте мы выполняли работу совместно с нашими партнерами по «КЗС Групп» — компанией «Комплексное загородное строительство». Они взяли на себя укладку древесно-полимерного композита. Ниже представлена схема раскладки ДПК.

Схема раскладки
Схема раскладки

Вот такая получилась открытая терраса. Заказчик планирует выполнить подсыпку грунта, а в будущем он, возможно, установит над террасой выдвижную перголу. Правила жилого комплекса запрещают сделать над этой террасой капитальный навес.

-4

Рассчитать стоимость строительства террасы или веранды: kzs-stroy.ru.

По вопросам покупки свай или возведения свайного фундамента: kzs.ru.


Похожие проекты