Добавить в корзинуПозвонить
Найти в Дзене

Проект одноэтажного дома №159

Избавление от тесноты: жизнь в собственном доме Устали от тесноты квартиры? Частный дом – это простор для реализации ваших давних мечт! В доме по проекту №159 у вас будет все необходимое для комфортной и просторной жизни. - Большая гостиная: просторная гостиная легко вместит огромный мягкий диван и телевизор с широкой диагональю. После захватывающего фильма можно выйти на террасу, чтобы насладиться свежим воздухом и видом на ухоженный дворик . - Три спальни: одна из спален имеет доступ к дополнительной комнате, которую можно переоборудовать под уютный кабинет или вместительную гардеробную – в зависимости от ваших предпочтений - Большой санузел и отдельная кухня: просторный санузел и функциональная кухня обеспечат комфорт всей семье. Также в доме предусмотрено техническое помещение для хранения и бытовых нужд. - Современная плоская кровля и колонны: эстетичный экстерьер дома включает современную плоскую кровлю и элегантные колонны, создающие впечатление легкости и элегантности - Приятн
Оглавление

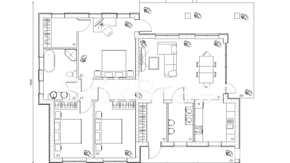
Избавление от тесноты: жизнь в собственном доме

Устали от тесноты квартиры? Частный дом – это простор для реализации ваших давних мечт! В доме по проекту №159 у вас будет все необходимое для комфортной и просторной жизни.

Возможности для воплощения ваших мечтаний:

- Большая гостиная: просторная гостиная легко вместит огромный мягкий диван и телевизор с широкой диагональю. После захватывающего фильма можно выйти на террасу, чтобы насладиться свежим воздухом и видом на ухоженный дворик .

- Три спальни: одна из спален имеет доступ к дополнительной комнате, которую можно переоборудовать под уютный кабинет или вместительную гардеробную – в зависимости от ваших предпочтений

- Большой санузел и отдельная кухня: просторный санузел и функциональная кухня обеспечат комфорт всей семье. Также в доме предусмотрено техническое помещение для хранения и бытовых нужд.

-2

Внешний вид дома:

-3

- Современная плоская кровля и колонны: эстетичный экстерьер дома включает современную плоскую кровлю и элегантные колонны, создающие впечатление легкости и элегантности

- Приятное сочетание белой штукатурки и светлого дерева: такой дизайн придает дому современный и стильный вид, который понравится многим .

-4

✅ Общая площадь 180 м2

✅ Размеры 15,3 х 12 M

✅ 4 комнат | 3 спальни

Получить консультацию или ЗАКАЗАТЬ ПРОЕКТ будущего дома можно, оставив заявку на сайте. Наш специалист сам свяжется с Вами и бесплатно проконсультирует по всем интересующим вопросам.

КОНТАКТЫ КОМПАНИИ:

г.Ростов-на-Дону,ул.Филимоновская,92,1 этаж

+7 (863) 309-07-21 | http://brikbraer.ru #строительстводомовростов #строительстводомовмосква #строительстводомовкраснодар