Найти в Дзене

Предположения о происхождении термина «клапан»

Мы обратили внимание на такой интересный факт: ГОСТ 24856-2014 не рекомендует применять термин «вентиль» и заменять им слово «клапан». Об этом говорится в монографии «Трубопроводная арматура в истории науки и техники», написанной кандидатом технических наук О. Н. Шпаковым в соавторстве с С. А. Фединым. Автор — инженер-механик и технический эксперт российской НПАА (Научно-промышленная ассоциация арматуростроителей). В своих исследованиях он обнаружил, что в отношении рассматриваемой запорной арматуры немецкие инженеры применяют слово ventil («вентиль»), а не klappen, похожее по транскрипции на русское «клапан» и в переводе означающее «хлопать», «стучать».
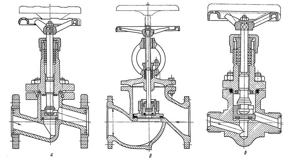
В отечественной индустрии, по регламенту ГОСТа, применяется термин «клапан», что по заключению лингвистов неверно. Если обратиться к разделу 4 «Типы арматуры» п. 4.2 ГОСТ 24856-2014, там в описании номенклатуры указано: «клапан (Нрк. вентиль)». Затем следует описание конструкции, представляющей собой разновидность запорно-регулирующей
Клапан или Вентиль?
Клапан или Вентиль?

Мы обратили внимание на такой интересный факт: ГОСТ 24856-2014 не рекомендует применять термин «вентиль» и заменять им слово «клапан». Об этом говорится в монографии «Трубопроводная арматура в истории науки и техники», написанной кандидатом технических наук О. Н. Шпаковым в соавторстве с С. А. Фединым. Автор — инженер-механик и технический эксперт российской НПАА (Научно-промышленная ассоциация арматуростроителей). В своих исследованиях он обнаружил, что в отношении рассматриваемой запорной арматуры немецкие инженеры применяют слово ventil («вентиль»), а не klappen, похожее по транскрипции на русское «клапан» и в переводе означающее «хлопать», «стучать».

В отечественной индустрии, по регламенту ГОСТа, применяется термин «клапан», что по заключению лингвистов неверно. Если обратиться к разделу 4 «Типы арматуры» п. 4.2 ГОСТ 24856-2014, там в описании номенклатуры указано: «клапан (Нрк. вентиль)». Затем следует описание конструкции, представляющей собой разновидность запорно-регулирующей аппаратуры с регулирующим органом с параллельным перемещением относительно оси движения транспортируемой среды.
Обращаясь к алгоритму словообразования в языке, на котором разговаривают в Германии, Австрии и Швейцарии, можно заметить, что обозначая разные типы клапанов, немцы предлагают термины, оканчивающиеся на «…ventil»:

  • обратный — rückschlagventil;
  • запорный — absperrventil;
  • предохранительный — sicherheitsventil;
  • шаровой — kugelventil.
Вентили
Вентили
Значит, термин взят не из немецких слов? Но немцы называют заслонку, дверцу, створку или крышку так — klappe. А эти понятия уже ближе к запорной арматуре. Если забыть о глаголе klappen и взглянуть на существительное klappe, то все встает на свои места, и в русской лексике «клаппе» по праву стало клапаном. Но достойных аргументов к такому предположению никто не представил.


Если вообразить, что термин пришел не из языка Гёте и Шиллера, и из любого иного? Еще раз обратимся к уже упомянутому нами труду О. Н. Шпакова. Там рассказывается, как осенью 1823 года (а именно в ноябре) было запатентовано изобретение клапана. Правообладателем стал британец Айзек (Исаак) Тейлор, старший сын известного в Англии художника Исаака Тейлора из Онгара. А спустя семь лет патент получили Алекс и Георг Стокеры, но произошло событие уже в Германии.
Отсюда делаем вывод, что этимология слова «клапан» связана или с английским, или с немецким термином. Но вот в чем загвоздка: англичане называют такой запорный механизм valve или flap, и лингвисты, изучающие происхождение слов, не могут согласовать происхождение русского термина с английскими. Остается остановиться на варианте klappe как наиболее близком и по произношению, и по назначению.