Найти в Дзене
Petrovy.Life

Дом своими руками. Как мы построили дом из газобетона за 7 месяцев.

Идея построить дом своими руками пришла неожиданно, всего то подтолкнули на это % ставка по ипотеке, высокие сметы от компаний, рождение 3 ребёнка и уверенность в "а че там строить то". С последним пунктом мы погорячились, но если бы знали что есть что строить и как это тяжело так и жили бы без домика. Нашли много видео самостройщиков и загорелись идеей построить свое гнездышко. К делу подошли ответственно. Много изучали, читали и прикидывали примерную смету, кстати на последнем этапе дом из 150 м2 превратился в 120м2. Реально оценить свои финансовые возможности-это пол дела. Дальше продали квартиру, собрали финансовую подушку, муж ушёл в отпуск по уходу за ребёнком, позвали друга и начали строить. Муж и Женька (друг) строили каждый день, почти без выходных. Работали много в основном по 10-12 часов. У нас на руках был проект, конструктивный раздел и мы строили строго по нему. На разных этапах возникало много вопросов. Строили все в первый раз в жизни и иногда трудно было с

Идея построить дом своими руками пришла неожиданно, всего то подтолкнули на это % ставка по ипотеке, высокие сметы от компаний, рождение 3 ребёнка и уверенность в "а че там строить то". С последним пунктом мы погорячились, но если бы знали что есть что строить и как это тяжело так и жили бы без домика.

Нашли много видео самостройщиков и загорелись идеей построить свое гнездышко. К делу подошли ответственно. Много изучали, читали и прикидывали примерную смету, кстати на последнем этапе дом из 150 м2 превратился в 120м2. Реально оценить свои финансовые возможности-это пол дела.

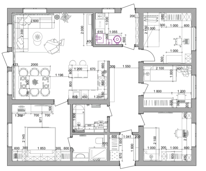
Будущая планировка домика.
Будущая планировка домика.

Дальше продали квартиру, собрали финансовую подушку, муж ушёл в отпуск по уходу за ребёнком, позвали друга и начали строить.

Муж и Женька (друг) строили каждый день, почти без выходных. Работали много в основном по 10-12 часов. У нас на руках был проект, конструктивный раздел и мы строили строго по нему.

На разных этапах возникало много вопросов. Строили все в первый раз в жизни и иногда трудно было сориентироваться и понять алгоритм действий. Но все опытным путем решалось, мальчики похудели и поседели пока набивали шишки )

-2

Изначально мы думали что к июлю у нас будет фундамент и мы начнём кладку несущих стен. Но фундамент был залит только 25 июля, казалось что о коробке в этом году можно и не мечтать. Все очень устали физически и морально. Пока бетон набирал прочность мы отдыхали.

10 августа у нас появился первый ряд несущих стен. Дальше открылось 2е дыхание, ведь каждое действие, каждый блок уже был осязаем. Наш дом начал расти.

Это очень важный момент. Ведь до этого за 3 месяца было проделано оооочень много работы, её, вроде, видно, но для поддержания боевого духа, порой, не хватает.

В середине сентября стены были готовы. Дальше вязка арматуры, опалубка, подготовка пола (заливали в один день) и к концу сентября стены, армопояс, плита пола готовы.

На этом этапе друг уезжает и муж продолжает стройку один. Чтобы точно встать под крышу в этом году, решаем фронтоны делать из дерева.

К 15 октября крыша готова (помогал сосед делать). Фронтоны, окна, двери, отливы, отмостка (рабочая, но не залили её, укрыли плантером до 25 года), дренаж - все готово к концу ноября и встрече холодов.

Муж выходит на работу и до весны мы будем потихоньку возводить перегородки межкомнатные, утеплять крышу, разводить инженерию.

Сколько нам обошлась коробка дома можно прочитать здесь

Подведём итоги:

1. Построить самим можно, но надо готовиться что будут трудности и демовативация местами. Поддержка друг друга и вера в лучшее - ваши друзья.

2. Работать придётся много.

3. Невидимых расходов много, которые не вошли в предварительную смету, это инструменты, гвозди мешками, разные помогаторы и расходники.

4. Строить по проекту лучше, удобнее, понятнее, надёжней.

5. Не строить сильных ожиданий по срокам. Мы начали в мае, но потом долбанули жуткие ливни и холода, которые скорректировали нашу работу.

6. Заранее важно продумать планировку дома и его расположение на участке с прицелом на будущие постройки. Мы много спорили, но теперь я не очень понимаю куда воткнуть гараж чтоб и удобно, и красиво.

7. Планировку участка сделать заранее.

Мы купили землю летом 23 года и хотела сразу его разравнять. Соседи нас отговорили, а во время стройки мы пожалели. Тк было бы проще работать с правильным участком.

8. Сколько бы вы не читали о каких либо этапах, если делаете в первый раз, будут ошибки.

Первое пластиковое окно муж устанавливал пол дня и переделал потом, а когда понял принцип действия 3 окна за это же время.

9 пункт девочкам.

Верьте в лучший исход и начинайте выбирать обои - это мотивирует женщину подгонять мужчину )))

Делаем заезд на участок. Май 2024
Делаем заезд на участок. Май 2024

Подключаемся к воде. У нас в снт центральная магистраль. Май 2024
Подключаемся к воде. У нас в снт центральная магистраль. Май 2024

Готовим все под сваи. Июнь-июль 2024
Готовим все под сваи. Июнь-июль 2024

В гараже гнули арматуру для фундамента
В гараже гнули арматуру для фундамента

Готовимся к заливке ростверка
Готовимся к заливке ростверка

-8

25 июля 2024 год
25 июля 2024 год

Август 2024
Август 2024

Обратная засыпка песком
Обратная засыпка песком

Утеплили фундамент и выложили 1 ряд блоков. 10 августа 2024
Утеплили фундамент и выложили 1 ряд блоков. 10 августа 2024

Домик растёт, делаем сразу отмостку и возводим стены.
Домик растёт, делаем сразу отмостку и возводим стены.

Все делали строго по проекту
Все делали строго по проекту

Строили для себя, на совесть.
Строили для себя, на совесть.

-16

Залили черновой пол и армопояс
Залили черновой пол и армопояс

Собираем крышу
Собираем крышу

Устанавливаем окна и двери
Устанавливаем окна и двери

Коробка полностью закрыта. Дальше начинаем внутренние работы.
Коробка полностью закрыта. Дальше начинаем внутренние работы.