Найти в Дзене
ДОМОСБОР

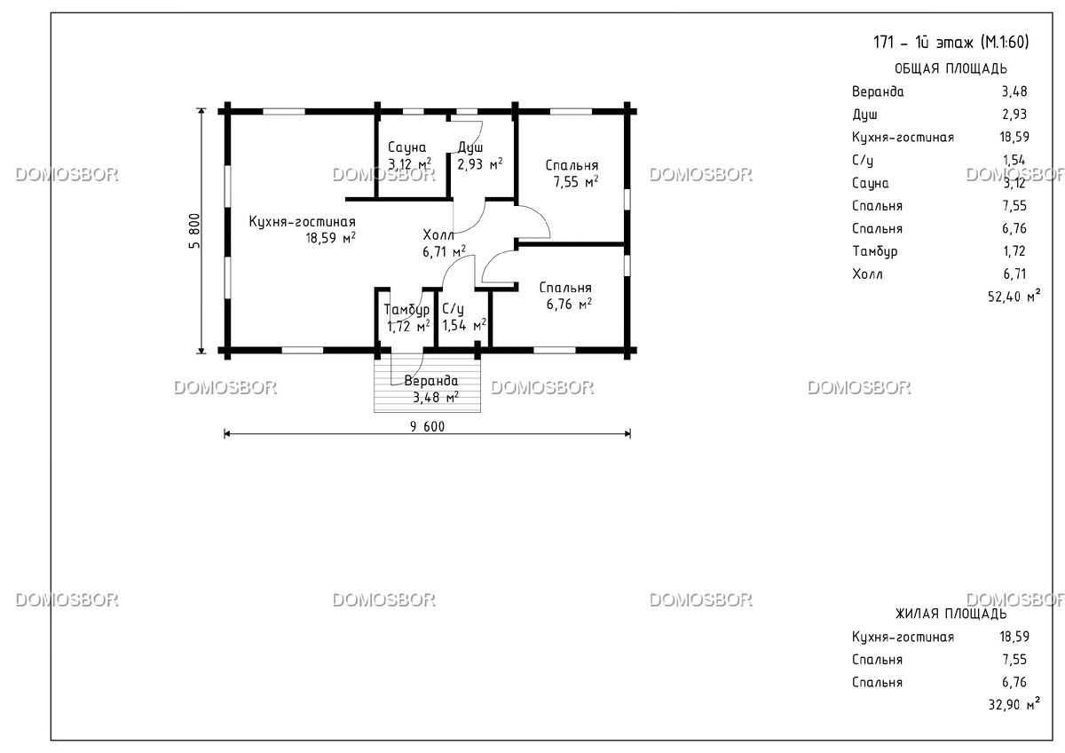
Дом, где все в кайф. Проект дома из клееного бруса КВ 171 (Общая площадь: 53 м2)

Переезд в загородный дом открывает перед вами простор и свободу, недоступные в городской квартире. Проект дома из клееного бруса KB 171 идеально подходит для тех, кто стремится к удобству и стилю на природе.

Проект дома KB 171 из клееного бруса сочетает современный дизайн и функциональность. Общая площадь дома составляет 53 м2, из которых 33 м2 — жилая площадь. Дом выполнен в скандинавском стиле, прямоугольной формы с двускатной крышей. Внутреннее пространство включает три комнаты, два санузла, сауну, тамбур и веранду. Просторная кухня-гостиная площадью 19 м2 создаёт атмосферу уюта и удобства для всей семьи, делая этот дом идеальным для загородной жизни.

О технологии. Клееный, профилированный брус – материал, который производится из древесины по особой технологии. Доски принудительно сушат до достижения 12% влажности, калибруют, извлекают явный брак, сортируют, а затем не имеющие дефектов доски склеивают между собой и профилируют в необходимый профиль. Именно благодаря этой технологии производства дома получают определенные преимущества перед аналогами из других видов древесных стройматериалов. Отметим:

  • клееный брус многокомпонентный, поэтому домам свойственна минимальная деформация и усадка;
  • быструю возводимость строениям и безупречность монтажа бруса обеспечивает специальная система шип-паз;
  • привлекательный внешний вид дом имеет за счет гладкой прострожки поверхности стен;
  • после возведения дома из бруса можно сразу приступать к отделочным работам, не ожидая усадки;
  • практически отсутствуют риски возникновения мостиков холода, поскольку исключены сквозные щели (если треснет одна из досок, следующая останется целой, что повышает теплотехнические качества строения).

Многих смущает клей в составе бруса, но дело в том, что для материала жилых домов используются согласно ГОСТ 33122-2014 только безопасные составы — FC0. Для подсобных помещений, гаражей и пр. допустимо применять брус с клеем FC1. В качестве недостатка называют также низкие теплоизоляционные качества бруса, но дело в том, что это свойственно любому древесному материалу. Исключение – дом, выстроенный по каркасной технологии, но назвать такое строение полностью деревянным нельзя.

-2

Характеристики:

— Общая площадь: 53 м2

— Жилая площадь: 33 м2

— Площадь кухни-гостиной: 19м2

— Технология: Клееный брус

— Пятно застройки в м.п: 6х10

— Этажность: 1 этаж

— Кол-во комнат: 3 комнаты

— Кол-во с/у: 1 санузел

Мы предлагаем на Ваш выбор одну из трех комплектаций, которая имеет разное наполнение, но заключает в себе все основные технологические и ответственные этапы строительства, которые лучше всего доверить профессионалам из нашей компании.

Ознакомится с комплектациями можно на этой странице.

Купив у нас дом, вы получаете готовую к отделочным работам постройку, которая стоит на фундаменте, накрыта кровлей сделанной на МЗП со вставленными металлопластиковыми окнами и дверьми, полностью сопровождена проектной документацией. Дом, баня, гараж или навес снаружи абсолютно готовы при выборе максимальной комплектации. Вам остается только сделать инженерные коммуникации самостоятельно или с нашей помощью. А также своими силами или с помощью сторонней организации выполнить отделочные работы.

Заказать строительство по нашим проектам Вы можете несколькими способами: оформить заявку на нашем сайте, позвонить нам или приехать к нам в офис. С помощью нашей компании, вы сможете приобрести ипотеку на строительство ИЖС от ведущих банков, таких как Сбер, Дом РФ, Почта банк , Росбанк и прочие. Домосбор является аккредитованной организацией во всех вышеперечисленных банках.