Найти в Дзене
Блог Саши Птичкина.

Квартира Максима Горького на Кронверкском проспекте выставлена на продажу.

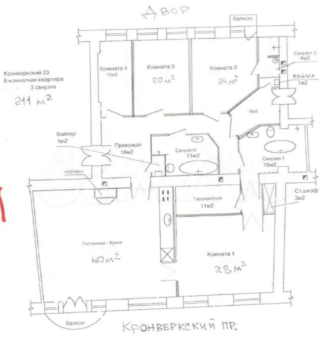
В бывшем Доходном доме супруги сенатора Барсовой, на Кронверкском проспекте дом 23, продаётся квартира, благодаря которой ближайшая станция метро получила своё имя - Горьковская. В ней, с 1914 по 1921 годы, жил и работал известный русский писатель Максим Горький. В этой квартире собирался весь культурный и политический бомонд тех времён - Ленин, Дзержинский, Маяковский, Шаляпин и многие другие. Квартира расположена на шестом этаже и представляет собой 6 комнат площадью 212м². Высокие потолки 3.3 метра, 3 санузла и небольшой балкон с шикарным видом на Кронверкский проспект, Петропавловскую крепость и Исаакиевский собор. Сердце квартиры огромная кухня-гостиная с красивой печью. Видимо здесь и проходили встречи и собрания именитых гостей писателя. Рядом с гостиной комната чуть по меньше, очень похожая на кабинет. Остальные комнаты выходят окнами во двор и чуть скромнее, чем две предыдущие. Три санузла разной степени крутости) Все это продаётся за 90 миллионов рублей,

В бывшем Доходном доме супруги сенатора Барсовой, на Кронверкском проспекте дом 23, продаётся квартира, благодаря которой ближайшая станция метро получила своё имя - Горьковская.

В ней, с 1914 по 1921 годы, жил и работал известный русский писатель Максим Горький. В этой квартире собирался весь культурный и политический бомонд тех времён - Ленин, Дзержинский, Маяковский, Шаляпин и многие другие.

Квартира расположена на шестом этаже и представляет собой 6 комнат площадью 212м².

-2

Высокие потолки 3.3 метра, 3 санузла и небольшой балкон с шикарным видом на Кронверкский проспект, Петропавловскую крепость и Исаакиевский собор.

Сердце квартиры огромная кухня-гостиная с красивой печью. Видимо здесь и проходили встречи и собрания именитых гостей писателя.

-3

-4

-5

-6

-7

-8

-9

-10

-11

Рядом с гостиной комната чуть по меньше, очень похожая на кабинет.

-12

-13

-14

Остальные комнаты выходят окнами во двор и чуть скромнее, чем две предыдущие.

-15

-16

-17

-18

-19

Три санузла разной степени крутости)

-20

-21

-22

Все это продаётся за 90 миллионов рублей, и цена растёт, начинали с 70. Сложно судить о том, на сколько прибавляет цену её исторический бэкграунд, но даже без него - отличное место, хорошее состояние, шикарный вид из окон, все это и так привлечет покупателя. Продавец настолько крут, что даже сделал сайт для квартиры, советую заглянуть, там много видеоматериалов об этом месте -

квартирагорького.рф

Ну а если вас заинтересовала сама квартира -

6-к. квартира, 212 м², 6/6 эт. на продажу в Санкт-Петербурге | Купить квартиру | Авито

И напомню, автор этого блога отлично знает исторический центр и разбирается в нюансах старого фонда Петербурга. Могу помочь с поиском, покупкой и продажей недвижимости в центре города, как жилой так и коммерческой, если вам нужна консультация - пишите по номеру телефона указанному в профиле.

Если понравилась статья загляните на бывшую квартиру Есенина или дворец Николая первого, их тоже можно купить)

Квартира художника на Васильевском острове.
Блог Саши Птичкина.25 января 2023

Фотографии квартиры взяты из открытых источников , на сайтах недвижимости Петербурга.