Найти в Дзене
Заметки дизайнера

Яйцо или курица? Картинка или чертеж?

Я уже писала, из каких этапов состоит дизайн-проект. Если обобщить, то можно увидеть три основных этапа: чертеж-картинка-чертеж. А точнее, планировочный проект-визуализация-рабочие чертежи. И я стараюсь придерживаться именно такой последовательности. Почему и бывает ли иначе - сейчас расскажу. Вы никуда не спешите. Вы знаете, что дизайн-проект не сделать за неделю. У вас под дверью не стоят рабочие, готовые начать еще вчера. У вас уже есть доступ в квартиру, в которой можно провести качественные замеры. Тогда порядок работ стоит выбрать именно такой, как я написала выше. Что нам это даст? Результатом будет хороший продуманный проект, в котором в дальнейшем может потребоваться минимум уточнений (а они всегда бывают в процессе ремонта, такова жизнь:)) У вас еще нет ключей от квартиры. Возможно, она еще на этапе стройки, а ключи застройщик обещает к концу года. Но вы посмотрели на бешенный рост цен и решили зафиксировать то, что можете. Вы берете план, который вам показывал застройщик, ко
Оглавление

Я уже писала, из каких этапов состоит дизайн-проект. Если обобщить, то можно увидеть три основных этапа: чертеж-картинка-чертеж. А точнее, планировочный проект-визуализация-рабочие чертежи. И я стараюсь придерживаться именно такой последовательности. Почему и бывает ли иначе - сейчас расскажу.

Вариант первый - идеальный.

Вы никуда не спешите. Вы знаете, что дизайн-проект не сделать за неделю. У вас под дверью не стоят рабочие, готовые начать еще вчера. У вас уже есть доступ в квартиру, в которой можно провести качественные замеры. Тогда порядок работ стоит выбрать именно такой, как я написала выше. Что нам это даст?

  • Обмерный план расскажет нам, сколько у нас места. А планировочный проект максимально точно ляжет на реальные размеры квартиры и покажет, какие размеры мебели мы можем себе позволить в текущих масштабах.
  • Визуализация будет создана максимально точно по заданным ранее габаритам. И она дополнит наш 2D чертеж в 3D картинку, где мы сможем оценить визуально и скорректировать какие-то габариты (шкаф в потолок или открытые полки? Зеркало на этой стене? Панно с подсветкой вписывается над этой кроватью? Может увеличим подоконник? Штору заменить на римскую? И т.д.) На визуализации будет в итоге отображена та мебель, которую вы сможете купить в магазине или сделать на заказ (по реальным размерам с учетом всех конструкционных особенностей).
  • Рабочие чертежи начнутся...со скорректированного планировочного проекта, т.к. в процессе визуализации мы еще что-то утоняли и искали конкретные модели мебели. А затем уже поверх него ляжет вся рабочка: где разместить розетки, чтобы было удобно заряжать телефончик, сидя на диване; какие ниши предусмотреть в потолке, чтобы поместилась выбранная штора; сколько выключателей понадобится на все сценарии освещения; какой участок стены будет закрыт обоями, а где будет декоративная панель; какие и на каком этапе ремонтных работ устанавливать плинтуса и т.д.

Результатом будет хороший продуманный проект, в котором в дальнейшем может потребоваться минимум уточнений (а они всегда бывают в процессе ремонта, такова жизнь:))

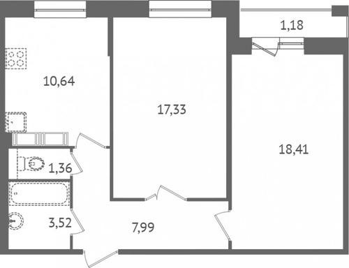
Примерно так прорабатывается планировка. Стрелочки тут - это путь человека по квартире:)
Примерно так прорабатывается планировка. Стрелочки тут - это путь человека по квартире:)

Вариант второй - для тех, кто любит все делать заранее.

У вас еще нет ключей от квартиры. Возможно, она еще на этапе стройки, а ключи застройщик обещает к концу года. Но вы посмотрели на бешенный рост цен и решили зафиксировать то, что можете. Вы берете план, который вам показывал застройщик, когда вы покупали квартиру, и идете по мебельным, чтобы хотя бы примерно посчитать ту же кухню. Или может быть вы хотите понять, какие суммы нужно будет держать наготове к концу года, чтобы воплотить в жизнь все свои мечты. В общем, вы приходите к дизайнеру:) Что может сделать для вас дизайнер? Сразу скажу, что многие дизайнеры вам могут просто отказать по причине того, что нет возможности провести замеры. Однако, я могу взять такой заказ, предупредив, конечно же, обо всех нюансах. Что получит заказчик?

  • Планировка. Т.к. у нас нет обмеров и плана БТИ, мы можем руководствоваться только очень примерным планом от застройщика. Главное - чтобы были хотя бы приблизительные размеры по стенам:) И по этому "плану" будет сделан предварительный планировочный проект. В этом случае чертеж будет содержать множество примечаний о том, что тот или иной размер необходимо будет еще уточнить. Однако, примерную планировку вы все же получите. Если у нас нет размеров по стенам и у застройщика не получается запросить подобную информацию, планировку, даже примерную, сделать не получится.
  • Стилевое решение. Т.к. спешки никакой нет, можно тщательно проработать сочетания цветов, фактур и стилей для каждого помещения. Можно попросить дизайнера съездить с вами в магазин отделки и подобрать варианты.
  • Визуализация будет очень примерной все по тем же причинам, что и планировка. Здесь нет смысла точно подбирать каждую деталь мебели, т.к. габариты квартиры еще не уточнены. Однако, можно взять на заметку несколько похожих моделей в разных размерах. Конечно же, вы можете на этом этапе сделать предварительный расчет заказной мебели, тем более, что некоторые компании предоставляют услугу фиксации цены, если вы делаете такой предзаказ. На производство ваш заказ уедет только после реальных замеров. А так же вы уже сейчас можете примерно прикинуть стоимость отделочных материалов (заложив запас на возможную разницу с реальной площадью) и каких-то технических решений.
  • Чертежи. А вот их я на этом этапе делать не буду:) Ну ладно, я могу набросать для себя черновик, но отдавать заказчикам тут особо нечего, т.к. чертежи - это рабочая документация. А что это за документация, где половина размеров дана "на глаз"?))
  • После получения ключей вам нужно будет позвать дизайнера на замеры. По результатам замеров дизайнер сделает все корректировки в своей работе и скажет вам, если что-то придется сильно изменить.
  • Финальный проект вы все равно получите только после получения ключей. Впрочем, вы можете остановиться на этапе "приблизительной визуализации", если вашей целью было просто прикинуть внешний вид будущей квартиры, а дальше вы намерены заниматься подбором самостоятельно.
Например, здесь заказчица как раз пришла только за визуализацией, т.к. ей нужно было вписать в новую квартиру кое-что из старой мебели.
Например, здесь заказчица как раз пришла только за визуализацией, т.к. ей нужно было вписать в новую квартиру кое-что из старой мебели.

Вариант третий - для тех, кто торопится.

Вы уже пригласили на объект строителей и вам срочно надо отдать им какие-то чертежи. Опять же, не каждый дизайнер согласится работать в этих условиях. Я скорее всего откажусь:) Исключение составит только работа со знакомыми мне строителями, с которыми у нас уже есть опыт успешной совместной работы. Почему я не люблю такой вариант?

  • Начало у него такое же, как и в первом варианте - обмеры и планировочный проект. Но вы помните да, что существует еще уточненный планировочный проект?:) И если сейчас отдать рабочим первый вариант, потом можно обнаружить, что в процессе визуализаций мы (мы - это дизайнер + заказчик, если что) решили подвинуть немного перегородку или переместить дверной проем. А рабочие уже возвели/сломали по первому варианту. Рабочие, конечно, выполнят эту работу еще раз, но заказчику придется заплатить за это дважды.
  • Визуализация. Я настаиваю на том, что она должна идти до рабочих чертежей именно потому, что в процессе визуализации уточняются многие нюансы. Однако, заказчики, у которых рабочие сидят без дела, могут очень хотеть новой порции чертежей. В крайнем случае можно обойтись простыми коллажами и подбором отделочных материалов. Однако, тут будут риски, а чертежи будут полны предупреждений об уточнении того или иного размера "в зависимости от приобретенной мебели". В некоторых случаях можно делать работу "по помещениям", т.е. сначала, например, разрабатываем все, что надо для санузла, а пока идет ремонт там, согласуем внешний вид кухни и т.д. Это сомнительный вариант и некоторые работы все равно распространяются на всю квартиру, а не только на одно помещение.
  • Чертежи. Скорее всего их придется отдавать по одному, а не все разом - и это то, чего я категорически не люблю. Еще сильнее, чем пренебрежение визуализацией:) Почему? Возможно, когда у меня будет лет 10 опыта, я смогу спокойно и вполне успешно так работать. Сейчас, когда я еще "новичок", с каждым видом чертежа, я перепроверяю те, что уже сделала. Не редко бывает, что я вспоминаю какую-то важную деталь для одного чертежа, занимаясь уже другим чертежом. Например, прорисовывая отделку стен, я могу вспомнить, что в этой декоративной панели мы хотели сделать подсветку, а на плане электрики я забыла указать для нее вывод (а план электрики идет одним из первых). Или прорисовывая детально развертки по стенам, я часто немного двигаю какие-то элементы, чтобы они смотрелись гармоничнее.
Вот в таких примечаниях будет весь чертеж:)
Вот в таких примечаниях будет весь чертеж:)

Как видите, бывают разные ситуации, в которых порядок работ меняется или что-то и вовсе пропускается. Но важно помнить и понимать, что если вы просите о таких изменениях в порядке работ, вы неизбежно получите некоторые риски. Порой лучше все же не торопиться и не придумывать себе лишних проблем:)