Найти в Дзене
INMYROOM

Ремонт двушки 42 м² в типовой панельке за 1,5 млн рублей

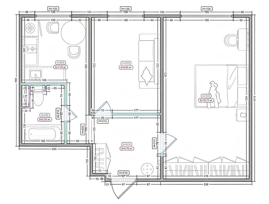
Без перепланировки обустроили уютное и функциональное пространство Эту двухкомнатную квартиру в классической панельке серии II-49 оформили дизайнеры из инвестагентства Ксении Шахматовой. Главной задачей было выделить две полноценные комнаты под разные потребности. Перепланировку в квартире не делали — здесь есть прихожая, большая спальня, гостиная, отдельная кухня, совмещенный санузел. Место: Москва
Метраж: 44 м²
Количество комнат: 2
Высота потолка: 2,6 м
Санузел: 1
Дизайн: Ксения Шахматова На стенах во всей квартире — обои под покраску. Для окрашивания использовали два цвета: бежевый и фисташковый. На полу единым контуром уложен ламинат «елочкой». Это классическая советская кухня 6 кв. м. Гарнитур модульный, с нижними белыми и верхними бежевыми фасадами. Его стоимость без бытовой техники составила 70 тысяч рублей. Светлые оттенки сочетаются с любыми цветами, а фасады лаконичного дизайна будут актуальны долгое время и впишутся в любое стилевое решение. Фартук выполнен из крупноформатно
Оглавление

Без перепланировки обустроили уютное и функциональное пространство

Эту двухкомнатную квартиру в классической панельке серии II-49 оформили дизайнеры из инвестагентства Ксении Шахматовой. Главной задачей было выделить две полноценные комнаты под разные потребности. Перепланировку в квартире не делали — здесь есть прихожая, большая спальня, гостиная, отдельная кухня, совмещенный санузел.

Место: Москва
Метраж: 44 м²
Количество комнат: 2
Высота потолка: 2,6 м
Санузел: 1
Дизайн: Ксения Шахматова

Румтур этой квартиры (42 минуты)

 📷
📷

На стенах во всей квартире — обои под покраску. Для окрашивания использовали два цвета: бежевый и фисташковый. На полу единым контуром уложен ламинат «елочкой».

О кухне

Это классическая советская кухня 6 кв. м. Гарнитур модульный, с нижними белыми и верхними бежевыми фасадами. Его стоимость без бытовой техники составила 70 тысяч рублей. Светлые оттенки сочетаются с любыми цветами, а фасады лаконичного дизайна будут актуальны долгое время и впишутся в любое стилевое решение. Фартук выполнен из крупноформатного керамогранита под мрамор.

В кухне есть отдельностоящий холодильник, посудомоечная машинка, духовой шкаф, вытяжка и варочная панель на две конфорки.

 📷
📷
 📷
📷

В столовой зоне — круглый стол со столешницей диаметром 75 см. Над ним — стильный подвес, который обеспечивает уютную атмосферу вечером. Черные с золотистым ножки стульев поддерживают акцентные оттенки кухонного пространства.

 📷
📷
 📷
📷

О гостиной

Гостиную обустроили в меньшей по площади комнате. Здесь есть компактный раскладной диван, журнальные столики и подвесная ТВ-тумба, над которой запланированы розетки для размещения телевизора или иной техники.

 📷
📷
 📷
📷
 📷
📷
 📷
📷

О спальне

Площадь спальни 18,8 кв. м. Здесь находится самая большая система хранения во всей квартире. Это встроенный шкаф с большим количеством полок разного размера и штангой для длинной одежды. Шкаф обошелся в 100 тысяч рублей.

 📷
📷
 📷
📷

Стену за изголовьем кровати покрасили фисташковым цветом и оформили молдингами. Это бюджетный способ сделать пространство интереснее и придать объем. Мягкая кровать оснащена подъемным механизмом и вместительным коробом. С одной стороны кровати поставили тумбу, с другой — подвесной туалетный столик, который можно использовать и как рабочее место.

 📷
📷
 📷
📷
 📷
📷
 📷
📷

О прихожей

Мокрую входную зону выделили ковриком из керамической плитки. В прихожей поставили небольшой шкаф для верхней одежды, скрыв в нем электрический щиток. Практическое и стильное решение — зеркало в полный рост в золотистом обрамлении и мягкий пуф на золотистых опорах. Для ключей и хранения разной мелочи предусмотрели белую консоль.

 📷
📷
 📷
📷

О санузле

Для отделки поверхностей использовали комбинацию двух видов керамогранита и краску. Акцентную стену за раковиной выделили черной плиткой с золотистыми прожилками. Тумбу тоже выбрали черную. На полу и в зоне ванны — светлая плитка под мрамор. Золотистая сантехника и освещение добавили интерьеру изысканности и шика.

 📷
📷
 📷
📷
 📷
📷

Сейчас читают: