Добавить в корзинуПозвонить
Найти в Дзене
INMYROOM

Стильный интерьер, в котором собрали все главные дизайн-тренды 2025

На примере стильного и яркого шоурума рассказываем про актуальные идеи, которые вы можете повторить у себя дома Дизайнер Сара Михайлова оформила для компании Pro Design шоурум, где представлены двери-невидимки и плинтусы. Ставку сделали на создание универсального пространства как бы жилой квартиры, сочетающей в себе классические приемы и новые тренды отделки. Место: Москва
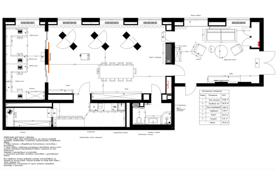
Площадь: 115 кв. м
Помещения: 6
Дизайнер: Сара Михайлова
Декоратор: Дарья Сухарева
Фотограф: Михаил Бравый У компании Pro Design собственное производство скрытых дверей и плинтусов, поэтому все квадратные метры были использованы для демонстрации многообразия возможных дизайнерских решений. В шоуруме есть выставочный зал, зона дизайна, офис менеджеров, кухня и санузел — ни один дизайн двери не повторяется. Выставочный зал выглядит как гостиная, каждую стену оформили по-разному для экспозиции образцов дверей, полотен, фурнитуры и скрытого плинтуса. Двери скрытого монтажа — актуальный тренд, один из любимых приемов диза
Оглавление

На примере стильного и яркого шоурума рассказываем про актуальные идеи, которые вы можете повторить у себя дома

Дизайнер Сара Михайлова оформила для компании Pro Design шоурум, где представлены двери-невидимки и плинтусы. Ставку сделали на создание универсального пространства как бы жилой квартиры, сочетающей в себе классические приемы и новые тренды отделки.

Место: Москва
Площадь: 115 кв. м
Помещения: 6
Дизайнер: Сара Михайлова
Декоратор: Дарья Сухарева
Фотограф: Михаил Бравый

У компании Pro Design собственное производство скрытых дверей и плинтусов, поэтому все квадратные метры были использованы для демонстрации многообразия возможных дизайнерских решений. В шоуруме есть выставочный зал, зона дизайна, офис менеджеров, кухня и санузел — ни один дизайн двери не повторяется.

 📷
📷
 📷
📷

Выставочный зал выглядит как гостиная, каждую стену оформили по-разному для экспозиции образцов дверей, полотен, фурнитуры и скрытого плинтуса. Двери скрытого монтажа — актуальный тренд, один из любимых приемов дизайнеров, позволяющий создать гармоничное и эстетичное пространство без ущерба функциональности.

 📷
📷

Один из приемов, расширяющих помещение и увеличивающих количество света, — зеркальная отделка стен и дверей. В этом интерьере дизайнер разместила отражающие элементы около окон, чтобы усилить эффект.

 📷
📷

На полу в «гостиной» использована кварцвиниловая плитка повышенной износостойкости в теплом оттенке. Стены покрашены в светлый оттенок и декорированы раскладкой молдингов, зеркальными панно и шпонированными панелями — все для того, чтобы подчеркнуть многообразие отделок, с которыми могут быть использованы скрытые двери и плинтус.

 📷
📷

«Лаконичность линий разбавляется экстравагантностью мелочей. Это и круглое зеркало на шпонированной стене, незаметно разделенное дверью на две части, и глянцевая люстра, напоминающая „черные брызги“ из „Пикника на обочине“ братьев Стругацких. Забавная деталь — гипсовая Венера, потягивающая вино у окна, ее силуэт под барельефом игриво дорисован на стене», — рассказывает автор проекта.

 📷
📷

Этот интерьер раскрывает еще один популярный тренд — сочетание нескольких стилей в одном помещении. Здесь гармонично соседствуют минимализм, лофт, классика.

 📷
📷

Вам могут пригодиться:

Для отделки демонстрационного зала выбрали контрастные сочетания — черный лофтовый потолок с белыми стенами и пол из крашеного бетона с необычной и в то же время простой и понятной посетителю навигацией в виде ярких разноцветных полос, ведущих к колоннам с дверями. Лаконичность оформления подчеркнули графичными скрытым и щелевым плинтусами Pro Design черного цвета.

 📷
📷
 📷
📷

Образцы отделки дверей, являющиеся неотъемлемой частью интерьера, разместили на стенах огромной лаборатории — для них дизайнер специально выделила и спроектировала отдельное пространство.

 📷
📷

Интересные детали создают настроение: в демонстрационном зале это постеры с замочной скважиной и ключом от всех дверей на противоположных стенах, замысловатые люстры-барашки из папье-маше, забавный водолаз, прорисованный вокруг огнетушителя, «лаковая» стеклянная дверь алого цвета, «стекающая» на пол.

 📷
📷
 📷
📷
 📷
📷

«Переговорную для менеджеров из скучного делового пространства я превратила в арт-студию благодаря эффектному декору. Атмосферу создают крафтовое полотно с заметками на стене, звериная шкура на полу, живые растения, яркий столик-конус с зеленым стеклом и кружевной стул, — рассказывает дизайнер. — От других помещений она отделена двумя разными большими стеклянными перегородками. Здесь есть все для комфортного общения в камерной располагающей обстановке».

 📷
📷
 📷
📷
 📷
📷
 📷
📷

Для кухни дизайнер выбрала трендовый колорблок, он делает простые формы в помещении невероятно стильными.

 📷
📷

Помимо общего верхнего освещения, в шоуруме по всему периметру установлены подвесные и напольные светильники. «В выставочном зале они фокусируют взгляд на экспозиции, в других зонах создают многослойность благодаря игре теней и выделяют остроумные скульптуры. Например, бюст на синей кухонной стойке, как бы рассматривающий стройные ножки с постера на стене», — рассказывает дизайнер.

 📷
📷
 📷
📷
 📷
📷

В небольшом санузле объем создается цветом и фактурой. Пространство расширили за счет огромного зеркала, упирающегося в черный потолок.

 📷Сантехника минималистична, с плавными мягкими линиями, акцентами служат яркий рисунок, цветовые пятна в мебели и искусство.
📷Сантехника минималистична, с плавными мягкими линиями, акцентами служат яркий рисунок, цветовые пятна в мебели и искусство.
 📷
📷

Сейчас читают: