Найти в Дзене
Дизайнер Мария Панове

"Нам надо впихнуть невпихуемое и работать мы любим из дома," - или обзор дизайн-проекта двушки в новостройке.

С таким запросом ко мне обратились заказчики, которые получили ключи от новенькой бетонной коробочки. 2 комнаты и гардеробная - примерно так они распланировали свою квартиру до того, как злой дизайнер не рассказал им о том, что это узаконить не получится. Поэтому от первоначального плана с гардеробной пришлось отказаться, заменив ее большим количеством разных шкафов. Сложность спальни заключалась в том, что она не большая, а разместить в ней нужно много: кровать с матрасом 160 см, большой шкаф, рабочее место, туалетный столик и зону для телевизора в которой тоже нужно хранение. Поскольку от кресла или дивана мы отказались, то единственным местом просмотра ТВ стала кровать в спальне. Нужно было найти кровать с удобной отвесной спинкой. Такая нашлась у SK design. Рабочее место в спальне было необходимо, и достаточно больше - т.е. глубиной не менее 600 мм, и длиной не менее 1400 мм. Таковы издержки профессии. Конфигурация со столом у окна заказчикам не подошла. Решено было придумать хит

С таким запросом ко мне обратились заказчики, которые получили ключи от новенькой бетонной коробочки.

Фото собственность автора.
Фото собственность автора.

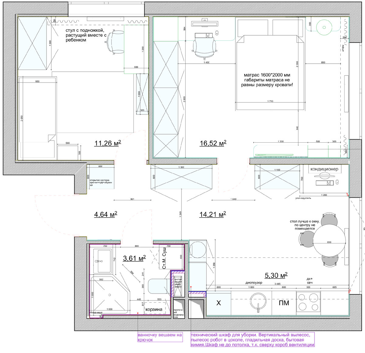
2 комнаты и гардеробная - примерно так они распланировали свою квартиру до того, как злой дизайнер не рассказал им о том, что это узаконить не получится.

Поэтому от первоначального плана с гардеробной пришлось отказаться, заменив ее большим количеством разных шкафов.

Принятая заказчиком планировка. Фото собственность автора.
Принятая заказчиком планировка. Фото собственность автора.

Сложность спальни заключалась в том, что она не большая, а разместить в ней нужно много: кровать с матрасом 160 см, большой шкаф, рабочее место, туалетный столик и зону для телевизора в которой тоже нужно хранение.

Поскольку от кресла или дивана мы отказались, то единственным местом просмотра ТВ стала кровать в спальне. Нужно было найти кровать с удобной отвесной спинкой. Такая нашлась у SK design.

https://skdesign.ru/product/krovat-parc-na-nozhkax?pa_mattressize=140-x-200-sm&pa_fabric=05-2
https://skdesign.ru/product/krovat-parc-na-nozhkax?pa_mattressize=140-x-200-sm&pa_fabric=05-2

Рабочее место в спальне было необходимо, и достаточно больше - т.е. глубиной не менее 600 мм, и длиной не менее 1400 мм. Таковы издержки профессии.

Конфигурация со столом у окна заказчикам не подошла.

-4

Решено было придумать хитровыдуманную конструкцию. Это подвесной стол, который монтируется вплотную к большому платяному шкафу. Туалетный по такой же схеме. Благодаря тому, что они подвесные, травматизация у прикроватной зоны снижается.

Спальня. Фото собственность автора.
Спальня. Фото собственность автора.

Но проектировать подвесные столы нужно прямо на черновом этапе. Я вам рассказывала, технологию. Там без закладных в стене никак.

Спальня. Фото собственность автора.
Спальня. Фото собственность автора.

У зоны ТВ тоже разместили хранение. Там будут храниться книги, канцелярия и различные бумаги.

Спальня. Фото собственность автора.
Спальня. Фото собственность автора.

Разобравшись со спальней начали планировать кухню. Мне нужно было предусмотреть еще одно рабочее место, но более глубокое.

Кухня. Фото собственность автора.
Кухня. Фото собственность автора.

Максимально минималистичная кухня.

Кухня. Фото собственность автора.
Кухня. Фото собственность автора.

Я подобрала материалы в соответствии с пожеланиями. Мрамор заменили. Взяли более деликатные прожилки.

Подбор материалов. Фото собственность атвора.
Подбор материалов. Фото собственность атвора.

В ванной комнате я предложила теплое цветовое решение. Сочетание травертина и дерева.

Ванная. Фото собственность автора.
Ванная. Фото собственность автора.

Но заказчикам ванная представлялась в более прохладной гамме.

Ванная. Фото собственность автора.
Ванная. Фото собственность автора.

Поэтому подобрали серый керамогранит.

-13

Вторая по величине комната - детская. Максимально спокойная, но в то же время функциональная и долго не теряющая своей актуальности.

Детская. Фото собственность автора.
Детская. Фото собственность автора.

Белая мебель - это универсальная история, а вот цвет краски на стенах можно всегда обновить при желании.

Детская. Фото собственность автора.
Детская. Фото собственность автора.

Хранения получилось много, но за счет того, что все шкафы в цвет стен, они визуально воспринимаются частью стен.

Коридор.
Коридор.

И вроде бы все так просто и логично на рендерах... Но для того, чтобы собрать такой кубик Рубика, выполнив все (ладно, почти все) пожелания заказчика ушло 3 месяца. Проект ушел в реализацию (в телеге рассказывала). Ребята из @vition наводят там ремонтную красоту.

Все чертежи этого проекта я выложила у себя в телеграм. Лайки по желанию.

P.S. для новоприбывших, у нас тут дружелюбная атмосфера. Конструктивную критику всегда приветствуем, хамство - нет.

📄 Мой сайт (фото реализованных объектов и прайс)

📷 Мои инстаграм (запрещен и порицаем в РФ) В хайлайтс гигантское количество подборок из строительных и мебельных магазинов.

📝 Мой телеграмм-канал (инфа с текущих строек, подборки и находки необычных смесов, света и пр. и немного о жизни)