Найти в Дзене
INMYROOM

Интерьер евротрешки 56 м², в котором нет ничего лишнего

Дизайнер Наталья Яшузакова выбрала единую цветовую палитру для всех помещений и использовала минимум декоративных элементов Дизайнер Наталья Яшузакова оформила евротрешку с ремонтом white-box площадью 56 кв. м для молодой пары. Заказчики хотели получить современный яркий интерьер с большим количеством мест хранения. Город: Москва
Тип дома: монолитный
Метраж: 56 кв. м
Комнаты: 3
Санузел: 1
Высота потолка: 3 м
Бюджет: 2,5 млн рублей
Дизайнер: Наталья Яшузакова
Фотограф: Екатерина Гейц В работу квартира досталась с отделкой white-box от застройщика: были подготовлены стены, разведена электрика. Планировка предполагала два санузла: один при входе в прихожей слева, и второй, основной, около спальни. От маленького санузла впоследствии отказались в пользу постирочной-гардеробной, в которой можно хранить крупногабаритные и несезонные вещи. На кухне разместили всю необходимую технику, включая посудомоечную машину на 60 см, большой встроенный холодильник, встроенную микроволновую печь и духовой
Оглавление

Дизайнер Наталья Яшузакова выбрала единую цветовую палитру для всех помещений и использовала минимум декоративных элементов

Дизайнер Наталья Яшузакова оформила евротрешку с ремонтом white-box площадью 56 кв. м для молодой пары. Заказчики хотели получить современный яркий интерьер с большим количеством мест хранения.

Город: Москва
Тип дома: монолитный
Метраж: 56 кв. м
Комнаты: 3
Санузел: 1
Высота потолка: 3 м
Бюджет: 2,5 млн рублей
Дизайнер: 
Наталья Яшузакова
Фотограф: Екатерина Гейц

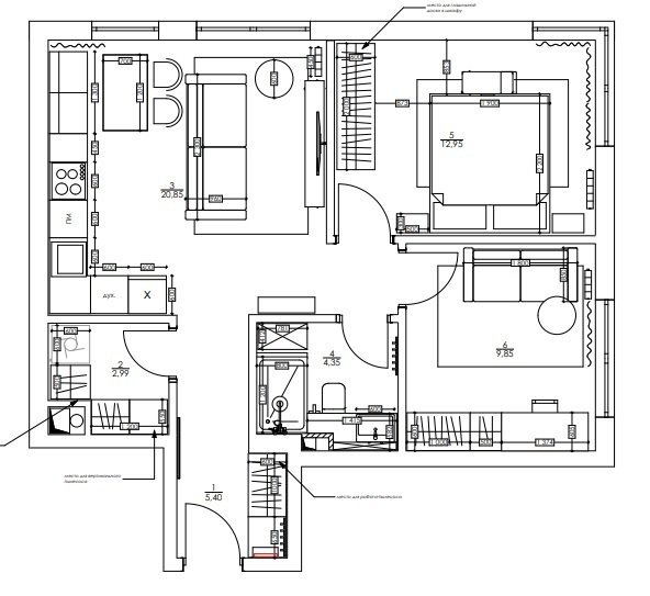
Планировка

В работу квартира досталась с отделкой white-box от застройщика: были подготовлены стены, разведена электрика. Планировка предполагала два санузла: один при входе в прихожей слева, и второй, основной, около спальни. От маленького санузла впоследствии отказались в пользу постирочной-гардеробной, в которой можно хранить крупногабаритные и несезонные вещи.

 📷
📷

Кухня-гостиная

На кухне разместили всю необходимую технику, включая посудомоечную машину на 60 см, большой встроенный холодильник, встроенную микроволновую печь и духовой шкаф. Навесные шкафы сделали минималистичными, чтобы скрыть сушку для посуды и вытяжку, а на самых верхних полках предусмотрели хранение техники, которая используется редко.

 📷
📷
 📷
📷
 📷
📷

Площадь кухни-гостиной небольшая, рассматривали несколько вариантов расстановки мебели. В итоге получилось просторное пространство, где могут собираться все члены семьи. Есть обеденная зона с красивым видом из окна, удобная гостиная зона с большим раскладным диваном и большим ТВ, который удобно смотреть и со стороны кухни, и со стороны гостиной.

 📷
📷

Для всех помещений выбрали влагостойкую покраску, часть стен оформили стеновыми панелями под покраску.

 📷
📷
 📷
📷
 📷
📷

Спальня

Интерьер спальни очень лаконичный, здесь нет ничего лишнего. Стену в изголовье оформили реечными панелями в цвете натурального дерева — они добавляют тепла и уюта обстановке. Мебель выбрали простых форм, без лишних деталей.

 📷
📷
 📷
📷
 📷
📷
 📷
📷

Кабинет

Вторая спальня сейчас используется как кабинет и гостевая комната с раскладным диваном. В будущем ее можно будет переделать в детскую. Для отделки дизайнер выбрала краску и рельефные панели — они уже были использованы в других помещениях.

 📷
📷
 📷
📷

Все шкафы продумывались максимально вместительными, до потолка. Выполнялись на заказ.

 📷
📷
 📷
📷

Санузел

В санузле сохранили расстановку сантехники по плану застройщика. Но заменили ванну на душевую, что позволило сделать вместительный хозяйственный шкаф для разных вещей, в нем же спрятали бойлер.

 📷
📷
 📷
📷

Бренды, представленные в проекте

Кухня
Отделка: краска, Tikkurila
Напольное покрытие: ламинат, Pergo
Бытовая техника: техника, Weissgauff

Ванная комната
Отделка: краска, Tikkurila
Напольное покрытие: керамогранит, Kerama Marazzi
Сантехника: Am.Pm.

Прихожая
Отделка: краска, Tikkurila
Напольное покрытие: керамогранит, Keramin

Спальня
Отделка: краска, Tikkurilla
Напольное покрытие: ламинат, Pergo
Мебель: кровать, Moon

Хотите, чтобы ваш проект был опубликован на INMYROOM? Присылайте фотографии интерьера на  wow@inmyroom.ru

Сейчас читают: