Добавить в корзинуПозвонить
Найти в Дзене

Двойной объемный каркас. Часть 5. Монолитная лестница.

Абсолютное большинство домов по технологии ДОК выполнялось на монолитных фундаментах с одной или двумя монолитными лестницами. Под одну лестницу приходилось обычно 4 сваи. Опалубка выполнялась из щитов с доски 25х150 с раскреплениями из доски 50х100мм. Лестница заливалась вместе с остальным фундаментом с помощью бетононасоса. Начинали заливать с нижних ступеней. Залив нижнюю, закрывали ее сверху крышкой из щита и переходили к заливке более верхней ступени. Обязательно тщательно вибрировали лестницу, как и весь остальной фундамент. На дно лестницы укладывалась арматура ф12мм ячейками 200х200мм. Далее устанавливались П и Г-образные закладные из арматуры ф12 с шагом 400мм. Сами ступени образовывались дорожной сеткой 50х50х4мм. В итоге после заливки фундамента получалась симпатичная лестница со стандартными ступенями 150х300мм, которую можно в последствии красиво отделать. Продолжение следует... Подписывайтесь на канал Очерки о каркасе - нажмите на эту кнопочку, поставьте палец вверх,

Абсолютное большинство домов по технологии ДОК выполнялось на монолитных фундаментах с одной или двумя монолитными лестницами. Под одну лестницу приходилось обычно 4 сваи.

Двойной объемный каркас | Очерки о каркасе | Дзен

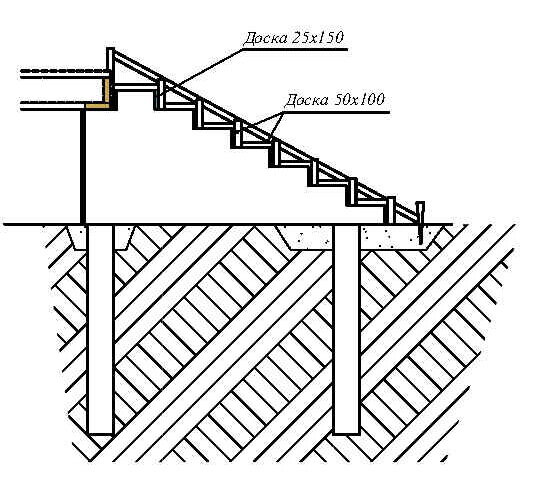
Опалубка монолитной лестницы
Опалубка монолитной лестницы

Опалубка выполнялась из щитов с доски 25х150 с раскреплениями из доски 50х100мм. Лестница заливалась вместе с остальным фундаментом с помощью бетононасоса.

-2

Начинали заливать с нижних ступеней. Залив нижнюю, закрывали ее сверху крышкой из щита и переходили к заливке более верхней ступени. Обязательно тщательно вибрировали лестницу, как и весь остальной фундамент.

Арматурный каркас монолитной лестницы
Арматурный каркас монолитной лестницы

На дно лестницы укладывалась арматура ф12мм ячейками 200х200мм. Далее устанавливались П и Г-образные закладные из арматуры ф12 с шагом 400мм. Сами ступени образовывались дорожной сеткой 50х50х4мм.

-4
Размеры монолитной лестницы
Размеры монолитной лестницы
-6

В итоге после заливки фундамента получалась симпатичная лестница со стандартными ступенями 150х300мм, которую можно в последствии красиво отделать.

Монолитная лестница в отделке
Монолитная лестница в отделке

Продолжение следует...

Подписывайтесь на канал Очерки о каркасе - нажмите на эту кнопочку, поставьте палец вверх, делитесь полезной информацией и пишите комментарии. Всем добра!