Найти в Дзене
DARIA ELNIKOVA INTERIORS

Трехэтажный пентхаус 370 м² в ЖК Золотые ключи-2, приватные помещения

Продолжаем обзор квартиры для семьи из четырех человек. Эта просторная квартира спроектирована нами как три верхних этажа жилого комплекса, что позволяет наслаждаться прекрасным панорамным видом города. Начало обзора, первый этаж с общими комнатами и террасой, смотрите тут
Предлагаем посмотреть сегодня второй и третий этажи квартиры. На втором этаже мы разместили только приватные помещения: мастер-зону со спальней, гардеробом и санузлом, спальни детей, детский санузел с ванной и кабинет-гостевую спальню. Мастер-спальня Мастер-спальня, как и основные помещения интерьера выполнена в выразительной монохромной гамме. Когда я создавала этот интерьер, я вдохновлялась воспоминаниями о поездке в Исландию. Там невероятная нетронутая природа, и мне казалось, это подойдет для текущего интерьера. На стене за изголовьем в качестве декора – барельеф, его создадут для нас профессиональные декораторы. Идея создать нечто подобное скалам и использовать природные материалы на стенах. Так на стене у макия

Продолжаем обзор квартиры для семьи из четырех человек. Эта просторная квартира спроектирована нами как три верхних этажа жилого комплекса, что позволяет наслаждаться прекрасным панорамным видом города.

Начало обзора, первый этаж с общими комнатами и террасой, смотрите тут
Предлагаем посмотреть сегодня второй и третий этажи квартиры.

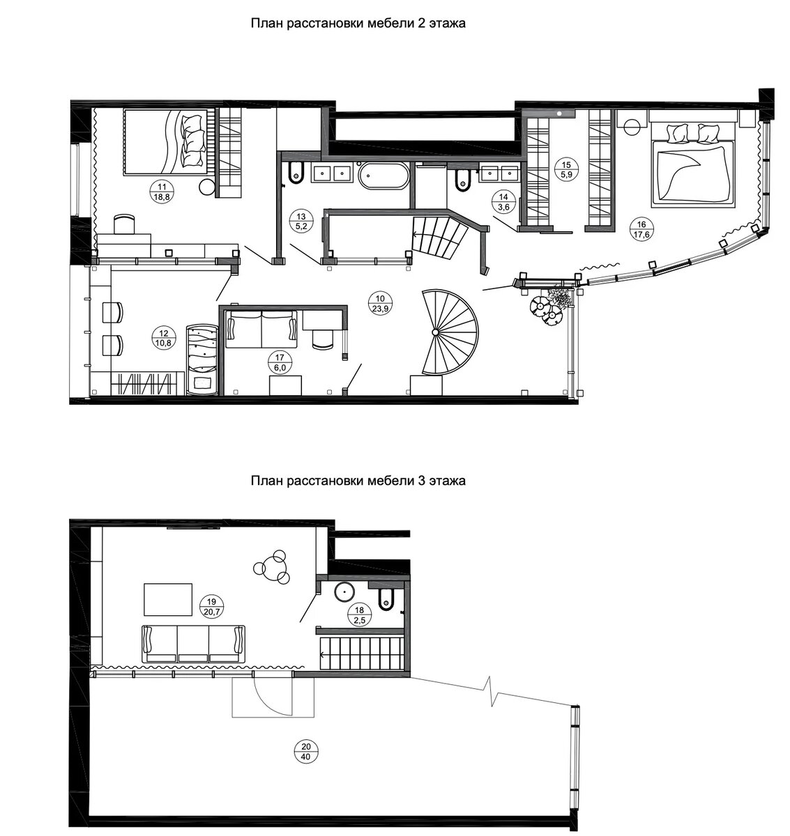
Планировочные решения для второго и третьего этажей
Планировочные решения для второго и третьего этажей

На втором этаже мы разместили только приватные помещения: мастер-зону со спальней, гардеробом и санузлом, спальни детей, детский санузел с ванной и кабинет-гостевую спальню.

Мастер-спальня

Мастер-спальня, как и основные помещения интерьера выполнена в выразительной монохромной гамме. Когда я создавала этот интерьер, я вдохновлялась воспоминаниями о поездке в Исландию. Там невероятная нетронутая природа, и мне казалось, это подойдет для текущего интерьера.

Барельеф за изголовьем кровати создадут профессиональные декораторы.
Барельеф за изголовьем кровати создадут профессиональные декораторы.

На стене за изголовьем в качестве декора – барельеф, его создадут для нас профессиональные декораторы. Идея создать нечто подобное скалам и использовать природные материалы на стенах. Так на стене у макияжного столика используется плиты из сланца.

Макияжный столик, зеркало с подсветкой и пуф.
Макияжный столик, зеркало с подсветкой и пуф.

Заказчикам очень нравится различного рода подсветка, поэтому стена со сланцем со встроенной подсветкой, а с права и слева от изголовья кровати большие зеркала с подсветкой по бокам. Кстати, они сочетаются со стеклянным потолком спальни.

Прикроватная тумба и зеркало с подсветкой за ней
Прикроватная тумба и зеркало с подсветкой за ней
В спальне предусмотрены шторы-блэкаут.
В спальне предусмотрены шторы-блэкаут.
Слева от кровати стена из сланца со встроенной подсветкой, за изголовьем барельеф.
Слева от кровати стена из сланца со встроенной подсветкой, за изголовьем барельеф.

Основное покрытие стен, как и на первом этаже - декоративная штукатурка «под бетон».

Мастер-санузел с душевой

Отделка стен и пола керамогранит, также на полу подсветка и декоративная галька под тумбой.
Отделка стен и пола керамогранит, также на полу подсветка и декоративная галька под тумбой.

Мастер-санузел мы сделали в общем цветовом решении, а в качестве декора использовали на стенах деревянные панели, которые сочетаются по материалу и цвету с тумбой под две раковины. Сантехника и аксессуары акцентного черного цвета.

Душевая с раздвижными дверями и подсветкой на полу.
Душевая с раздвижными дверями и подсветкой на полу.
Декоративная панель и шкаф над унитазом в шпоне ореха.
Декоративная панель и шкаф над унитазом в шпоне ореха.
Сантехника и аксессуары черного матового цвета.
Сантехника и аксессуары черного матового цвета.

У заказчиков двое детей дошкольного возраста - мальчик и девочка. Пока что дети маленькие, но при этом комнаты мы разрабатывали сразу с учетом взросления.
Цветовое решение в детских немного отличается, здесь мы использовали более светлую цветовую гамму и пастельные цвета, за счет перекликающегося декора и материалов такое решение получилось уместно.

Детская для девочки

Комната дочки сделана в светлой цветовой гамме, с лиловыми и голубыми оттенками. В качестве отделки для стен использована краска, а для декора штукатурка, деревянные панели, и 3D-панели за изголовьем кровати.

Комната дочки разделена визуально на несколько зон: зона сна с большой кроватью, рабочее место с достаточным количеством открытого и закрытого хранения, и зона гардеробной, где предусмотрено основное хранение для одежды и игрушек. В гардеробной есть интересная деталь, - ниша в которой мы расположили игровой домик, по сути, это балдахин с мягкими подушками, которые сочетаются с мягкими панелями на стенах.

На одной стене гардеробной – роспись. Пока девочка маленькая в домике она будет играть, а когда подрастет - он легко демонтируется, и на его место встанет макияжный столик. Если обратить внимание, на стене у нас есть светильники, электрические выводы от них сохранятся и будут использованы для зеркала с подсветкой.

Кровать 160х200см с мягким изголовьем и декоративными 3d-панелями.
Кровать 160х200см с мягким изголовьем и декоративными 3d-панелями.
Хранение и рабочее место, отделка эмаль матовая и шпон, открытые полки с подсветкой.
Хранение и рабочее место, отделка эмаль матовая и шпон, открытые полки с подсветкой.
Спальное место с прикроватной тумбой и интересным светильником для чтения.
Спальное место с прикроватной тумбой и интересным светильником для чтения.
Открытая гардеробная из шпона
Открытая гардеробная из шпона
Игровая зона в открытой гардеробной
Игровая зона в открытой гардеробной

Детская для мальчика.

Комната мальчика выполнена в отличной от детской девочки цветовой гамме, но здесь также преобладают светлые тона и использованы пастельные цвета. На стенах в качестве основной отделки используется краска; деревянные и мягкие панели в качестве декора.

По желанию заказчика требовалось вписать часть имеющейся мебели, при этом желательно было создать как можно больше зон для игр и досуга сына. К примеру, над имеющейся кроватью мы сделали надстройку – где мальчик сможет играть и забираться туда славно в штабик по рукоходу на стене.

Одна из стен представляет собой стену для скалолазания. В качестве хранения используется большой шкаф для одежды и стеллажи для книг и игрушек. Здесь предусмотрено большое удобное рабочее место для двоих, расположенное у окна. По возможности, мы стараемся вписать именно такое рабочее место в интерьеры детских, чтобы была возможность делать уроки с репетитором или родителями.

Здесь есть место учебе и отдыху
Здесь есть место учебе и отдыху
У окна размещен рабочий стол-подоконник с выделенным освещением и хранением.
У окна размещен рабочий стол-подоконник с выделенным освещением и хранением.
Спортивный уголок и двухъярусная кровать - правильный тандем)
Спортивный уголок и двухъярусная кровать - правильный тандем)
Вид на скалодром и спорткомплекс.
Вид на скалодром и спорткомплекс.
Рабочее место для двоих.
Рабочее место для двоих.

Санузел с ванной для детей

Детский санузел по дизайну сделали синонимичным мастер-санузлу. По желанию заказчиков для детей мы разместили отдельностоящую ванну, которая стала еще и акцентным элементом интерьера.

Подвесной унитаз, тумба с двумя раковинами, зеркало с подсветкой и отдельностоящая ванна.
Подвесной унитаз, тумба с двумя раковинами, зеркало с подсветкой и отдельностоящая ванна.
На полу под ванной декоративная галька, решетка из тика и подсветка у стены.
На полу под ванной декоративная галька, решетка из тика и подсветка у стены.
Отделка стен и пола керамогранит и керамическая плитка.
Отделка стен и пола керамогранит и керамическая плитка.
Отдельностоящая ванна в санузле для детей.
Отдельностоящая ванна в санузле для детей.

Кабинет-гостевая комната.

На этом этаже, кроме спален есть небольшой кабинет, при желании он может служить как гостевая спальня, комната для персонала или же выполнять свою основную роль.

Диван, место для отдыха и рабочая зона: стол, хранение над ним и стул поворотный.
Диван, место для отдыха и рабочая зона: стол, хранение над ним и стул поворотный.
Отделка стен краска моющаяся и панели из дерева.
Отделка стен краска моющаяся и панели из дерева.
Вид на рабочее место в кабинете.
Вид на рабочее место в кабинете.
Зона ТВ с барельефом и открытыми полками.
Зона ТВ с барельефом и открытыми полками.

Игровая комната на третьем этаже

На третий этаж ведет небольшая лестница. И тут у нас ещё один интересный объем - это вторая гостиная или игровая комната с выходом на открытую летнюю террасу. Здесь вся семья сможет собираться и каждый найдёт чем ему заняться.

Игровая комната с диваном, ковром и мягким подоконником.
Игровая комната с диваном, ковром и мягким подоконником.
Отделка стен декоративная штукатурка, на полу паркетная доска.
Отделка стен декоративная штукатурка, на полу паркетная доска.
Зона ТВ напротив дивана, отделка шпон натуральный.
Зона ТВ напротив дивана, отделка шпон натуральный.
Вид на выход из игровой.
Вид на выход из игровой.

Санузел третьего этажа

Для удобства на третьем этаже есть еще один небольшой санузел.

Раковина напольная черная и унитаз подвесной, цвет антрацит.
Раковина напольная черная и унитаз подвесной, цвет антрацит.

Этот проект - один из самых сложных, над которым мы работали.
С учетом различных согласований все проектирование заняло около 10 месяцев. Пространственно-планировочные решения мы разрабатывали около месяца, и несколько раз возвращались к нему с корректировками, так как параллельно шла разработка конструктивной части проекта.

Когда был сделан дизайн, началась стройка, а пока мы разрабатывали комплект рабочей документации - возвели конструкции. Проект сейчас находится на активной стадии реализации, и мы рады, что нам удалось создать такой потрясающий и непохожий на другие интерьеры. Приятного просмотра!

Архитектор и автор проекта DARIA ELNIKOVA

Заказать дизайн-проект можно по тел. +7(995)115-23-20 и на сайте Еlnikova.com через форму обратной связи.