Найти в Дзене
Sleep Club

Ничего лишнего: светлая однушка с гостевой на лоджии

Однокомнатная квартира в современном стиле — это базовые цвета, минимальные акценты, отсутствие лишней мебели и функциональность. Посмотрите, как дизайнер Askona оформила однушку, в которой нет ничего лишнего, но есть дополнительное спальное место на лоджии. Пожелания заказчика Заказчиком был молодой человек, который живет один. Он обратился за услугой экспресс-дизайна от Askona, чтобы оформить квартиру в современном стиле: без нагромождения мебели, ярких цветов и декора. Особенность современного стиля — интерьер должен быть максимально простым и вневременным, чтобы дизайн не выходил из моды еще долгое время. Молодой человек попросил сделать пространство максимально светлым, чтобы в квартире было больше воздуха и она казалась визуально больше. В качестве основной цветовой гаммы были выбраны сдержанные оттенки — белый, бежевый, серый. А в роли акцентов выступили зеленый и черный. Также в квартире много дерева, что роднит дизайн с эко-минимализмом. Гостиная Так как квартира однокомнатная
Оглавление

Однокомнатная квартира в современном стиле — это базовые цвета, минимальные акценты, отсутствие лишней мебели и функциональность. Посмотрите, как дизайнер Askona оформила однушку, в которой нет ничего лишнего, но есть дополнительное спальное место на лоджии.

Пожелания заказчика

Заказчиком был молодой человек, который живет один. Он обратился за услугой экспресс-дизайна от Askona, чтобы оформить квартиру в современном стиле: без нагромождения мебели, ярких цветов и декора.

Особенность современного стиля — интерьер должен быть максимально простым и вневременным, чтобы дизайн не выходил из моды еще долгое время.

Молодой человек попросил сделать пространство максимально светлым, чтобы в квартире было больше воздуха и она казалась визуально больше.

В качестве основной цветовой гаммы были выбраны сдержанные оттенки — белый, бежевый, серый. А в роли акцентов выступили зеленый и черный. Также в квартире много дерева, что роднит дизайн с эко-минимализмом.

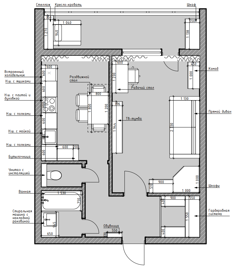
Планировка квартиры
Планировка квартиры

Гостиная

Так как квартира однокомнатная, гостиная играет роль и спальни, и рабочего кабинета. Поэтому важно было разграничить эти зоны.

Чтобы сэкономить место, для сна и отдыха дизайнер выбрала диван-кровать с анатомическим матрасом — сон на нем ничем ничем не уступает сну на кровати.

Диван играет и роль акцента: мягкий зеленый оттенок выделяется на фоне бежевых стен и белых шкафов. Помимо него в качестве акцента выступает черный цвет, который воплощен в телевизоре, кресле и настенном светильнике, — рассказывает дизайнер.

Гостиная. Мебель: прямой диван Loko Pro, шкаф Noble с ящиками, шкаф Noble, светильник Hightech, трехдверная тумба Stefania

В рабочей зоне расположились стол и кресло. Ширину столешницы и высоту стола можно отрегулировать: работать за ним можно даже стоя. Кресло эргономичной формы поддерживает спину и голову в правильном положении, помогая не уставать от долгой сидячей работы.

-4

Гостиная. Мебель: стол Adapt, кресло Odeon, тумба под ТВ Stefania

Кухня

Кухня тоже выполнена в простых оттенках, без визуального шума: пример — гарнитур со шкафчиками без ручек. Отделка из дерева привносит в интерьер нотки экостиля, который освежает пространство.

Заказчик хотел, чтобы в квартире было место для посиделок с друзьями. Поэтому на кухню выбрали стол с раздвижной столешницей, который можно увеличить к приходу гостей, — объясняет дизайнер.

Кухня. Мебель: кухонный гарнитур Lux 22, кресло Askona Home Indiana, раскладной стол Carolina

Лоджия

Лоджия выполняет роль гостевой спальни. Заказчик хотел создать в квартире дополнительное спальное место, поэтому на лоджии дизайнер поставила кресло Casper, которое раскладывается в полноценное односпальное место.

Лоджия
Лоджия

Также на лоджии расположены дополнительные места для хранения: шкаф и открытый стеллаж. Там можно разместить как декор, так и бытовые вещи.

Лоджия
Лоджия

Прихожая

Зона прихожей была достаточно большой, поэтому в ней дизайнер решила сделать полноценную гардеробную. Шкафы спрятаны за черной стеклянной перегородкой с дверьми.

-8
Еще было важно расположить в прихожей обувницу, так как у заказчика часто бывают гости, — отмечает дизайнер.
-9

Прихожая. Мебель: обувница Kelda, зеркало Tony

Санузел

Ванная и туалет также выполнены в современном стиле — минималистичная отделка и нейтральные цвета перекликаются с остальным интерьером. Для экономии места стиральная машинка и полки спрятаны под раковину.

Санузел
Санузел
Санузел
Санузел
Если вы тоже планируете ремонт, но не знаете, с чего начать, воспользуйтесь услугой экспресс-дизайн от Askona. Специалисты могут разработать дизайн всей квартиры или отдельной комнаты.
Вы получите два варианта планировки и 3D-визуализацию будущего интерьера с мебелью от Askona, которую можно будет сразу заказать на сайте.

А вам понравилась эта светлая квартира? Поделитесь мнением в комментариях