Найти в Дзене
Realt.by

Как из журнала. Смотрим квартиру в хорошем доме рядом с Минск Миром

В базе Realt появилась квартира со стильным ремонтом в теплых тонах. Все детали интерьера в ней подобраны идеально. Заметил квартиру телеграм-канал «Будни риэлтора». Квартира находится по адресу Быховская, 10. Пять минут до станции «Ковальская слобода» и недалеко от Минск Мира. Это каркасно-блочный 13-этажный дом, который сдали в 2020 году. Квартира на четвертом этаже. В ней 75 квадратов. Две жилые комнаты, есть кладовая. Вот как выглядит планировка. В квартире выполнен стильный ремонт в теплых тонах. На фотографиях все выглядит словно как из журналов. Новым собственникам оставляют абсолютно все, что есть на снимках. Площадь кухни - 11 квадратов. Установлены фильтры очистки воды. Техника - Siemens, AEG и Boch. В комнатах на полу паркетная доска. В гостиной на стене висит телевизор, стоит диван. Есть выход на застекленный балкон. В спальне стоит большая кровать. Установлены дизайнерские радиаторы. Есть рабочее место у окна. Окна, кстати, панорамные. Санузел совмещенный. Установлен душ.

В базе Realt появилась квартира со стильным ремонтом в теплых тонах. Все детали интерьера в ней подобраны идеально. Заметил квартиру телеграм-канал «Будни риэлтора».

Квартира находится по адресу Быховская, 10. Пять минут до станции «Ковальская слобода» и недалеко от Минск Мира. Это каркасно-блочный 13-этажный дом, который сдали в 2020 году.

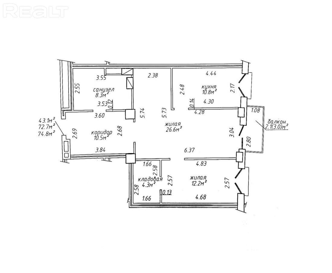
Квартира на четвертом этаже. В ней 75 квадратов. Две жилые комнаты, есть кладовая. Вот как выглядит планировка.

-2

В квартире выполнен стильный ремонт в теплых тонах. На фотографиях все выглядит словно как из журналов. Новым собственникам оставляют абсолютно все, что есть на снимках.

Площадь кухни - 11 квадратов. Установлены фильтры очистки воды. Техника - Siemens, AEG и Boch.

-3

В комнатах на полу паркетная доска. В гостиной на стене висит телевизор, стоит диван. Есть выход на застекленный балкон.

-4

В спальне стоит большая кровать. Установлены дизайнерские радиаторы. Есть рабочее место у окна. Окна, кстати, панорамные.

-5

Санузел совмещенный. Установлен душ.

-6

Стоимость квартиры - 183 тысячи долларов (2 447 долларов за квадрат).