Дизайнер Askona создала проект двухкомнатной квартиры для молодой семьи. Квартира в стиле мемфис получилась впечатляющей за счет ярких акцентов и плитки терраццо. А еще в ней удалось уместить постирочную и уединенную рабочую зону.
Пожелания заказчицы
Заказчицей была молодая девушка. Квартиру она обустраивала для себя, мужа и новорожденного ребенка.
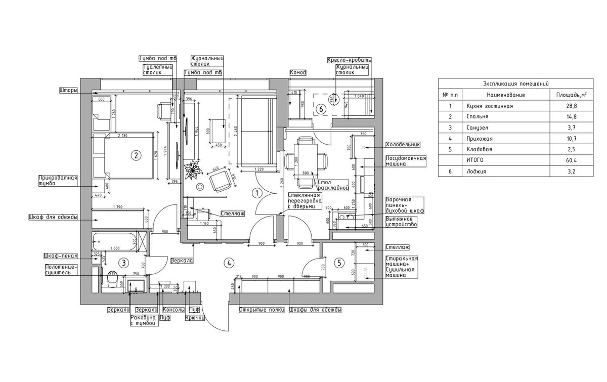
В квартире были предусмотрены спальня, кухня-гостиная и нежилые пространства: ванная, прихожая, прачечная и лоджия. Общая площадь — 60,4 кв. м.
Заказчица хотела уйти от популярного сегодня минимализма и попросила дизайнера разработать необычный и яркий интерьер.
За основу был взят стиль мемфис. Ему свойственны смешение ярких цветов и разных фактур, использование геометрических паттернов, мебели необычной формы и чрезмерного декора.
В качестве основных цветов были использованы терракотовый, белый и глубокий зеленый. Также дизайнер добавила пару акцентных цветов — горчичный и красный. Основные цвета задействовали преимущественно на стенах и на полу, а акцентные оттенки использовали в мебели.
Гостиная
Кухня и гостиная не полностью перетекают друг в друга — между ними есть стена с большим проемом. Его дизайнер решила обыграть раздвижными дверьми со стеклами — получилось две полноценные комнаты.
В гостиной дизайнер использовала акцентный красный цвет — он воплощен в диване и кресле.
Такие яркие цвета нечасто встретишь в интерьере. Но все зависит от материала и оттенка — в нашем случае это винный красный. Поэтому выглядит не пошло, а ярко и запоминающееся, — объясняет дизайнер.
Гостиная. Мебель: прямой диван Ralf, кресло Sling, тумба Tim, письменный стол Tim, кресло Darvin Velutto, стеллаж Odin, светильник Hightech
Также в гостиной предусмотрена рабочая зона, она отделена с помощью стеклянной перегородки. В рабочей зоне расположены стол, кресло и небольшой стеллаж, чтобы любой из супругов мог уединиться и поработать.
Кухня
Кухня выполнена в зелено-бежевых тонах, в соответствии с общей палитрой. Стол и стулья выбраны из массива дерева. Также предусмотрен детский стульчик, чтобы вся семья могла собираться за столом.
Для стиля мемфис свойственно сочетание разных фактур, и дерево — одна из них. Помимо него на кухне используется терраццо — плитка с вкраплениями камешков разных цветов.
Кухня. Мебель: стол Лувр-М, стул Arcus
Кухня ведет на лоджию. Ребристая стена на балконе добавляет объема, который красной нитью заметен во всем интерьере
Для отдыха на лоджии располагается кресло-кровать — на нем удобно отдыхать в теплое время года. Напротив кресла находится вместительный комод для хранения вещей.
Лоджия. Мебель: комод Issa, кресло-кровать Casper, журнальный стол Plate
Спальня
У заказчиков есть новорожденный ребенок, поэтому в спальню нужно было вписать кроватку. Ее дизайнер расположила рядом с родительской кроватью — так не придется далеко идти, чтобы успокоить ребенка. Детская кровать тоже выполнена из дерева и по фактуре перекликается со столом и стульями в кухне.
Наполнение комнаты состоит из шкафа, прикроватной тумбы, кровати, детской кроватки, ТВ-тумбы и туалетного столика, чтобы мама могла за ним поработать или привести себя в порядок, — рассказывает дизайнер.
Спальня. Мебель: кровать Pola, стул Askona Home Venice, шкаф Orel, кровать для новорожденного Melissa, тумба Orel, тумба Tim, зеркало Troy, светильник L-Vision
Нежилые пространства
В прихожей расположился вместительный шкаф вдоль стены — его вытянутая форма позволяет не загромождать узкий коридор. Также в прихожей есть консоль, куда можно бросить ключи и другие мелочи, и пуфы, на которых удобно обуваться. Крючки для одежды расположены на рейках, которые добавляют объема в интерьер.
Противоположная сторона коридора увешана зеркалами. Зеркала здесь выступают в роли декора или даже арт-объекта. Они не только делают стену акцентной, но и визуально расширяют небольшое пространство.
В стиле мемфис принято использовать много округлых форм. Поэтому зеркала и пуфы были выбраны именно со скругленными углами, — объясняет дизайнер.
Прихожая. Мебель: шкаф Life Time, стеллаж Life Time Ice, пуф Tenato, зеркало Troy 120x60, зеркало Troy 150x50, консоль Odin
На противоположных концах коридора напротив друг друга находятся прачечная и ванная. В прачечной все оборудовано для стирки — установлены стиральные машины, сушилки, находятся хозяйственные принадлежности. Благодаря такому разделению ванная не перегружена лишней техникой.
В комнате тоже используется плитка терраццо — она плавно перетекает с пола на стену. В помещении обыграны все основные цвета — белый, терракотовый и зеленый.
Санузел. Мебель: зеркало Duncan
Такой дизайн-проект можно быстро воплотить в жизнь — дизайнер использовала мебель из ассортимента Askona.
С услугой экспресс-дизайн от Askona вы тоже можете быстро обустроить квартиру или комнату. Специалисты разработают два варианта планировки и 3D-визуализацию будущего интерьера, а также передадут список мебели, которую можно будет сразу заказать в Askona.
А вы бы хотели жить в таком ярком интерьере? Поделитесь своим мнением в комментариях
