Найти в Дзене
Даст | DAST

Что нужно учесть при проектировании системы пылеудаления?

Встроенные пылесосы предоставляют удобное решение как для нового строительства и ремонта, так и для уже построенных помещений и квартир. Перед началом монтажа системы необходимо тщательно определить места установки пылесоса, пневморозеток, пневмосовков, место для выхода выхлопной трубы в атмосферу, прокладку трубопровода и потребность в создании отверстий и штроб в строительных конструкциях. Хорошо спроектированный проект кондиционирования воздуха гарантирует учет всех аспектов системы, начиная от определения размеров оборудования и заканчивая установкой воздуховодов и вентиляционных отверстий. Это обеспечивает правильную установку системы, создавая желаемый уровень комфорта в помещении. В рамках проекта предоставляется детальный план шагов, материалов и затрат, связанных с установкой и последующим обслуживанием системы. Полный проект кондиционирования воздуха является ключевым элементом для успешной установки качественной системы, обеспечивая максимальную эффективность её работы в теч
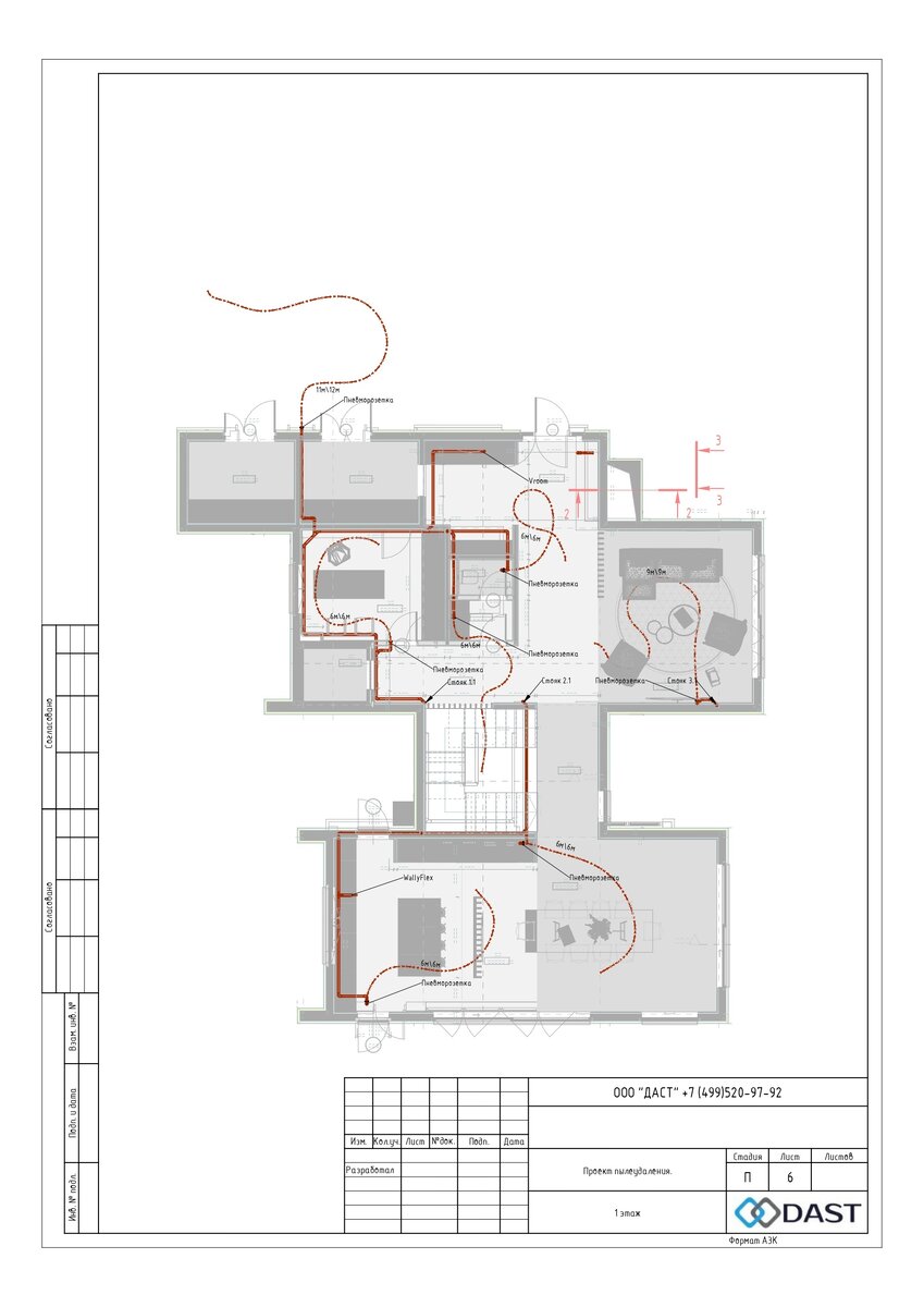
Проект ЦСП (центральной системы пылеудаления)
Проект ЦСП (центральной системы пылеудаления)

Встроенные пылесосы предоставляют удобное решение как для нового строительства и ремонта, так и для уже построенных помещений и квартир. Перед началом монтажа системы необходимо тщательно определить места установки пылесоса, пневморозеток, пневмосовков, место для выхода выхлопной трубы в атмосферу, прокладку трубопровода и потребность в создании отверстий и штроб в строительных конструкциях.

Хорошо спроектированный проект кондиционирования воздуха гарантирует учет всех аспектов системы, начиная от определения размеров оборудования и заканчивая установкой воздуховодов и вентиляционных отверстий. Это обеспечивает правильную установку системы, создавая желаемый уровень комфорта в помещении. В рамках проекта предоставляется детальный план шагов, материалов и затрат, связанных с установкой и последующим обслуживанием системы.

Полный проект кондиционирования воздуха является ключевым элементом для успешной установки качественной системы, обеспечивая максимальную эффективность её работы в течение многих лет.

********************************************************
Мы проектно-инженерная компания DAST. Занимаемся проектированием, установкой и обслуживанием инженерных и климатических систем. Проводим бесплатные консультации! Также мы реализуем поставку оборудования и комплектующих по всей России.
Сайт компании:
https://dast.ru/.
Каталог:
https://dast.ru/catalog/.
Услуги:
https://dast.ru/services/montazh/.
Почта: info@dast.ru
*******************************************************
Спасибо за прочтение! Если вам понравился материал, то можете поставить лайк и подписаться на канал, чтобы не упустить новые статьи. Также будем рады комментариям и с удовольствием на них ответим!
Читайте также: