Добавить в корзинуПозвонить
Найти в Дзене
INMYROOM

Удобная перепланировка двушки в типовой панельке серии I-515

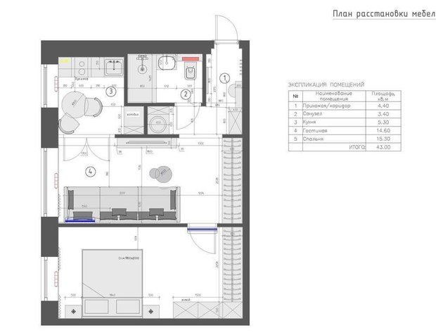
Рассказываем, как сделать маленькую двушку 43 кв. м комфортнее Дизайнеры из студии KS Interiors разработали проект двушки 43 кв. м в типовом панельном доме серии I-515 в Перово. Заказчикам квартира досталась от родителей: привычный район, близость к метро, вся инфраструктура под боком — они решили не продавать ее, а сделать ремонт, полностью обновив коммуникации и планировку. Авторы проекта рассказали подробности. Сложностью планировки было полное отсутствие мест для стирально-сушильного комплекса и отсутствие шкафа для одежды в прихожей. Для постирочной сделали шкаф со встроенной техникой между прихожей и гостиной. Решение нашлось таким образом: во всех типовых квартирах на кухню заходишь через узкий коридор из прихожей, этот вход перекрыли шкафом, а вход на кухню перенесли напрямую из гостиной. Также сделали небольшой шкаф в прихожей с торцевым вешалом для верхней одежды. Кухню оставили на месте. Благодаря переносу входа на кухню из гостиной (а не из коридора) мы смогли сделать ниш
Оглавление

Рассказываем, как сделать маленькую двушку 43 кв. м комфортнее

Дизайнеры из студии KS Interiors разработали проект двушки 43 кв. м в типовом панельном доме серии I-515 в Перово. Заказчикам квартира досталась от родителей: привычный район, близость к метро, вся инфраструктура под боком — они решили не продавать ее, а сделать ремонт, полностью обновив коммуникации и планировку. Авторы проекта рассказали подробности.

Перепланировка

Сложностью планировки было полное отсутствие мест для стирально-сушильного комплекса и отсутствие шкафа для одежды в прихожей. Для постирочной сделали шкаф со встроенной техникой между прихожей и гостиной. Решение нашлось таким образом: во всех типовых квартирах на кухню заходишь через узкий коридор из прихожей, этот вход перекрыли шкафом, а вход на кухню перенесли напрямую из гостиной. Также сделали небольшой шкаф в прихожей с торцевым вешалом для верхней одежды.

 📷
📷

 📷
📷
-4
-5
 📷
📷

Кухня

Кухню оставили на месте. Благодаря переносу входа на кухню из гостиной (а не из коридора) мы смогли сделать нишу, в которую убрали холодильник, тем самым расширив полезное пространство для готовки на основной зоне кухни. Газовую плиту оставили. Но чтобы узаконить нашу перепланировку, мы позаботились о том, чтобы кухня закрывалась стеклянными раздвижными перегородками (как требуют газовые службы, чтобы кухня была изолированной).

 📷
📷
 📷
📷
 📷
📷

Гостиная

Гостиная проходная, в ней есть зона ТВ и большой шкаф вдоль стены напротив окна.

Интересный факт, почему квартира в серых тонах. Семья живет на две страны и большую часть времени проводит на Кипре. Заказчица долго рассказывала, как устала жить в южных цветах: белые стены плюс яркая мебель и акценты. После палящего солнца и жары, приходя домой, она с ностальгией вспоминает о тенистом дворе родительского дома. Поэтому со словами «как же надоели белые стены!» заказчики в один голос попросили сделать интерьер в серых тонах.

 📷
📷
 📷
📷

Мебель в проекте под потолок, чтобы не разводить лишние пылесборники. Нет такого хозяина или клинингового сервиса, который идеально уберется на большой высоте на всю глубину шкафа… в лучшем случае, пыль вытрут на досягаемом расстоянии, а в труднодоступных углах на шкафу будет копиться пыль. Шкафы под потолок не дадут такому случиться.

 📷
📷

Спальня

В спальне разместили спальное место и большую систему хранения. Мебель в основном по индивидуальному проекту. Например, хозяин квартиры увлекается яхтенным спортом, для него надо предусмотреть много переставных полок для хранения спортивного инвентаря (вместо привычных вешал под деловые костюмы). Такую потребность как раз решает мебель индивидуального изготовления.

 📷
📷
 📷
📷
 📷
📷
 📷
📷

Санузел

В хрущевках обычно ставили сидячие ванны длиной 1,2 — 1,4 м. Это была одна из «болевых точек» проекта. Мы заменили микрованну на душевую правильных эргономичных размеров, а также добавили полки для хранения косметики сбоку от инсталляции и вместительные ящики под раковиной.

 📷
📷
 📷
📷
 📷
📷
 📷
📷

Бренды, представленные в проекте

Кухня
Напольное покрытие: плитка, Vitra
Мебель: стулья,
INMYROOM
Гарнитур: «Стильные Кухни»
Бытовая техника: Korting
Смесители: Omoikiri
Мойка: Omoikiri
Освещение:
Denkirs

Гостиная
Напольное покрытие: ламинат, Pergo
Мебель: шкаф и ТВ-тумба индивидуального производства, «Стильные Кухни»
Техника: ТВ, Samsung
Освещение:
Denkirs

Санузел
Мебель: «Стильные Кухни»
Сантехника: инсталляция, Tece; унитаз, BelBagno
Смесители: Grocenberg
Освещение:
Denkirs

Прихожая
Отделка: зеркало на заказ, «СтеклоЛидер»
Напольное покрытие: плитка, Italon
Мебель: «Стильные Кухни»

Спальня
Отделка: 3D-панели, ArtPole
Напольное покрытие: ламинат, Pergo
Мебель: кровать,
INMYROOM; матрас, Askona; шкафы, «Стильные Кухни»
Техника: ТВ, Samsung
Освещение:
Denkirs

Хотите, чтобы ваш проект был опубликован на INMYROOM? Присылайте фотографии интерьера на  wow@inmyroom.ru

Сейчас читают: