Добавить в корзинуПозвонить
Найти в Дзене

Старт продаж современного коттеджного поселка в Репино

Сегодня, в первый день весны, как раз подходящий день, чтобы рассказать вам о новом старте продаж коттеджного поселка в районе Репино. Это экологично закрытый поселок с "урбан виллами" (новое модное слово в недвижке). Урбан вилла сочетает в себе загородный дом с инфраструктурой городской жизни. Всего в проекте будет около 700 вилл. 1. Район и расположение 📍Ленинградская область, Выборгский р-н, пос. Ленинское 🚘 12 минут езды до Финского залива 🌲В окружении несколько природных парков и заказников, озера, заповедник Хаапала В проекте предусмотрена своя инфраструктура: Частные детский сад на 120 мест и начальная школа; магазин. 2. Транспортная доступность 🚗 До центра города без пробок до 45 мин (не по ЗСД) ✈️ До аэропорта 50 минут (по ЗСД) 🛣 Выезд на ЗСД в 16 минутах (18 км) 🌊 До финского залива 12 минут езды 3. Особенности ЖК 🔹Современный стиль экстерьера 🔹Архитектурная подсветка фасадов 🔹Коммуникации (газ, вода, электричество) будут заведены в дом 🔹Детские площадки 🔹Ресто

Сегодня, в первый день весны, как раз подходящий день, чтобы рассказать вам о новом старте продаж коттеджного поселка в районе Репино. Это экологично закрытый поселок с "урбан виллами" (новое модное слово в недвижке). Урбан вилла сочетает в себе загородный дом с инфраструктурой городской жизни.

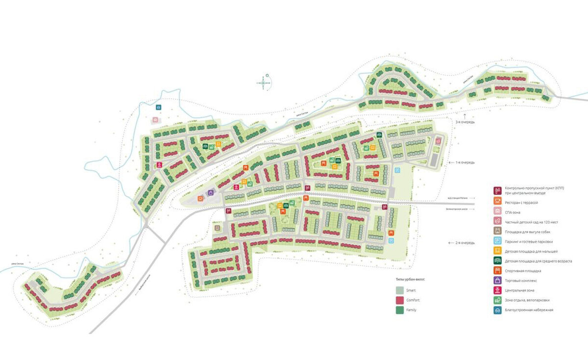
Всего в проекте будет около 700 вилл.

Ген план проекта
Ген план проекта

1. Район и расположение

📍Ленинградская область, Выборгский р-н, пос. Ленинское

🚘 12 минут езды до Финского залива

🌲В окружении несколько природных парков и заказников, озера, заповедник Хаапала

В проекте предусмотрена своя инфраструктура:

Частные детский сад на 120 мест и начальная школа; магазин.

2. Транспортная доступность

🚗 До центра города без пробок до 45 мин (не по ЗСД)

✈️ До аэропорта 50 минут (по ЗСД)

🛣 Выезд на ЗСД в 16 минутах (18 км)

🌊 До финского залива 12 минут езды

3. Особенности ЖК

Внутренний двор
Внутренний двор

🔹Современный стиль экстерьера

🔹Архитектурная подсветка фасадов

🔹Коммуникации (газ, вода, электричество) будут заведены в дом

🔹Детские площадки

🔹Ресторан

🔹Магазины

🔹Спа комплекс (планируются бани)

🔹Места для отдыха и удаленной работы, всесезонные беседки

🔹Площадки для прогулки и тренировки собак

🔹Футбольная и баскетбольная площадки

🔹В некоторых виллах будет эксплуатируемая кровля

🔹Собственный участок от 2,5 до 4.5 соток

🔹Перед домом будет зона для парковки 2 машин

🔹Своя управлющая компания

4. Цены

Вилла 98,8 кв.м. — от 18,2 млн

Вилла 124,2 кв.м — от 20,8 млн

Вилла 152,6 кв.м. — от 26,4 млн

Варианты оплаты:

- 100% оплата

- Ипотека — семейная, ИТ, гос.поддержка

- Несколько программ рассрочек от застройщика со взносом от 25%

5. Сроки реализации / надежность застройщика

У проекта будет 2 очереди: первый этап будет закончен осенью 2026 года, второй — в 2028 году.

У застройщика опыт в строительной сфере около 15 лет. В основном, компания была подрядчиком при застройке. Также есть несколько реализованных самостоятельных девелоперских проектов.

На мой взгляд, это отличная альтернатива для тех, кто хочет дом за городом в районе Репино/Комарово, недалеко от Финского залива. Ещё и действуют все льготные программы ипотеки!

Пишите с удовольствием отвечу на вопросы по проекту и помогу подобрать подходящий вариант.