Найти в Дзене

Дом для сдачи в аренду - какой он?

Если вы мечтаете построить дом для сдачи в аренду, то стоит задуматься о том, как создать жилье, которое будет не только привлекательным для потенциальных арендаторов, но и приносить стабильный доход. ⠀⠀⠀⠀ Каркасные дома становятся все более популярными среди инвесторов и вот почему: ⠀⠀⠀⠀ Как компания, специализирующаяся на строительстве каркасных домов, в этой статье мы хотим поделиться с вами ключевыми аспектами, которые следует учитывать при строительстве дома для сдачи в аренду. Ведь такой дом должен быть не только красивым и функциональным, но и эффективным с точки зрения дальнейшей эксплуатации и управления. ⠀⠀⠀⠀ 1. Проектирование
⠀⠀⠀⠀ Мы рекомендуем вам начать с определения потребностей вашего будущего арендатора - предусмотрите достаточное количество спален и ванных комнат, просторную гостиную и кухню. Например, если ваша целевая аудитория - семьи, обратите внимание на количество спален и ванных комнат, а также наличие пространства для отдыха и развлечений. Если вы ориентиру
Оглавление

Если вы мечтаете построить дом для сдачи в аренду, то стоит задуматься о том, как создать жилье, которое будет не только привлекательным для потенциальных арендаторов, но и приносить стабильный доход.

⠀⠀⠀⠀

Каркасные дома становятся все более популярными среди инвесторов и вот почему:

  • экологичность и качество материалов для строительства
  • надежность дома со сроком службы более 50 лет
  • относительно невысокая стоимость строительства
  • эффектный дизайн и стильная отделка

⠀⠀⠀⠀

Как компания, специализирующаяся на строительстве каркасных домов, в этой статье мы хотим поделиться с вами ключевыми аспектами, которые следует учитывать при строительстве дома для сдачи в аренду. Ведь такой дом должен быть не только красивым и функциональным, но и эффективным с точки зрения дальнейшей эксплуатации и управления.

⠀⠀⠀⠀

1. Проектирование
⠀⠀⠀⠀

Мы рекомендуем вам начать с определения потребностей вашего будущего арендатора - предусмотрите достаточное количество спален и ванных комнат, просторную гостиную и кухню.

Например, если ваша целевая аудитория - семьи, обратите внимание на количество спален и ванных комнат, а также наличие пространства для отдыха и развлечений. Если вы ориентируетесь на молодежные вечеринки - обязательно предусмотрите в дома большое количество спальных мест и функциональное пространство для отдыха внутри и снаружи дома.

⠀⠀⠀⠀

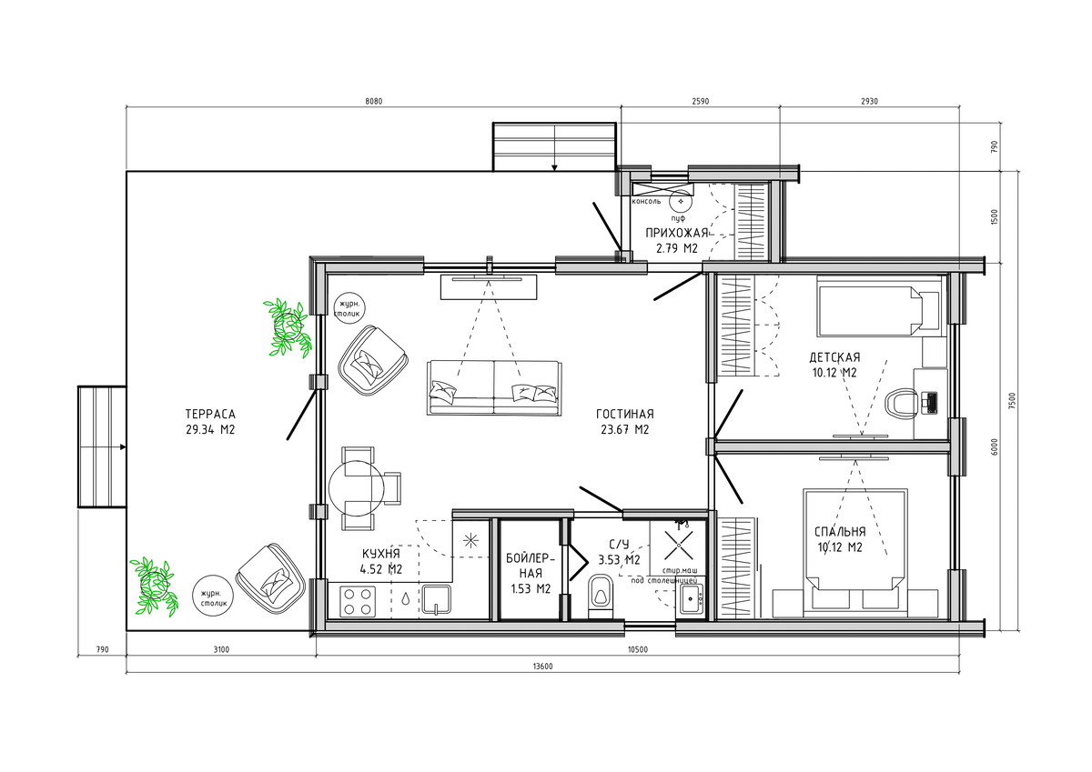
Так, мы строим дом для заказчика, который в дальнейшем будет сдавать его в аренду.

Площадь по периметру дома - 65 квадратных метров,
терраса - 30 квадратных метров.
Планировка барнхаса общей площадью 95м2, строится для последующей сдачи в аренду
Планировка барнхаса общей площадью 95м2, строится для последующей сдачи в аренду


Ключевое задание от заказчика: на наименьшей площади уместить две спальни, просторную кухню-гостиную, один санузел и техпомещение. Это наиболее популярный формат для потенциальной семьи, которая хочет снять домик на пару суток.

⠀⠀⠀⠀

2. Выбор качественных материалов

⠀⠀⠀⠀

Надежная и качественная отделка обеспечит долговечность вашему дому и уменьшит расходы на его обслуживание в будущем. При выборе материалов для строительства обращайте внимание на их прочность, теплоизоляционные свойства и долговечность.

Кроме того, интеграция современных технологий, таких как умный дом или энергоэффективные системы отопления и кондиционирования, поможет сделать ваш дом более привлекательным для арендаторов.

⠀⠀⠀⠀

3. Функциональность и удобство

⠀⠀⠀⠀

Этот пункт плавно вытекает из первого. Важно, чтобы ваш дом предлагал арендаторам все необходимые удобства для комфортного проживания. Это включает в себя оборудованную кухню с современной бытовой техникой, просторные гостиные и спальни, а также доступ к интернету и кабельному телевидению.

Разумеется, не забывайте и о внешнем благоустройстве участка - площадки для отдыха и барбекю, детская зона, парковка и зеленые насаждения создадут дополнительный комфорт для арендаторов.

А для своего удобства рассмотрите возможность установки современной бытовой техники, например, стиральной и посудомоечной машин.

⠀⠀⠀⠀

4. Управление и обслуживание

⠀⠀⠀⠀

Дом для сдачи в аренду предполагает регулярный присмотр и заботу о нем. Регулярная уборка, техническое обслуживание и оперативное реагирование на запросы арендаторов помогут поддерживать ваш дом в отличном состоянии и создадут благоприятную атмосферу для проживания.

⠀⠀⠀⠀

ДОМ ДЛЯ СДАЧИ В АРЕНДУ ОТ PINE BRICK

⠀⠀⠀⠀

В Шелково, в Ступинском районе, на данный момент мы строим барнхаус общей площадью 95м2, включая площадь по периметру в 65 квадратных метров и террасу в 30 квадратных метров.

Возведение свай для фундамента будущего дома началось 12 января текущего года, а уже 21 февраля закончили процесс возведения теплого контура дома.

Дом по этому типовому проекту и в комплектации "Теплый контур" стоит от 3 млн рублей. Если вы хотите построить дом для себя или выгодных инвестиций - мы предоставляем возможность проконсультироваться со специалистами PINE BRICK и даже посетить строящиеся объекты компании совершенно бесплатно.⠀⠀⠀⠀

Наши контакты:⠀⠀⠀

+7(499)714-8990
https://t.me/PineBrick
https://pinebrick.ru/