Добавить в корзинуПозвонить
Найти в Дзене

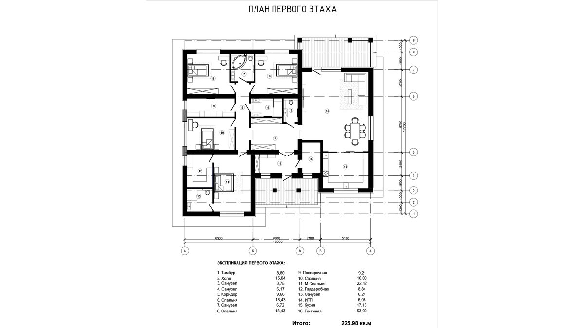
Расположение комнат в доме для максимального комфорта

При проектировании дома важно учитывать расположение комнат для обеспечения максимального комфорта и удобства. Вот несколько советов по оптимальной планировке: Спальня Спальня — это оазис покоя и уединения. Ее следует располагать вдали от шумных зон, таких как гостиная. Лучше, если панорамные окна выходят на умиротворяющий пейзаж, а из комнаты есть выход на террасу или в сад. Это создаст успокаивающую обстановку и обеспечит естественное освещение. Также стоит учитывать расположение кровати относительно сторон света: изголовье должно быть направлено на восток или юго-восток для получения утреннего солнечного света. Гостиная Гостиная — это место для общения и отдыха. Здесь часто делают большие панорамные окна, чтобы обеспечить захватывающий вид и доступ к свежему воздуху. Удачным выбором будет выход в сад или на террасу. Окна должны быть расположены так, чтобы в комнату попадал естественный свет в течение дня, а вечером создавалось приятное и уютное освещение. Кухня Кухня — это сердце до

При проектировании дома важно учитывать расположение комнат для обеспечения максимального комфорта и удобства. Вот несколько советов по оптимальной планировке:

Спальня

Спальня — это оазис покоя и уединения. Ее следует располагать вдали от шумных зон, таких как гостиная. Лучше, если панорамные окна выходят на умиротворяющий пейзаж, а из комнаты есть выход на террасу или в сад. Это создаст успокаивающую обстановку и обеспечит естественное освещение. Также стоит учитывать расположение кровати относительно сторон света: изголовье должно быть направлено на восток или юго-восток для получения утреннего солнечного света.

Гостиная

Гостиная — это место для общения и отдыха. Здесь часто делают большие панорамные окна, чтобы обеспечить захватывающий вид и доступ к свежему воздуху. Удачным выбором будет выход в сад или на террасу. Окна должны быть расположены так, чтобы в комнату попадал естественный свет в течение дня, а вечером создавалось приятное и уютное освещение.

Кухня

Кухня — это сердце дома, где готовят и принимают пищу. Ее расположение должно минимизировать маршруты от входной двери к местам хранения продуктов и от зоны готовки к обеденной зоне. Удобно, если из окна кухни хозяйка может наблюдать за играющими во дворе детьми или видеть вход на участок. Также важно обеспечить наличие достаточной естественной вентиляции, чтобы избежать запахов и влажности.

Кабинет

Кабинет требует тихого и комфортного пространства. Однако современные тенденции, особенно в скандинавском дизайне, предполагают размещение кабинета рядом с гостиной, разделяя их широкими стеклянными дверями. Это позволяет сохранить визуальное соединение, в то же время обеспечивая уединение. Кабинет должен быть расположен так, чтобы в течение дня в него попадал естественный свет, благотворно влияющий на концентрацию и продуктивность.

Записаться на первую бесплатную консультацию можно в WhatsApp или в Telegram.