Найти в Дзене
Берег Песочной

Наши дома

⭐ Двухэтажный дом БП-143

Утонченный и элегантный, минималистичный и современный, просторный и функциональный – именно такой дом мы спешим вам представить – БП-143.

◼ Двухэтажный

◼ Пятикомнатный с двумя санузлами

◼ Площадь более 127 кв. метров

Дом рассчитан на большую семью из 3-6 человек.

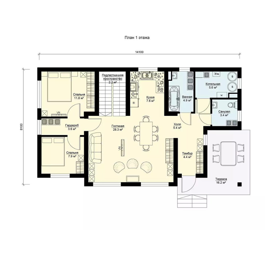
На первом этаже дома проектом предусмотрены:

✔ кухня-гостиная в центральной части дома;

✔ 2 спальни с гардеробом в левом крыле;

✔ санузел, ванная, котельная в правом крыле.

Из холла предусмотрен выход на угловую террасу.

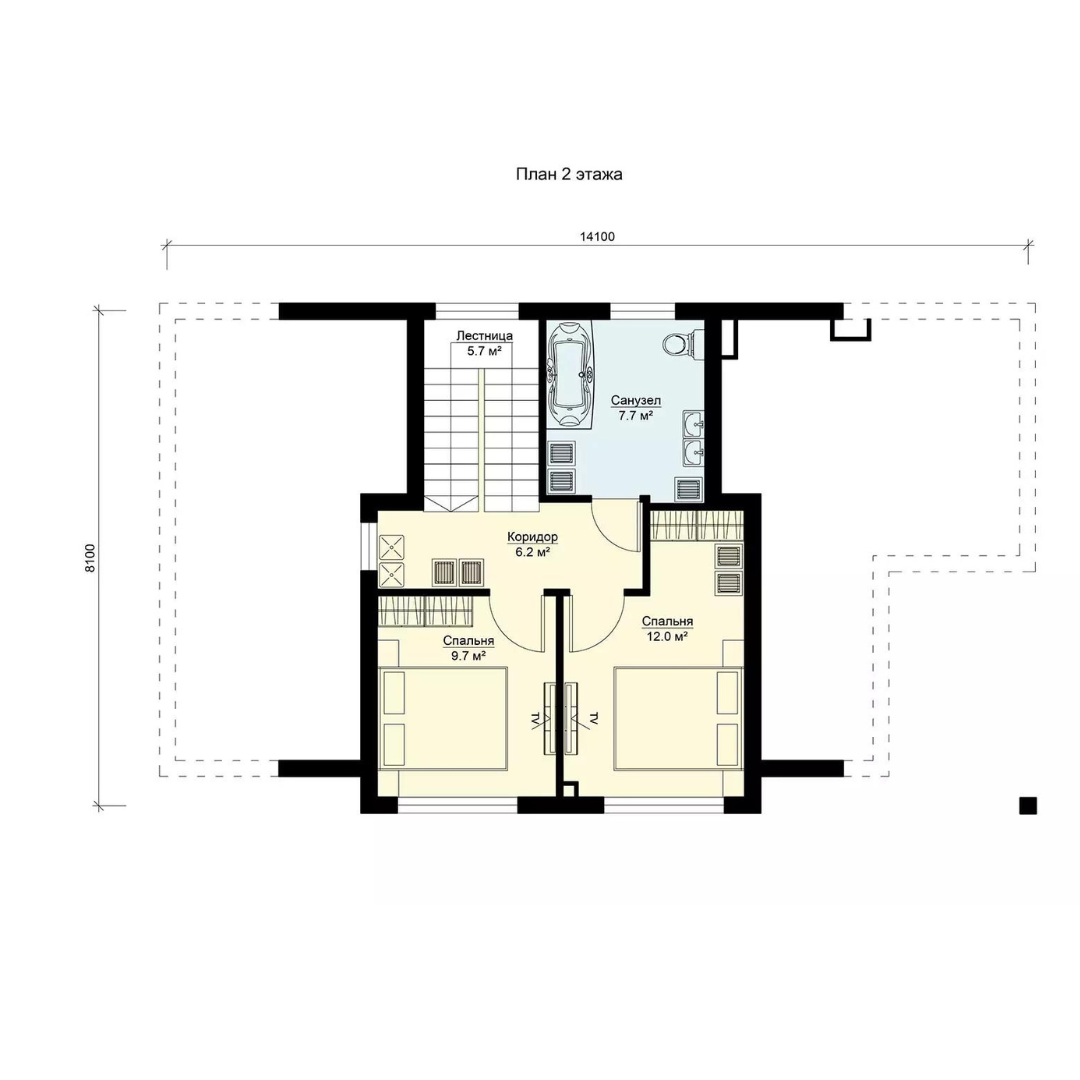
Второй этаж является мансардным и состоит из 2 спален и санузла.

Дом БП-143 доступен к заказу в комплектации «Теплый контур»:

◼ фундамент;

◼ коробка дома из панелей БЭНПАН+;

◼ утепленная кровля и входная дверь;

◼ окна ПВХ.

Во время строительства в дом заводятся:

◼ водопровод;

◼ канализация;

◼ электричество.

Газопровод проходит по границе участка.

❗ Строительство доступно в ипотеку, с использованием средств маткапитала.

Для выбора участка под строительство дома БП-143 приезжайте в КП «Берег Песочной». Запись по телефону: 📞 +7 (495) 927-93-28

#проектдома #подмосковье #коттедж #загородныйдом #деревянныйдом #коттедж #посёлок #живитедома #частныйдом #свойдом #уютныйдом #уютныйдомик #стройкадома #москвадома #строительстводомов