Добавить в корзинуПозвонить
Найти в Дзене

Как построить КАЧЕСТВЕННЫЙ каркасный дом?

Каркасные дома - популярный выбор для тех, кто ценит экологичность и энергоэффективность своего жилья. Однако как и любое долгосрочное вложение, строительство дома требует большого внимания к выбору строительной компании и процессу сотрудничества.⠀⠀⠀⠀ В нашем новом обзоре мы рассмотрим, какие критические моменты следует учитывать при выборе компании для строительства вашего каркасного дома. А также расскажем, по каким принципам работает команда PINE&BRICK и как строится процесс строительство дома нашей бригадой. ⠀⠀⠀⠀ О ПРОЕКТЕ ⠀⠀⠀⠀ Готовый проект данного выпуска - одноэтажный барнхаус по типовому проекту “Шамони” в коттеджном поселке Семеновское.
⠀⠀⠀⠀ Площадь по периметру - 80м² Площадь террасы - 20м² ⠀⠀⠀⠀ В доме две спальни, санузел, бойлерная, отдельная кухня и большая гостиная с выходом на собственную террасу. ⠀⠀⠀⠀ ХОД СТРОИТЕЛЬСТВА ДОМА⠀⠀⠀⠀ ⠀⠀⠀⠀ ⠀⠀⠀⠀ АВГУСТ 2023: Начали строительство дома, идет работа над свайным полем. ⠀⠀⠀⠀ СЕНТЯБРЬ 2023: Этап возведения каркаса будущего дома. ⠀⠀
Оглавление

Каркасные дома - популярный выбор для тех, кто ценит экологичность и энергоэффективность своего жилья. Однако как и любое долгосрочное вложение, строительство дома требует большого внимания к выбору строительной компании и процессу сотрудничества.⠀⠀⠀⠀

В нашем новом обзоре мы рассмотрим, какие критические моменты следует учитывать при выборе компании для строительства вашего каркасного дома. А также расскажем, по каким принципам работает команда PINE&BRICK и как строится процесс строительство дома нашей бригадой.

⠀⠀⠀⠀

О ПРОЕКТЕ

⠀⠀⠀⠀

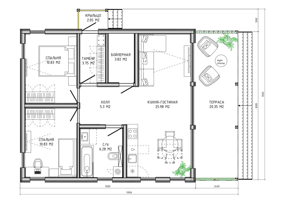
Готовый проект данного выпуска - одноэтажный барнхаус по типовому проекту “Шамони” в коттеджном поселке Семеновское.

⠀⠀⠀⠀

Площадь по периметру - 80м²
Площадь террасы - 20м²

⠀⠀⠀⠀

В доме две спальни, санузел, бойлерная, отдельная кухня и большая гостиная с выходом на собственную террасу.

Планировка каркасного дома по типовому проекту "Шамони" от PINE&BRICK
Планировка каркасного дома по типовому проекту "Шамони" от PINE&BRICK

⠀⠀⠀⠀

ХОД СТРОИТЕЛЬСТВА ДОМА⠀⠀⠀⠀

⠀⠀⠀⠀

  • Отделка: теплый контур.
  • Начало строительства - сентябрь 2023, завершение строительства - январь 2024.

⠀⠀⠀⠀

АВГУСТ 2023: Начали строительство дома, идет работа над свайным полем.

⠀⠀⠀⠀

СЕНТЯБРЬ 2023: Этап возведения каркаса будущего дома.

⠀⠀⠀⠀

ОКТЯБРЬ 2023: Монтаж утепления.

⠀⠀⠀⠀

НОЯБРЬ 2023: Процесс утепления каркаса дома и установка стеклопакетов.

⠀⠀⠀⠀

ДЕКАБРЬ 2023: Процесс внешней и внутренней отделки.

⠀⠀⠀⠀

11 ЯНВАРЯ 2024: Завершаются работы по внешней отделке дома, внутри идет монтаж коммуникаций.

⠀⠀⠀⠀

15 ЯНВАРЯ 2024: Строительство дома полностью завершено, объект передан заказчику.

⠀⠀⠀⠀

Оставайтесь с нами, чтобы быть в курсе последних новостей и советов по качественному строительству каркасных домов!

⠀⠀⠀⠀

Хотите записаться на бесплатную консультацию или экскурсию по нашим проектам?

Наши контакты:⠀⠀⠀

+7(499)714-8990
https://t.me/PineBrick
https://pinebrick.ru/