Добавить в корзинуПозвонить
Найти в Дзене
Блог самостройщика

Что нужно учесть при строительстве? Советы после строительства дома своими руками

Приветствую всех читателей! Мой дом находится на этапе отделки. Можно сказать, что на финише, в предчистовых работах. Большую часть работ делал самостоятельно и в чем-то могу дать советы, чтобы вы могли избежать ошибок или сделать все с меньшими потерями времени и средств. Если вы решили не покупать, а именно строить дом, то нужно определиться, будете делать это самостоятельно или силами наемных бригад. Сразу скажу, что самостоятельно – это точно долгострой. Рассчитывайте минимум лет на пять с почти ежедневном присутствии на стройке. Будет ли у Вас столько времени, сил и мотивации? Нужно взвешивать ситуацию и ваши возможности. Но даже если строить будут бригады, то ваше ежедневное присутствие на объекте – залог качественной стройки, отсутствия лукавства или обмана (может и воровства стройматериалов). Во все техпроцессы и технологии, нужно будет погружаться и знать все лучше самих строителей и мастеров. Перед началом строительства нужен проект. Я делал его сам в SketchUp с учетом станда

Приветствую всех читателей!

Мой дом находится на этапе отделки. Можно сказать, что на финише, в предчистовых работах. Большую часть работ делал самостоятельно и в чем-то могу дать советы, чтобы вы могли избежать ошибок или сделать все с меньшими потерями времени и средств.

Если вы решили не покупать, а именно строить дом, то нужно определиться, будете делать это самостоятельно или силами наемных бригад. Сразу скажу, что самостоятельно – это точно долгострой. Рассчитывайте минимум лет на пять с почти ежедневном присутствии на стройке. Будет ли у Вас столько времени, сил и мотивации? Нужно взвешивать ситуацию и ваши возможности.

Но даже если строить будут бригады, то ваше ежедневное присутствие на объекте – залог качественной стройки, отсутствия лукавства или обмана (может и воровства стройматериалов). Во все техпроцессы и технологии, нужно будет погружаться и знать все лучше самих строителей и мастеров.

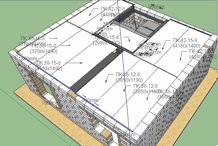
Перед началом строительства нужен проект. Я делал его сам в SketchUp с учетом стандартных размеров плит перекрытий и техрешений. Думал, что этого хватит. Но не учел, что проект нужно начинать с проекта лестницы на второй этаж. И она получилась не такой удобной, как хотелось. Вообще, лучше приобрести проект и все в нем перепроверить. Еще лучше приобрести тот проект, по которому уже неоднократно строили дома и проектировщик учел все мелкие ошибки.

Иногда у строительных компаний имеются такие проверенные годами и десятками построенных домов проекты.
-2

Если не знаете несущую способность своих грунтов, то многие закладывают в проект фундамент-плиту. Если у Вас не торф под участком, конечно. При этом только забивные сваи. Установить опалубку и сделать армирование плиты можно самому, только заранее проложите коммуникации под фундаментом, лучше с запасом по выводу (кабели с разных сторон, вода и т.п.)

-3

Закупайте материал для стен зимой – это дешевле, есть скидки. Или оплачивайте зимой и материал будет находиться на хранении до весны. Но я так не делал. Покупал партиями, когда мне нужно и завозил с доставкой от поставщика (принимал в назначенное время). Блоки ставили сразу в нужное место внутри дома и на перекрытие. Не пришлось поднимать их или переносить за 20 метров.

-4

Какой стеновой материал выбрать – советы не даю. Но я выбрал газобетон. Это наиболее технологичный материал. Посоветую одно. Если нет газа, то считайте теплопотери и закладывайте в проект необходимую толщину и плотность стен. Утеплять потом дом – это все-равно, что построить новые стены и по трудоемкости и по затратам.

В идеале, коробку дома лучше возвести с крышей за один сезон. Поэтому, начинать нужно ранней весной или сделать фундамент в предыдущий сезон. Один вы точно не успеете построить коробку, поэтому будет лучше, если крышу вам построит бригада. В сезон кровельщиков не найти, договариваться с ними нужно заранее. Стены из газобетона оставлял без крыши на одну зиму.

-5

При строительстве из ячеистых бетонов (газо и пенобетон, полистриролбетон) в первый год нельзя штукатурить дом. Как изнутри, так и снаружи. Эти материалы теряют влагу, дают усадку и вся отделка потрескается.

-6

Долго и сложно разбираться в коммуникациях. Я не стал погружаться в этот вопрос и на обвязку системы отопления нанимал специалистов. Это гарантия, что не наделаете ошибок. Но в качество их работ нужно погружался.

Электрику делал совместно. Я штробил, закупал материалы, электрик делал проект и монтировал кабель, щиты. Под ключ не отдавал эти коммуникации и здесь удалось немного сэкономить.

-7

Для водоснабжения и канализации так же все с моей работой: септик и кессон делал с экскаваторщиком, который знал что и как лучше. А я был как подсобный рабочий.

Если нет газа и живете западнее Челябинска, то смело ставьте воздушный тепловой насос. Этот способ отопления дешевле, чем отопление от электричетва напрямую в три раза.

-8

Штукатурка. Это кропотливая работа, не всем нравится. Но мне, как говорят, зашло. Поэтому, заканчиваю штукатурить дом с суммарной площадью работ около 300 м2. Штукатурил и по маякам и под правило. Все технологии показаны в роликах в ютубе. В этих работах нужен будет осушитель воздуха, если делать будете зимой.

Впереди работы с кафелем и керамогранитом. Опыт тоже получил при отделке котельной.

-9

Ну, и самое главное – финансы на все это. Кто-то говорит: было бы желание, деньги найдутся. У меня получилось именно так. Но без 2-3 млн. в наше время коробку дома не построить. Недостроенные стены – это еще не дом, просто потраченные деньги. Учитывайте это.

Это далеко не все советы, которые можно дать. Так, основное, что вспомнил. Какие бы вы дали советы после строительства своего дома - напишите в комментариях.