Добавить в корзинуПозвонить
Найти в Дзене

Гостевой дом баня 32 кв.м., энергоэффективная экология в полной красе

Небольшой анонс, небольшого домика. Энергоэффективная экология в полной красе.
Это гостевой дом-баня, прекрасно подойдет в виде дачи, гостевого дома-бани, как первое строение на участке, так же в виде домов под сдачу для баз отдыха, кемпингов и т. п.
Он есть в двух вариантах исполнения, с сауной и без.
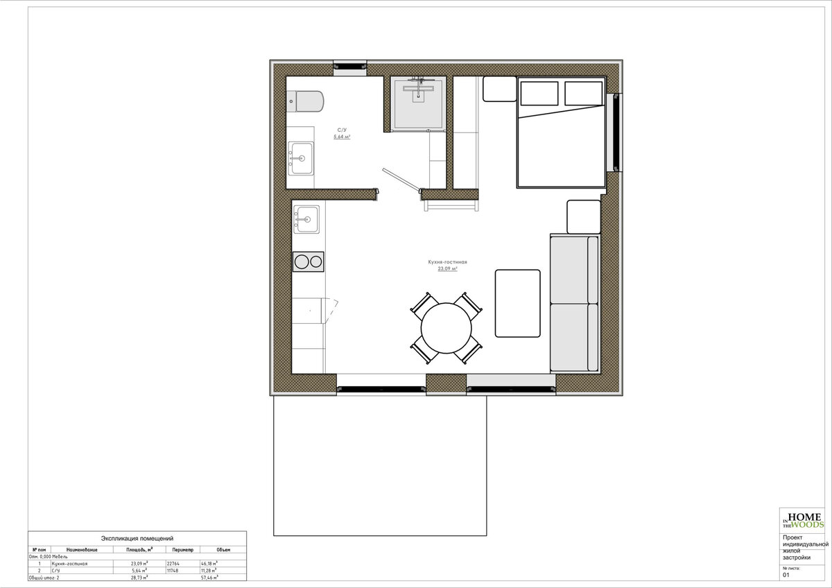
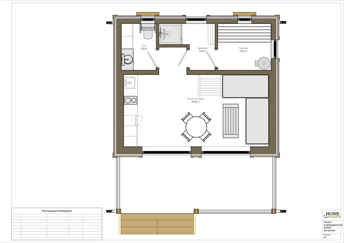
С сауной это 32 кв. м., он на 80 см шире и без сауны этот домик 28 кв. м.
С сауной он получается в формате 2+2, без сауны в формате 2+4, что в принципе подойдет даже для большой семьи. Дом уже на производстве, почти готов к монтажу, осталось сделать внутреннюю отделку в модуле, который поедет на монтаж целиком. В этом модуле располагаются все мокрые зоны, то есть санузел, душевая и парилка. Модуль уже будет полностью со всей отделкой, включая теплые полы, плитку, отделку стен, потолка и частично будет стоять сантехника и мебель. Дом производит компания "ГРИНКУБ", они строят прекрасные дома из соломенных панелей, это двойной каркас, ржаная прессованная солома, глиняная штукатурка внутри
Внешний вид гостевого дома бани 32 кв.м.
Внешний вид гостевого дома бани 32 кв.м.

Небольшой анонс, небольшого домика. Энергоэффективная экология в полной красе.
Это гостевой дом-баня, прекрасно подойдет в виде дачи, гостевого дома-бани, как первое строение на участке, так же в виде домов под сдачу для баз отдыха, кемпингов и т. п.
Он есть в двух вариантах исполнения, с сауной и без.
С сауной это 32 кв. м., он на 80 см шире и без сауны этот домик 28 кв. м.
С сауной он получается в формате 2+2, без сауны в формате 2+4, что в принципе подойдет даже для большой семьи.

Дом уже на производстве, почти готов к монтажу, осталось сделать внутреннюю отделку в модуле, который поедет на монтаж целиком. В этом модуле располагаются все мокрые зоны, то есть санузел, душевая и парилка. Модуль уже будет полностью со всей отделкой, включая теплые полы, плитку, отделку стен, потолка и частично будет стоять сантехника и мебель.

Дом производит компания "ГРИНКУБ", они строят прекрасные дома из соломенных панелей, это двойной каркас, ржаная прессованная солома, глиняная штукатурка внутри и известковая снаружи. Это один из самых экологичных и энергоэффективных видов домов. Зимой не нужно вливать деньги в отопление, а летом в доме не нужен кондиционер.

Главная

Дом уже почти готов, полторы недели назад панели начали делать на производстве, сейчас все панели сделаны, ребята приступают к отделке и разводке коммуникаций.

Внешний вид это глиняная штукатурка, плюс отделка деревом, на кровле скорее всего используем профлист, с высокой волной.

Небольшой анонс по интерьерке!

Там тоже все будет экологичным, чисто дерево, натуральные ткани и будет еще тростник, но это уже позже покажу, когда дом будет собран, надеюсь что 23 февраля мы там уже попаримся.)

Вид на кухонную зону
Вид на кухонную зону

Но об интерьерах этого домика я расскажу в следующей статье.

Почти все мои проекты размещаются на этом канале, так что если не хотите пропустить новинки, подписывайтесь!

Home in the Woods готовые проекты домов Казань