Добавить в корзинуПозвонить
Найти в Дзене

Белая квартира в современном стиле со сложной планировкой

Белая кухня, белая спальня, белая ванная в двухкомнатной квартире в современном стиле Привет! Меня зовут Карен Карапетян, я — архитектор и интерьерный дизайнер. Сегодня расскажу про интерьер, который мы спроектировали и реализовали в Москве, про него даже рассказали в журнале Elle Decoration. Это необычная квартира с острыми углами и большими окнами на высоком этаже, основной задачей для нас было сделать место для наблюдения за городом. Планировка с углами в 70 градусов с точки зрения компоновки неудачная, но у нас получилось максимально использовать пространство: есть и хранение, и место для отдыха, и рабочий стол.
Еще в квартире не открываются окна, застройщик сделал только небольшие проветриватели под потолком. Чтобы в квартире был свежий воздух, мы разработали проект вентиляции и кондиционирования. Мы сделали дизайн-проект, зафиксировали бюджет и реализовали интерьер. Корпусную мебель спроектировали и изготовили специально для этой квартиры.
Посмотреть подробную смету этой кварт
Оглавление

Белая кухня, белая спальня, белая ванная в двухкомнатной квартире в современном стиле

Привет! Меня зовут Карен Карапетян, я — архитектор и интерьерный дизайнер. Сегодня расскажу про интерьер, который мы спроектировали и реализовали в Москве, про него даже рассказали в журнале Elle Decoration.

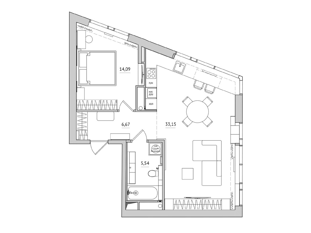
Это необычная квартира с острыми углами и большими окнами на высоком этаже, основной задачей для нас было сделать место для наблюдения за городом. Планировка с углами в 70 градусов с точки зрения компоновки неудачная, но у нас получилось максимально использовать пространство: есть и хранение, и место для отдыха, и рабочий стол.

Еще в квартире не открываются окна, застройщик сделал только небольшие проветриватели под потолком. Чтобы в квартире был свежий воздух, мы разработали проект вентиляции и кондиционирования.

Мы сделали дизайн-проект, зафиксировали бюджет и реализовали интерьер. Корпусную мебель спроектировали и изготовили специально для этой квартиры.

Посмотреть подробную смету этой квартиры вы можете на нашем сайте
Alexander Tischler.

Планировка двухкомнатной квартиры площадью 59 квадратных метров

Кухня-гостиная в современном интерьере

Центр кухни-гостинной — слэб кварцита Патагония с полупрозрачными слоями кварца, за ним светодиодная подсветка, вечером камень превращается в эффектный светильник. В цветах кварцита выполнена и вся комната: бронзовые фасады шкафов, керамогранит с текстурой мрамора Atlas Concorde и белый глянцевый кухонный гарнитур.

В прихожей потолок опустили на 40 см, за ним спрятана система вентиляции и кондиционирования, воздух поступает с технического балкона. В прихожей в шкафу с зеркальными фасадами будет храниться верхняя одежда, на его задней стенке расположены люки доступа к электрическому и слаботочному щитам.

Белая кухня с глянцевыми фасадами
Белая кухня с глянцевыми фасадами

Идеальной глянцевости на фасадах мы добились за счет осветленного глянцевого стекла. Большинство фасадов открываются от нажатия, холодильник можно открыть с помощью минималистичной профиль-ручки.

Белая кухня со столешнице у окна
Белая кухня со столешнице у окна

Над формой кухни мы работали, отталкиваясь от желания хозяйки сделать у окна место для наблюдения за городом. Мойку расположили напротив окна, а столешница переходит в рабочий стол и место для завтраков.

Белая кухня с видом на город
Белая кухня с видом на город

Большой шкаф в гостиной с глянцевыми фасадами
Большой шкаф в гостиной с глянцевыми фасадами

Телевизор на фальш-фасаде шкафа
Телевизор на фальш-фасаде шкафа

Одна из планировочных задач кухни-гостиной — повесить телевизор так, чтобы его было видно с любого ракурса. Вместе с этим мы понимали, что надо организовать как можно больше мест для хранения. В итоге телевизор мы повесили на фальш-фасад шкафа. За телевизором — место для развески несезонной одежды.

Угловой диван в гостиной
Угловой диван в гостиной

Шкаф для посуды и декора с подсветкой
Шкаф для посуды и декора с подсветкой

Шкаф для посуды и декора с подсветкой
Шкаф для посуды и декора с подсветкой

Застройщик предполагал раздельные кухню и гостиную, мы их объединили и не стали никак отделять от прихожей, уже у входной двери открывается вид на кухню-гостиную: былые стол и кресла, шкаф для посуды с фасадами из матового бронзового стекла.

Шкаф в этом месте стоит не случайно, за ним застройщик оставил глухую часть остекления. Мы закрыли ее шкафом, тем самым добавили места для хранения посуды и декора

Тумба с рифлеными фасадами с прихожей
Тумба с рифлеными фасадами с прихожей

Тумба с рифлеными фасадами в прихожей со скрытым ящиком
Тумба с рифлеными фасадами в прихожей со скрытым ящиком

Круглое зеркало с подсветкой в прихожей
Круглое зеркало с подсветкой в прихожей

Шкаф для одежды с зеркальными фасадами в прихожей
Шкаф для одежды с зеркальными фасадами в прихожей

Дизайн двухкомнатной квартиры в современном стиле с намеками на классику

Мы отошли от классического дизайна интерьера, с которым к нам пришла заказчица: отказались от строгой симметрии и декора стен. Несмотря на асимметричность и даже «случайную» разбивку зеркальных фасадов дизайн получился цельным по цветам и текстурам: каждая деталь интерьера повторяется.

Круглые зеркала и косметический столик в спальне
Круглые зеркала и косметический столик в спальне

Дизайн белой спальни

Спальня в этой квартире не прямоугольная, как и кухня-гостиная. Углы спальни повторяются в навесном потолке, за которым спрятаны вентиляционные решетки и подсветка.

Косметический столик с ящиками в спальне
Косметический столик с ящиками в спальне

Светильники над подвесной прикроватной тумбой
Светильники над подвесной прикроватной тумбой

Асимметричность комнаты поддерживается крупными зеркалами над изголовьем. Рядом с ними — подвесной косметический столик, а с другой стороны кровати над тумбой — светильники из латуни.

Шкаф для одежды с зеркальными фасадами в спальне
Шкаф для одежды с зеркальными фасадами в спальне
ТВ-тумба и стеновые панели в спальне
ТВ-тумба и стеновые панели в спальне

Дизайн ванной комнаты в светлых оттенках

В этом интерьере мы сочетали белый цвет с бронзовыми и латунными элементами. Эти цвета соединяются в мозаике в ванной комнате из мрамора и алюминия под латунь.

Столешница со встроенной раковиной в ванной
Столешница со встроенной раковиной в ванной

Пенал для стиральной и сушильной машин в ванной
Пенал для стиральной и сушильной машин в ванной

В ванной мы поставили пенал со стиральной и сушильной машиной, закрыли их фасадами, выполненными так же, как и кухня: основа из МДФ в белой эмали, а сверху — осветленное глянцевое стекло.

Большая ванная
Большая ванная

Шкаф с зеркалом в ванной
Шкаф с зеркалом в ванной

Дополнительные места для хранения есть в тумбе под раковиной, за зеркалом и над инсталляцией. Ребристые фасады повторяют фасады тумбы в прихожей, на обоих — ручки из текстильных петель. Для этой ванной мы решили использовать шторку из уличной водоотталкивающей ткани.

Таким мы презентовали интерьер на этапе проектирования: все предметы и материалы были выбраны. Тщательная проработка деталей позволила нам реализовать интерьер таким, каким мы его представили хозяйке.

Смету этого проекта а также другие проекты вы можете посмотреть на нашем сайте Alexander Tischler.

Скоро я выпущу обзор этого интерьера, следите за обновлениями!

Ранее я показывал другие наши готовые интерьеры:

Трехкомнатная квартира с мастер-спальней и кухонным островом (видео)

Темная квартира с рабочим столом и гардеробной (видео)