Добавить в корзинуПозвонить
Найти в Дзене

Зачем нужен выезд на участок?

Когда владелец смотрит на свой участок, то видит свободное пространство, на котором он будет реализовывать мечту о собственном доме.
 
Мы смотрим на ваши владения немного иначе.
- Сразу же оцениваем потенциальное пятно застройки с учетом нормативных требований и возможности размещения в нем нужных вам объектов.
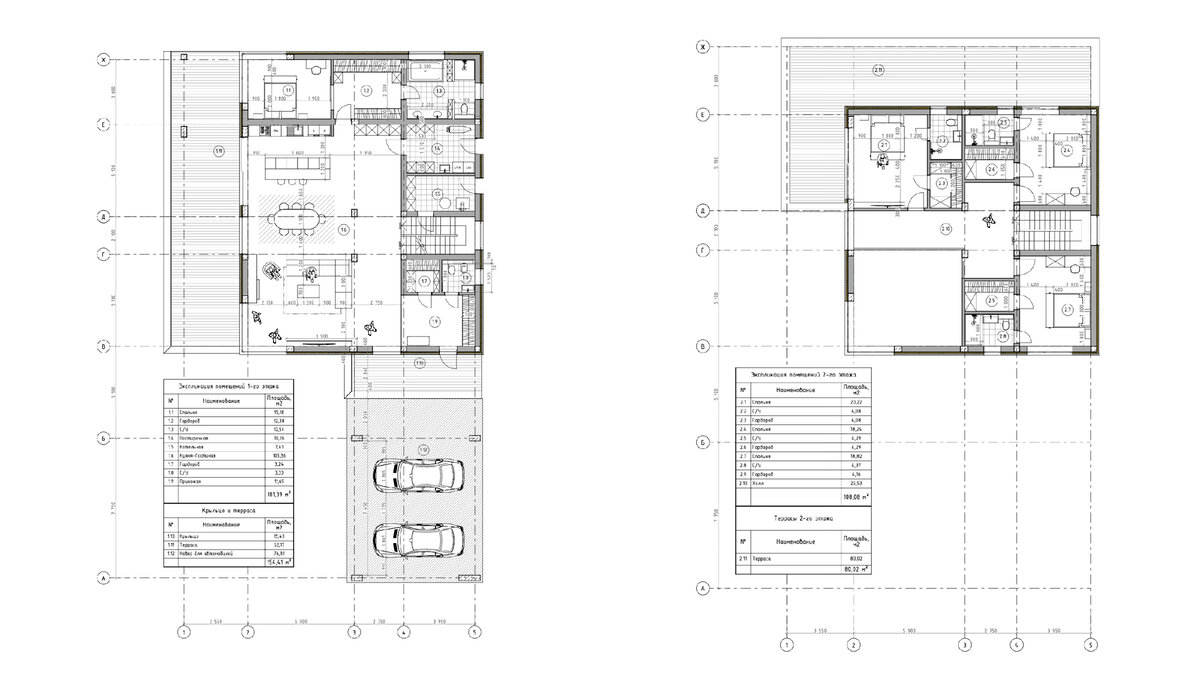
Этот пост мы сопроводили реальной схемой привязки дома к границам участка одного из клиентов. Совсем недавно мы показывали вам проект  двухэтажного дома с плоской кровлей и четырьмя мастер-спальнями, именно он будем размещен на участке треугольной формы. 
- Изучаем особенности рельефа и то, как они отразятся на архитектурных решениях, которые будут применены при проектировании вашего дома. Помните объект, который был возведен на свайно-ростверковом фундаменте из-за перепада на участке? Самый существенный перепад земли, на нашей практике, составлял 6 метров. Но вид, который открывался с участка, с лихвой компенсировал эту особенность и траты, которые он за собой повлек.
- Н

Когда владелец смотрит на свой участок, то видит свободное пространство, на котором он будет реализовывать мечту о собственном доме.

Мы смотрим на ваши владения немного иначе.
- Сразу же оцениваем потенциальное пятно застройки с учетом нормативных требований и возможности размещения в нем нужных вам объектов.
Этот пост мы сопроводили реальной схемой привязки дома к границам участка одного из клиентов. Совсем недавно мы показывали вам проект  двухэтажного дома с плоской кровлей и четырьмя мастер-спальнями, именно он будем размещен на участке треугольной формы. 
- Изучаем особенности рельефа и то, как они отразятся на архитектурных решениях, которые будут применены при проектировании вашего дома. Помните объект, который был возведен на свайно-ростверковом фундаменте из-за перепада на участке? Самый существенный перепад земли, на нашей практике, составлял 6 метров. Но вид, который открывался с участка, с лихвой компенсировал эту особенность и траты, которые он за собой повлек.
- Наличие и расположение коммуникаций.
- Подъездные пути. За время строительства на объекте побывает немало габаритной техники, узкие дороги, сложности при въезде на участок могут привести к дополнительным тратам.
- Потенциальное место для размещения строительного городка и хранения материалов.
- И другие нюансы.

Все эти факторы для наших специалистов выстраиваются в план работы над возведением вашего дома. Выезд на участок - один из важных этапов, который позволяет вам убедиться в компетенции подрядчика. А для нас служит отправной точкой перед началом работы.