Найти в Дзене
DARIA ELNIKOVA INTERIORS

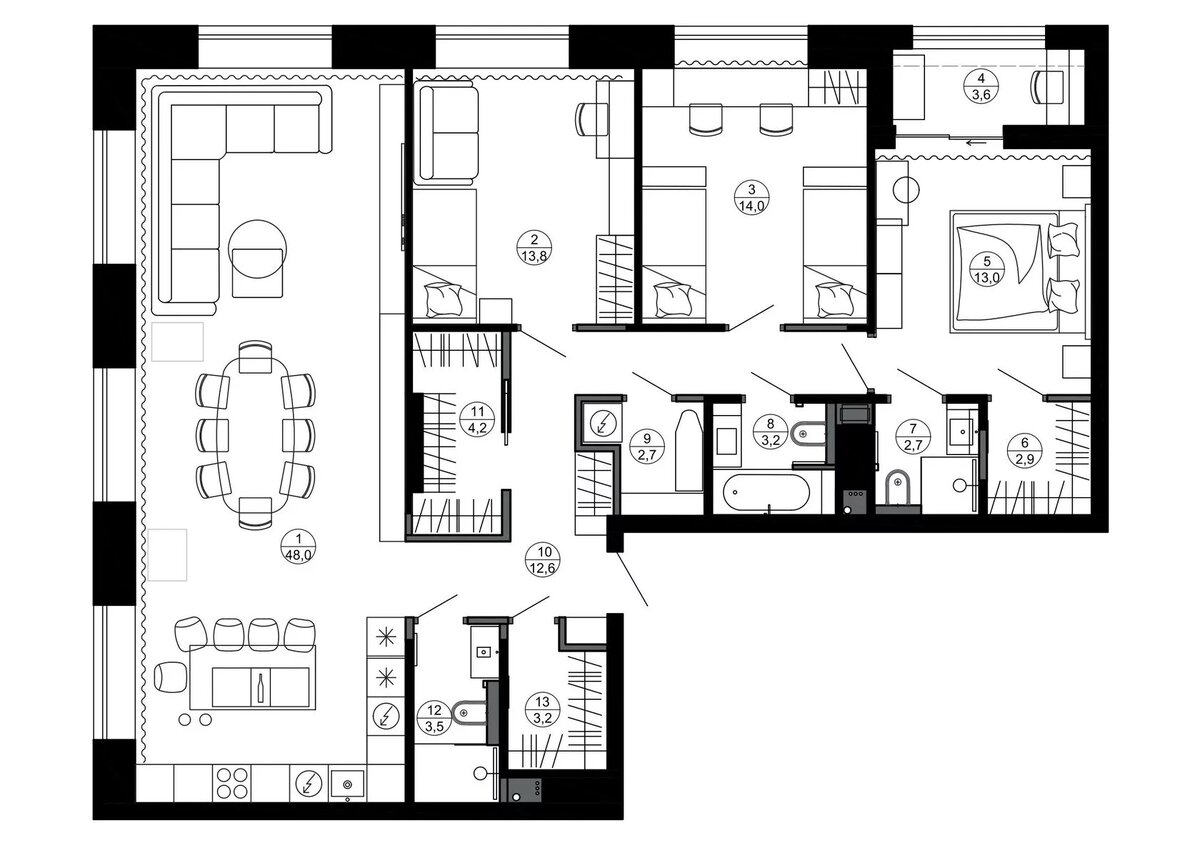
Квартира 130м² для большой семьи в ЖК Серебряный парк, г.Москва

Наши заказчики это семья из пяти человек: супруги, сын-школьник начальных классов и две дочки-дошкольницы, в семье также есть питомец - лабрадор. Главе семьи было довольно сложно найти планировку, которая подходила бы для такой большой семьи. Выбор пал на ЖК Бизнес-класса Серебряный парк.
Особенностью выбранной квартиры было наличие отделки White Box, с одной стороны, - это позволяет быстрее реализовать объект, а с другой стороны накладывает некие ограничения. В данном случае нам повезло с планировочным решением от застройщика компании Инград. Оно было достаточно продуманным. Конечно, квартиру требовалось кастомизировать, но в меньшей степени, чем обычно. Из изменений: мы добавили несколько гардеробных, благо наличие большого холла позволило нам это сделать без труда, а также немного увеличили площадь санузла, за счет использования коридорного пространства. В спальне заказчика мы добавили гардеробную и заменили балконную дверь на раздвижную перегородку.
Мы скорректировали часть элек

Наши заказчики это семья из пяти человек: супруги, сын-школьник начальных классов и две дочки-дошкольницы, в семье также есть питомец - лабрадор. Главе семьи было довольно сложно найти планировку, которая подходила бы для такой большой семьи. Выбор пал на ЖК Бизнес-класса Серебряный парк.

Особенностью выбранной квартиры было наличие отделки White Box, с одной стороны, - это позволяет быстрее реализовать объект, а с другой стороны накладывает некие ограничения.

В данном случае нам повезло с планировочным решением от застройщика компании Инград. Оно было достаточно продуманным. Конечно, квартиру требовалось кастомизировать, но в меньшей степени, чем обычно.

-2

Из изменений: мы добавили несколько гардеробных, благо наличие большого холла позволило нам это сделать без труда, а также немного увеличили площадь санузла, за счет использования коридорного пространства. В спальне заказчика мы добавили гардеробную и заменили балконную дверь на раздвижную перегородку.

Мы скорректировали часть электрики в соответствии с новой планировкой, но 90% было сохранено, что тоже сэкономило бюджет заказчиков и время работы строительной бригады.
Таким образом получилось максимально удобное пространство, соответствующее пожеланием наших заказчиков.

Стиль мы с заказчиками выбрали современный. Основа интерьера — это функциональность, современные материалы отделки и конечно же эстетика. Цветовое решение преимущественно выбрано светлое – сочетание серых и бежевых оттенков, из акцентов - коричневый, травяной, темно-серый, синий и розовый цвета в детских. Основное покрытие стен – краска, в качестве декора – панели (мягкие, деревянные, эмалированные), декоративная штукатурка. На полу паркетная доска и керамогранит.

Прихожая и коридор.

Лаконичная входная зона, отделка стены - декоративная штукатурка.
Лаконичная входная зона, отделка стены - декоративная штукатурка.
При входе банкетка с хранением, мягкие стеновые панели с крючками и гардеробная за дверью.
При входе банкетка с хранением, мягкие стеновые панели с крючками и гардеробная за дверью.
Консольный столик с зеркалом размещены на торце распашного шкафа.
Консольный столик с зеркалом размещены на торце распашного шкафа.
Коридор, отделка стен краска, на полу паркетная доска, двери со скрытыми наличниками в эмали в тон стен.
Коридор, отделка стен краска, на полу паркетная доска, двери со скрытыми наличниками в эмали в тон стен.

Вид на кухню-гостиную от входа в квартиру.
Вид на кухню-гостиную от входа в квартиру.

Кухня-гостиная.

Угловой диван в гостиной, раскладной, со спальным местом 140х200см.
Угловой диван в гостиной, раскладной, со спальным местом 140х200см.
Зона ТВ с хранением, тумба и открытые полки с подсветкой.
Зона ТВ с хранением, тумба и открытые полки с подсветкой.
Столовая зона размещена между кухней и местом для отдыха.
Столовая зона размещена между кухней и местом для отдыха.
Вид от столовой зоны на зону ТВ.
Вид от столовой зоны на зону ТВ.
Кухня с островом, фасады кухни в эмали, стеновая панель и столешницы кварц светлый мрамор.
Кухня с островом, фасады кухни в эмали, стеновая панель и столешницы кварц светлый мрамор.
Вид от столовой зоны на гостиную.
Вид от столовой зоны на гостиную.

Обеденная группа на 8 мест.
Обеденная группа на 8 мест.
Вид на обеденную группу и кухню.
Вид на обеденную группу и кухню.

Кухня с островом на 5 мест.
Кухня с островом на 5 мест.
Кухонный остров с хранением и винным холодильником.
Кухонный остров с хранением и винным холодильником.
Вид из кухни-гостиной на прихожую.
Вид из кухни-гостиной на прихожую.

Гостевой санузел.

Тумба в шпоне американского ореха, столешница акрил.
Тумба в шпоне американского ореха, столешница акрил.
Сантехника черная матовая.
Сантехника черная матовая.
Вид из душевой.
Вид из душевой.
Отделка стен и пола керамогранит и керамическая плитка.
Отделка стен и пола керамогранит и керамическая плитка.
Душевая в гостевом санузле. Может использоваться как лапкомойка для домашнего питомца.
Душевая в гостевом санузле. Может использоваться как лапкомойка для домашнего питомца.

Детская мальчика.

Комната старшего сына заказчиков решена в светлых тонах с аккуратными цветовыми акцентами.

Место для сна и диванчик для чтения. Карта мира на стене работает в интерьере как ночник и арт-объект.
Место для сна и диванчик для чтения. Карта мира на стене работает в интерьере как ночник и арт-объект.

Просторное хранение и аккуратная рабочая зона.
Просторное хранение и аккуратная рабочая зона.

Кровать под матрас 100х200см и подвесная тумба изготовлены на заказ, как и световое панно на стене.
Кровать под матрас 100х200см и подвесная тумба изготовлены на заказ, как и световое панно на стене.
Рабочее место: стол в шпоне ясеня, стеновая панель и стеллаж с подсветкой.
Рабочее место: стол в шпоне ясеня, стеновая панель и стеллаж с подсветкой.
Рабочее место школьника.
Рабочее место школьника.

Детская девочек.

Эта комната практически симметрична и предназначена для двух сестрёнок-погодок. Мебель размещена так, чтобы у каждой было своё пространство.

Спальное место - кровать 90х200см с мягким изголовьем и стеллажом, далее рабочая зона.
Спальное место - кровать 90х200см с мягким изголовьем и стеллажом, далее рабочая зона.

Вид от рабочей зоны для двоих на спальное место.
Вид от рабочей зоны для двоих на спальное место.
Стеллаж условно разделяет комнату на зону сна и место для учёбы.
Стеллаж условно разделяет комнату на зону сна и место для учёбы.
Вид на рабочую зону от входа в комнату.
Вид на рабочую зону от входа в комнату.
Вид на детскую девочек от окна.
Вид на детскую девочек от окна.
На стенах в качестве базы - краска, а декор сделан из керамики и шпона ясеня.
На стенах в качестве базы - краска, а декор сделан из керамики и шпона ясеня.

Ванная комната.

Отделка стен и пола керамогранит и плитка керамическая в светлых тонах.
Отделка стен и пола керамогранит и плитка керамическая в светлых тонах.
Акцентная стена из керамической плитки под мрамор CALACCATTA GOLD.
Акцентная стена из керамической плитки под мрамор CALACCATTA GOLD.
Тумба под раковину и полочки из влагостойкой МДФ в шпоне американского ореха.
Тумба под раковину и полочки из влагостойкой МДФ в шпоне американского ореха.
Шкафчик над инсталляцией МДФ в эмали, полочка с подсветкой в шпоне американского ореха.
Шкафчик над инсталляцией МДФ в эмали, полочка с подсветкой в шпоне американского ореха.
В нише у ванны полочки из керамической плитки.
В нише у ванны полочки из керамической плитки.
Вид на вход в ванную комнату.
Вид на вход в ванную комнату.

Мастер-спальня.

Лаконично: кровать под матрас 190х220см, подвесные прикроватные тумбы, справа дверь в гардеробную.
Лаконично: кровать под матрас 190х220см, подвесные прикроватные тумбы, справа дверь в гардеробную.
Отделка стен краска, напротив кровати стена в декоративной штукатурке с эффектом шёлка.
Отделка стен краска, напротив кровати стена в декоративной штукатурке с эффектом шёлка.
Вид от входа в комнату.
Вид от входа в комнату.
За изголовьем кровати панели из МДФ в матовой эмали.
За изголовьем кровати панели из МДФ в матовой эмали.
Подвесные прикроватные тумбы в шпоне американского ореха.
Подвесные прикроватные тумбы в шпоне американского ореха.
Напротив кровати расположен макияжный столик и комод.
Напротив кровати расположен макияжный столик и комод.
Компактное рабочее место на балконе с выходом из мастер-спальни.
Компактное рабочее место на балконе с выходом из мастер-спальни.

Мастер-санузел с душевой.

Отделка стен и пола керамическая плитка.
Отделка стен и пола керамическая плитка.
Душевая зона в керамической плитке под мрамор CALACCATTA GOLD.
Душевая зона в керамической плитке под мрамор CALACCATTA GOLD.
Тумба под раковину и шкафчик над инсталляцией из влагостойкой МДФ в эмали.
Тумба под раковину и шкафчик над инсталляцией из влагостойкой МДФ в эмали.
Дополнительное закрытое хранение в стеновой нише.
Дополнительное закрытое хранение в стеновой нише.
Компактное хранение - стеллаж для косметики и зеркальный шкаф с подсветкой.
Компактное хранение - стеллаж для косметики и зеркальный шкаф с подсветкой.

Постирочная.

Открытое хранение и место для гладильной доски.
Открытое хранение и место для гладильной доски.
В нише стиральная и сушильная машины, над ними открытое хранение.
В нише стиральная и сушильная машины, над ними открытое хранение.

 Отделка стен моющаяся краска, на полу керамогранит.
Отделка стен моющаяся краска, на полу керамогранит.

Архитектор и автор проекта DARIA ELNIKOVA

Если вам понравилось, ставьте 👍 и пишите комментарии и вопросы👇🏻

Подписывайтесь на канал, у меня еще много интересного!

С удовольствием разработаем индивидуальный дизайн-проект для вас, обращайтесь по тел. +7 (995) 115-23-20 или на сайт Еlnikova.com через форму обратной связи.