Добавить в корзинуПозвонить
Найти в Дзене

Вот что получилось в ходе составления проектов и концепций будущего ремонта в студиях

Вот что получилось в ходе составления проектов и концепций будущего ремонта в студиях. Планировки почти похожи, зеркальные. Мы решали такую задачу - создать максимум мест для хранения и вместить большой холодильник так, чтобы он не мешал сну. Именно поэтому он будет расположен в прихожей за дверью комнаты. Это создаст больше комфорта ночью. Зачем больше мест для хранения? Квартиры рассчитаны на долгосрочную и среднесрочную аренду - а там места для хранения важны, в отличие от посуточной аренды. При этом, по данным объектам планируем сделать так - ремонт будет окончен к июлю, поэтому 2 месяца мы будем сдавать квартиры посуточно в максимально высокий сезон, а в сентябре-октябре уже переведем в среднесрочную и долгосроную аренду. Почему именно так? 1. Локация. В этом районе мы не сдаем посуточно. 2. Размеры. Студия - это всегда низкий чек, а наша концепция - уходить в повышение стоимости суток, поэтому студии не подходят под цель компании. Дальше буду показывать подробности о ходе

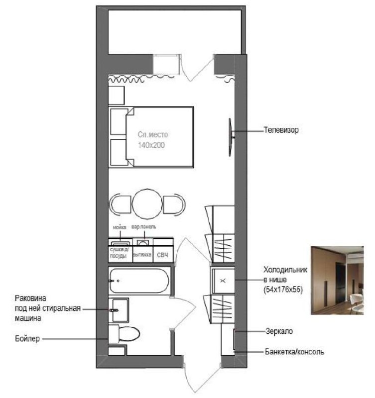
Вот что получилось в ходе составления проектов и концепций будущего ремонта в студиях.

Планировки почти похожи, зеркальные.

Мы решали такую задачу - создать максимум мест для хранения и вместить большой холодильник так, чтобы он не мешал сну.

Именно поэтому он будет расположен в прихожей за дверью комнаты. Это создаст больше комфорта ночью.

Зачем больше мест для хранения?

Квартиры рассчитаны на долгосрочную и среднесрочную аренду - а там места для хранения важны, в отличие от посуточной аренды.

При этом, по данным объектам планируем сделать так - ремонт будет окончен к июлю, поэтому 2 месяца мы будем сдавать квартиры посуточно в максимально высокий сезон, а в сентябре-октябре уже переведем в среднесрочную и долгосроную аренду.

Почему именно так?

1. Локация. В этом районе мы не сдаем посуточно.

2. Размеры. Студия - это всегда низкий чек, а наша концепция - уходить в повышение стоимости суток, поэтому студии не подходят под цель компании.

Дальше буду показывать подробности о ходе ремонта в этих студиях.

-2
-3
-4
-5
-6