Найти в Дзене
Pona Invest

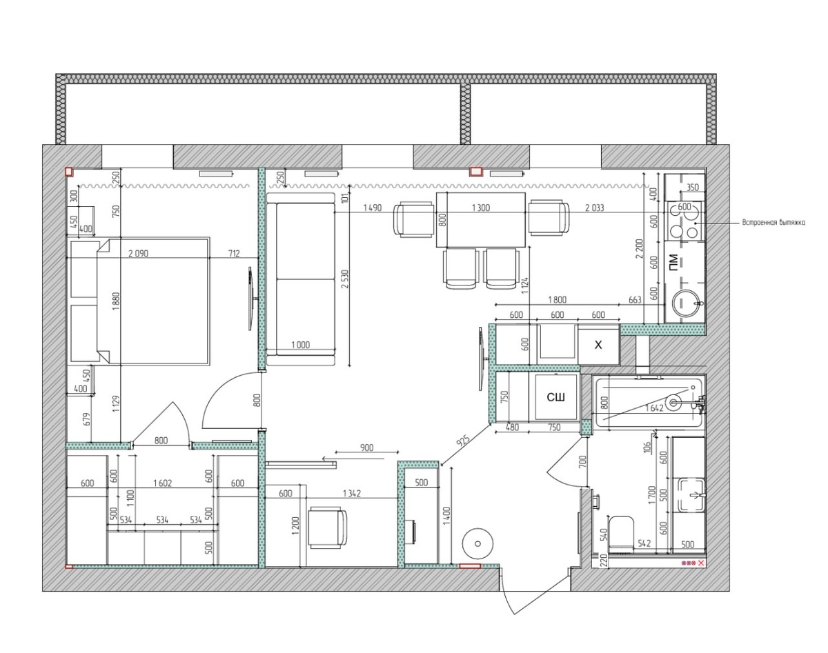
Что мы сделали с планировкой

Что мы сделали с планировкой?

Первое что нужно учитывать — это апартаменты. То есть нежилое помещение и жилых там нет. Переносить можно что угодно и куда угодно. Но мы хотели сделать идеальные условия для загородной жизни.

Портер покупателя — пара или одинокий человек с желанием жить за городом. Бизнесмены, сотрудники Газпрома или руководители топ-звена. Что им нужно?

Спальня и гардеробная. Кухня со столом. Зона отдыха. Моё личное требование наличие кабинета. Я за него воевал и лично отрисовывал ТЗ дизайнерам, внося правки.

Как итог, мы получили входную зону со шкафом для верхней одежды, пуфик и крючки, технический шкаф для стиральной и сушильной машины, места для хранения гладильной доски. За счёт этого вышла просторная ванная комната с большим количеством мест хранения. Зона гостиной с диваном, стол на четверых, который можно разобрать, кухонный гарнитур с пеналами во всю стену, ну и главное, кабинет! И нашлось место для спальни с просторной кроватью 180 см, гардеробной.