Найти в Дзене
Realt.by

Бетон, стеклоблоки и серый цвет. Смотрите, какую брутальную студию продают в Минске

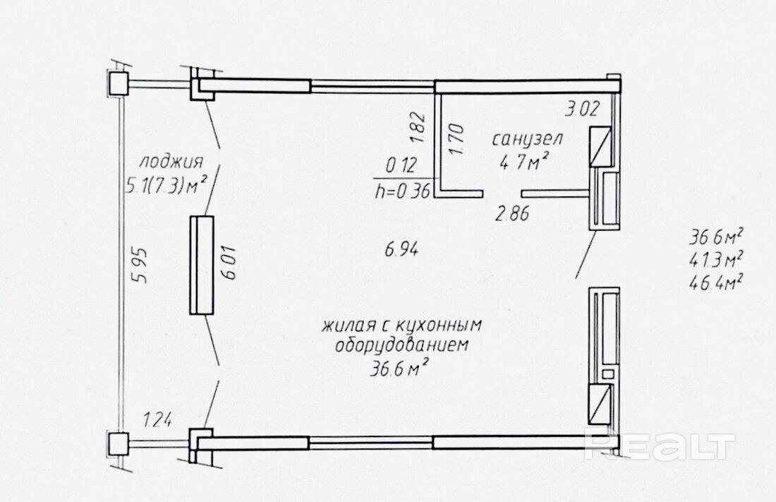
В ЖК Vogue, что построен у парка Челюскинцев, продается квартира на последнем этаже многоэтажки. В студии сделали хорошую планировку и классный ремонт, где удобно расположились все необходимые зоны. Показываем фишки интерьера, а также пишем про стоимость квартиры. Дом на Макаенка, 12Д был построен в 8 этажей в 2021 году. На последнем продается студия в 46,4 м². Показываем, какой ремонт там сделали владельцы. Квартира изначально была со свободной планировкой. Интерьер получился брутальным. Чтобы увеличь жилую площадь, кухню разместили с одной стороны коридора. Здесь имеется гарнитур, установлена бытовая техника. Спальню никак не изолировали. Рядом получилось оборудовать гардеробную. Подсветка добавляет в квартиру теплоты. Другую часть комнаты занимает зона отдыха с диваном, креслом и телевизором. Мягкая мебель выполнена в одном стиле. Вместо лоджии тут открытое пространство с окнами в пол. Они, кстати, заменены. Установлены небьющиеся двухкамерные стеклопакеты. На небольшом подиуме стои

В ЖК Vogue, что построен у парка Челюскинцев, продается квартира на последнем этаже многоэтажки. В студии сделали хорошую планировку и классный ремонт, где удобно расположились все необходимые зоны. Показываем фишки интерьера, а также пишем про стоимость квартиры.

Дом на Макаенка, 12Д был построен в 8 этажей в 2021 году. На последнем продается студия в 46,4 м². Показываем, какой ремонт там сделали владельцы.

-2

Квартира изначально была со свободной планировкой. Интерьер получился брутальным. Чтобы увеличь жилую площадь, кухню разместили с одной стороны коридора. Здесь имеется гарнитур, установлена бытовая техника.

Спальню никак не изолировали. Рядом получилось оборудовать гардеробную. Подсветка добавляет в квартиру теплоты.

Другую часть комнаты занимает зона отдыха с диваном, креслом и телевизором. Мягкая мебель выполнена в одном стиле.

Вместо лоджии тут открытое пространство с окнами в пол. Они, кстати, заменены. Установлены небьющиеся двухкамерные стеклопакеты. На небольшом подиуме стоит кофейный столик, а также сделано рабочее место.

Высота потолков — 2,75 м. На полу уложены плитка и ламинат. Стены окрашены, потолки — бетон.

-6

Часть совмещенного санузла отделена стеклоблоками. Такое решение добавило в эту часть квартиры света.

Рядом с домом находятся парк, магазин, медцентр и метро «Московская». За 15 минут можно дойти до ТРЦ Dana Mall.

Студию продают за 111 тысяч долларов. Квадратный метр — 2 392 доллара.