Добавить в корзинуПозвонить
Найти в Дзене
Елена Володина

Что можно сделать с квартирой в доме по программе реновации: до и после

Пару месяцев назад ко мне обратилась читательница Дзена с просьбой подготовить для сдачи ее квартиру в Кузьминках. Квартира была куплена с инвестиционной целью в доме, построенному по программе реновации. Да, и если мы еще не знакомы: меня зовут Лена Володина, я профессионально занимаюсь инвест-ремонтами и комплектацией квартир под сдачу. Более оперативно о своих объектах рассказываю в своем телеграм-канале "Пока меня не было" Когда я впервые увидела квартиру, меня удивила планировка: комнаты казались огромными - и для спальни, и для гостиной. Из этой квартиры легко бы «выкроилась» еще одна комната при желании) В результате гостиную мы решили делать в комнате меньшего размера, а самая большая стала спальней. Туда поместился и огромный шкаф, и кровать, и туалетный столик. Эту квартиру полностью вела моя команда: Ксения предложила планировку и дизайн, Ира как менеджер курировала объект и занималась его комплектацией, Оксана с мужем-хаусмастером приезжали выполнить разные работы по дому,

Пару месяцев назад ко мне обратилась читательница Дзена с просьбой подготовить для сдачи ее квартиру в Кузьминках. Квартира была куплена с инвестиционной целью в доме, построенному по программе реновации.

Да, и если мы еще не знакомы: меня зовут Лена Володина, я профессионально занимаюсь инвест-ремонтами и комплектацией квартир под сдачу. Более оперативно о своих объектах рассказываю в своем телеграм-канале "Пока меня не было"

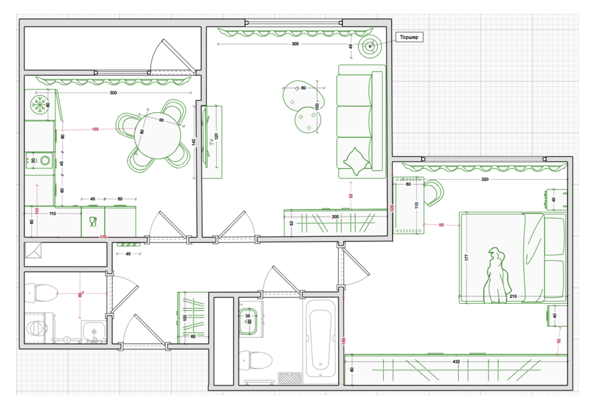
Планировка квартиры
Планировка квартиры

Когда я впервые увидела квартиру, меня удивила планировка: комнаты казались огромными - и для спальни, и для гостиной. Из этой квартиры легко бы «выкроилась» еще одна комната при желании) В результате гостиную мы решили делать в комнате меньшего размера, а самая большая стала спальней. Туда поместился и огромный шкаф, и кровать, и туалетный столик.

Эту квартиру полностью вела моя команда: Ксения предложила планировку и дизайн, Ира как менеджер курировала объект и занималась его комплектацией, Оксана с мужем-хаусмастером приезжали выполнить разные работы по дому, Наташа гладила шторы и постельное белье.

Процесс комплектации занял два месяца - получилось дольше, чем мы обычно делаем, по ряду причин.

Во-первых, несмотря на то, что квартира делалась под сдачу, выяснилось, что первый месяц хозяйка там поживет сама, также она не исключала, что в квартире будет жить ее дочь. Поэтому требований было больше, клиентка вносила достаточно много правок и пожеланий в проект, и было невозможно от них отказаться с аргументом «вы там жить не будете, мы делаем не для вас, а для арендаторов».

Во-вторых, в ходе работ то и дело возникали разные нюансы. Например, клиентка попросила заменить обои в спальне, но когда мы начали это делать, то оказалось, что обои от застройщика отходят с двумя слоями шпаклевки. Поэтому в итоге мы сняли обои только с той стены, где должны были наклеить панно с птицами, и заново шпаклевали. Остальные обои освежили, перекрасив стены.

Также возникли свои накладки в процессе штробления стены для добавления бра над кроватью; пришлось сменить подрядчика-электрика, хотя казалось бы — рядовая задача. Даже маляр по затирке в санузле умудрился накосячить. Такие накладки случаются в процессе каждого ремонта, но тут мы прямо отхватили джекпот. К слову, еще ни разу на моей памяти комплектация квартиры мебелью не ограничивалась покупкой и сборкой мебели, это всегда более сложный и объемный процесс, на любом этапе которого может пойти что-то не так.

Из интересных деталей:

  • Панно в спальню заказывали на Озоне, получилось бюджетно (на заказ стоило бы десятки тысяч рублей)
  • Рельефные стены в гостиной - это тяжелые объемные обои (под них нужен специальный клей + обязательно снимать старые обои, иначе не будут держаться).
  • Зеркало на входную дверь заказали отдельно - в итоге смотрится, как родная.
  • Реечный экран под ванну заказывали на Авито сразу на три объекта, что позволило получить скидку.
  • Кухню заказывали в Леруа, большой шкаф в спальню проектировали в Хофф

Квартира невероятно преобразилась, фантастический результат. Яркая, жизнерадостная, свежая! Кто бы в итоге ни остался в ней жить, ему точно будет уютно!

Больше артикулов из этого проекта смотрите в моем телеграмм-канале «Пока меня не было» - возможно, что-то захотите использовать и для своего дома.